Grand, private home with huge plot and potential for expansion.
Approximately 1.5 acres of private grounds and wooded area
Commanding elevated position with panoramic countryside views
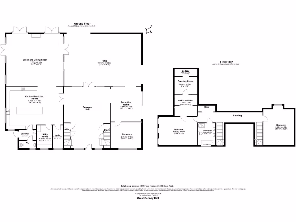
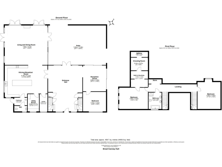
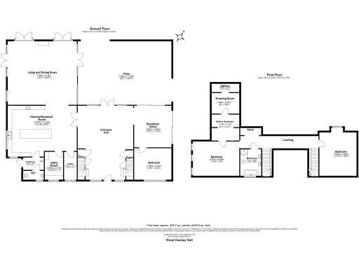
Generous entrance hall, vaulted living/dining room, full-height fireplace
Hand-crafted kitchen with separate utility room and larder
Three large bedrooms; principal includes dressing room and terrace access
Plans in place for two-storey extension to 5-bed (subject to planning)
Slow broadband speeds — may affect home working
Council tax described as quite expensive
Set on roughly 1.5 acres in sought-after Purleigh, this substantial detached barn-style home delivers scale, light and far-reaching countryside views. Arrive through secure electric gates to a generous gravel forecourt and a dramatic double-height entrance hall that sets a grand, welcoming tone. The heart of the house is a hand-crafted kitchen with utility and larder, flowing to a vaulted living/dining room with a full-height fireplace and two-tier windows framing sweeping vistas.
Accommodation is arranged over two floors and currently provides three large bedrooms, including a principal suite with dressing room and terrace access, plus two bathrooms and multiple reception spaces. Extensive terraces and well‑screened grounds offer private outdoor entertaining space and a secluded wooded area; the plot also presents scope for ancillary buildings or equestrian use. Parking is plentiful with off-street turning space.
There is a clear development upside: plans are in place for a two-storey extension to create a five-bedroom house of around 5,500 sqft (subject to planning). That makes this house suitable for growing families seeking long-term flexibility or buyers looking to add value. Practical points to note are slow broadband speeds in the area and relatively high council tax; both are factual considerations for working-from-home buyers and running costs.
Overall this is a confident country property blending contemporary barn-style finishes with generous, light-filled living spaces and a very large plot. Its location offers village amenities, good primary schools and commuter links (about 50 minutes to Liverpool Street), making it an appealing option for families who prioritise privacy, space and further development potential.
4 bedroom detached house for sale in Mill Lane, Virley, Maldon, Essex, CM9 — £1,000,000 • 4 bed • 3 bath • 3300 ft²
3 bedroom barn conversion for sale in The Barn, Stanford Rivers, CM5 — £750,000 • 3 bed • 3 bath • 2256 ft²
Plot for sale in Braintree Road, Panfield, CM7 — £1,500,000 • 1 bed • 1 bath • 5787 ft²
4 bedroom chalet for sale in Blackmore End, Braintree, Essex, CM7 — £700,000 • 4 bed • 1 bath • 2143 ft²
6 bedroom detached house for sale in Howe Green Road, Purleigh, CM3 — £1,400,000 • 6 bed • 3 bath • 3341 ft²
4 bedroom detached bungalow for sale in ** SIGNATURE HOMES ** Ashwells Road, Pilgrims Hatch, CM15 — £1,350,000 • 4 bed • 2 bath • 2822 ft²






























































































































