Flexible freehold industrial units with high eaves and sustainable energy features.
Seven new-build industrial units, 8,325–33,940 sq ft
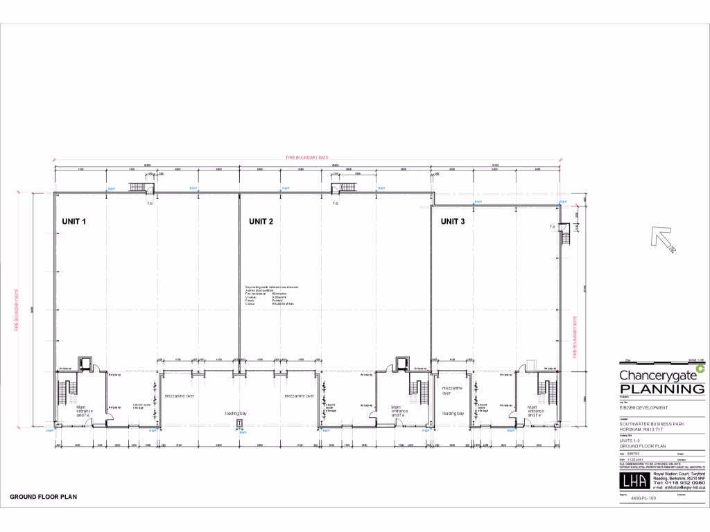
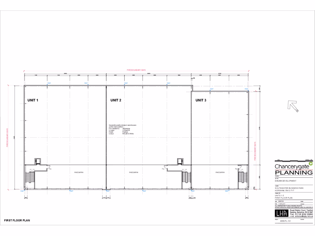
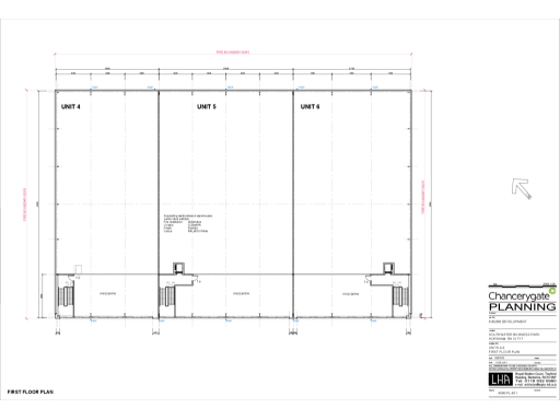
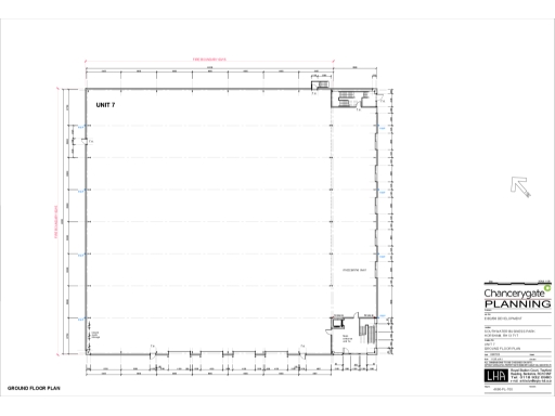
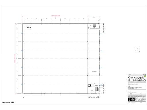
A new terrace of seven industrial warehouse units at Audio Park, Southwater, designed for logistics, light industrial or storage occupiers. Units range from 8,325 to 33,940 sq ft with minimum eaves from 9m up to 12.5m, electric loading doors and generous parking — all delivered as new build and available freehold or leasehold.
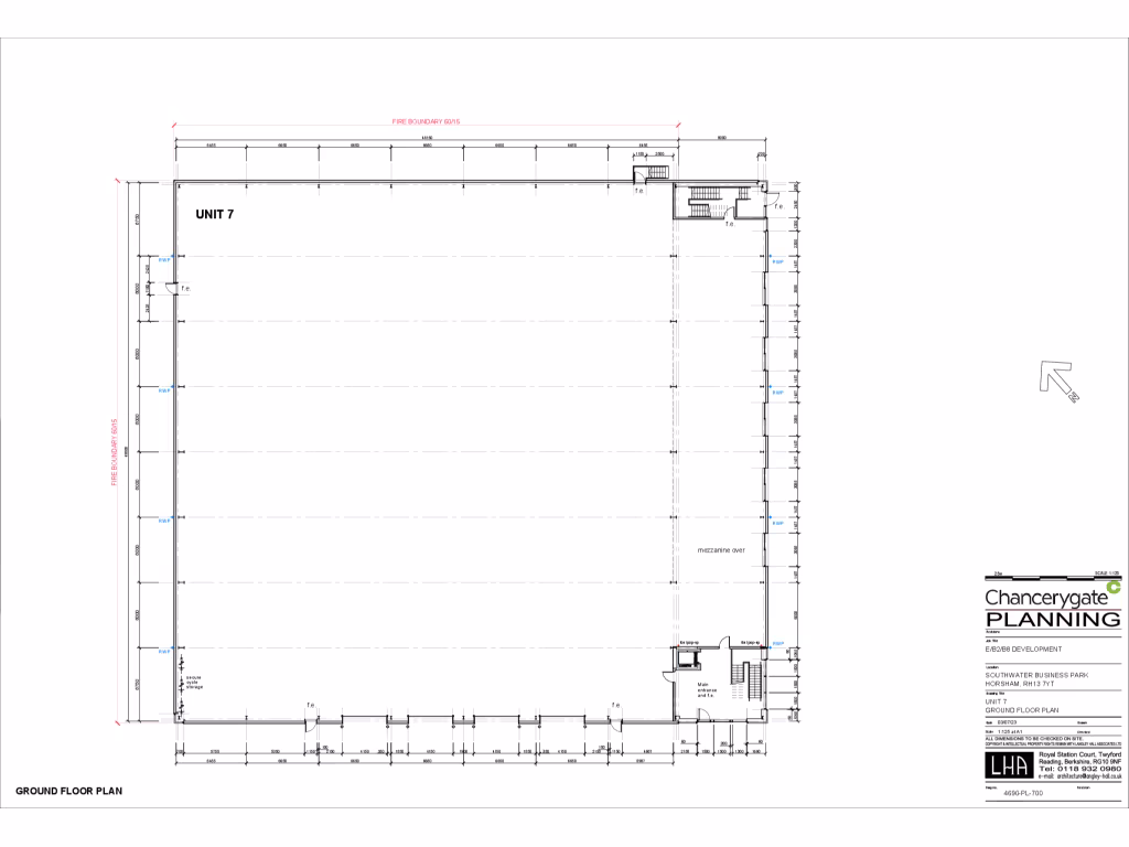
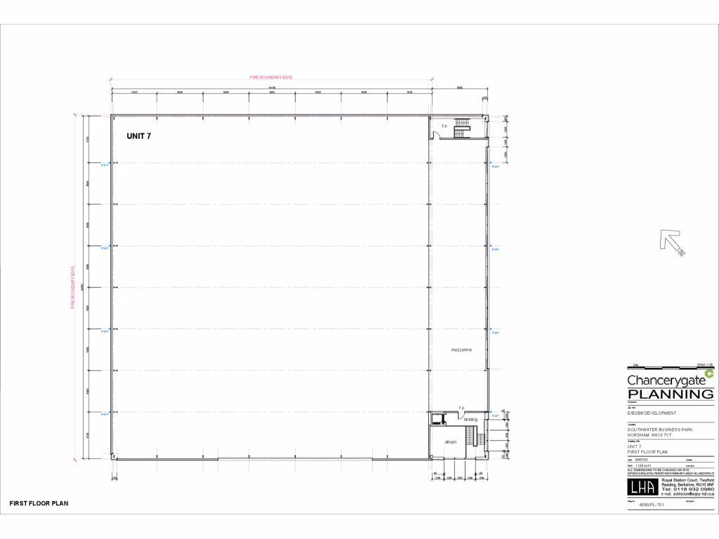
The development offers practical operational features: first-floor space for storage or bespoke offices, passenger lifts in selected units, photovoltaic panels and EV charging points. Unit 7 includes a private gated yard, and several units can be combined to create larger footprints for growing occupiers.
Located on the A24, the site has direct road access north to the M23/M25 and south towards Worthing and the coast. The setting sits on the town fringe with countryside views and proximity to Southwater Country Park, providing an attractive environment for staff and visitors.
Buyers should note completion is scheduled for October 2025, so the scheme is not for immediate occupation. Broadband speeds in the area are reported as very slow, which may affect operations requiring high-capacity connectivity. Otherwise the site has low flood risk, low crime and substantial plot capacity for operational needs.
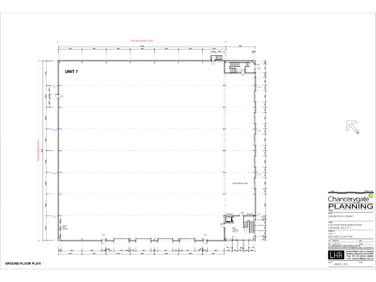
Distribution warehouse for sale in Unit 7, Audio Park, Southwater, Horsham, RH13 9YT, RH13 — £250 • 1 bed • 1 bath
Distribution warehouse for sale in Audio Park, Southwater, Horsham, RH13 9YT, RH13 — £250 • 1 bed • 1 bath
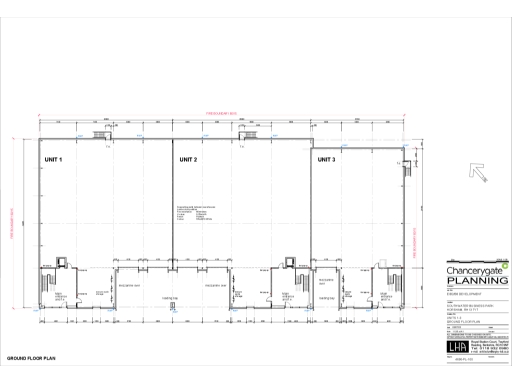
Distribution warehouse for sale in Unit 3, Audio Park, Southwater, Horsham, RH13 9YT, RH13 — £250 • 1 bed • 1 bath • 8325 ft²
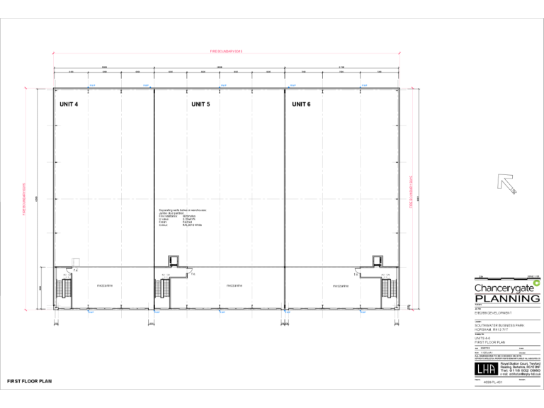
Distribution warehouse for sale in Unit 5, Audio Park, Southwater, Horsham, RH13 9YT, RH13 — £250 • 1 bed • 1 bath • 13570 ft²
Distribution warehouse for sale in Unit 6, Audio Park, Southwater, Horsham, RH13 9YT, RH13 — £250 • 1 bed • 1 bath • 11930 ft²
Distribution warehouse for sale in Unit 2, Audio Park, Southwater, Horsham, RH13 9YT, RH13 — £250 • 1 bed • 1 bath • 12890 ft²


















































