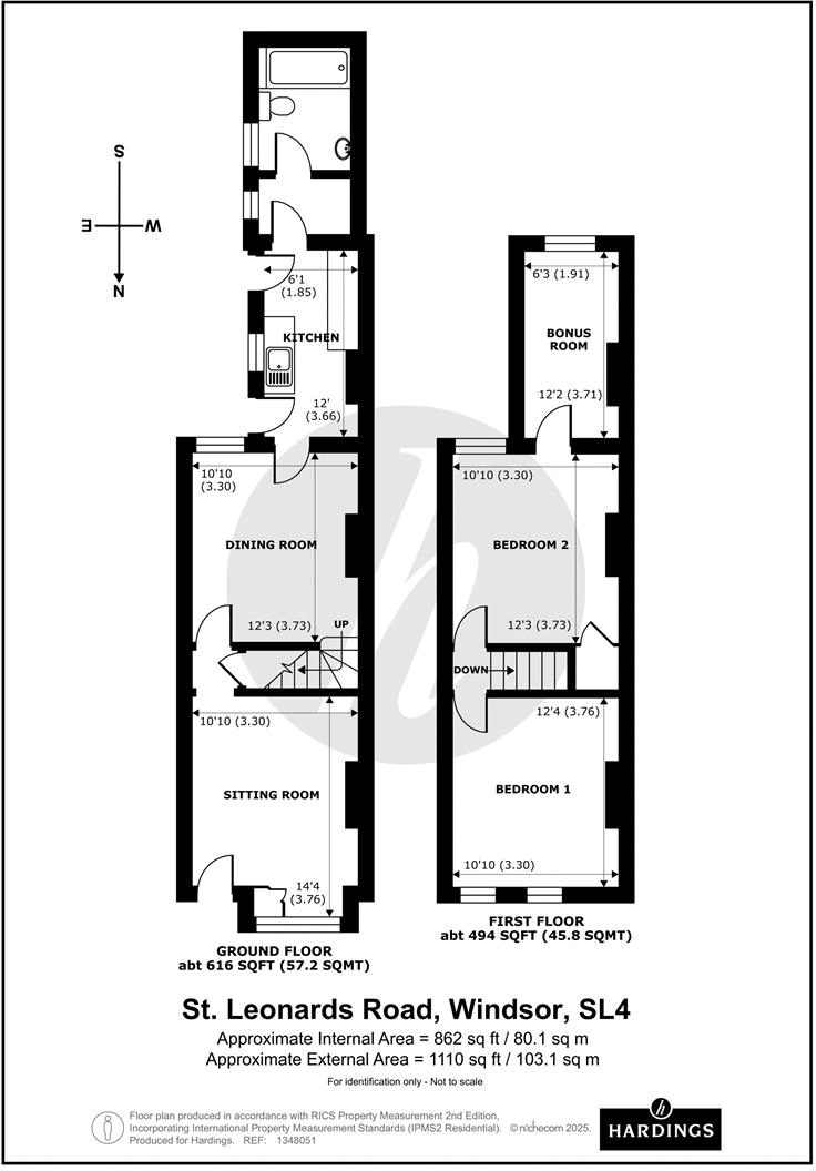
Characterful town-centre home with garden and extension potential.
Two double bedrooms plus separate study/office space
South-facing rear garden with rear access; small plot size
Chain-free sale — immediate completion possible
Galley kitchen fitted with appliances; opportunity to modernise
Potential to extend (subject to planning permission)
Off-street permit parking available (managed, charges apply)
Victorian solid brick walls; assumed no cavity insulation
Moderate council tax; freehold tenure
A traditional two-bedroom Victorian terrace minutes from Windsor town centre, offered chain-free and ready to occupy. The house retains period character including fireplaces and generous ceiling heights, while practical updates include double glazing and a fitted galley kitchen with appliances. A private south-facing rear garden and nearby permit-controlled off-street parking add everyday convenience for families or professionals.
The layout suits a modest family or a couple needing home office space, with two double bedrooms plus a further room used as a study. The plot and garden are small, so outdoor space is manageable rather than expansive. There is clear potential to extend subject to planning permission (STPP) and to reconfigure interior spaces for modern living.
Buyers should note the property is a solid-brick Victorian build with assumed lack of cavity wall insulation, so buyers may wish to plan energy-efficiency improvements. The home is offered freehold with moderate council tax and no flooding risk. Overall, this is a characterful, well-located terrace that rewards light investment and sensitive upgrading.
2 bedroom terraced house for sale in Dagmar Road, Windsor, SL4 — £625,000 • 2 bed • 2 bath • 1174 ft²
3 bedroom end of terrace house for sale in Oxford Road, Windsor, Berkshire, SL4 — £425,000 • 3 bed • 1 bath • 668 ft²
2 bedroom terraced house for sale in Springfield Road, Windsor, SL4 — £595,000 • 2 bed • 1 bath • 1089 ft²
2 bedroom terraced house for sale in Maidenhead Road, Windsor, SL4 — £499,950 • 2 bed • 1 bath • 1112 ft²
3 bedroom terraced house for sale in Victor Road, Windsor, SL4 — £650,000 • 3 bed • 1 bath • 1163 ft²
4 bedroom terraced house for sale in Oxford Road, Windsor, SL4 — £700,000 • 4 bed • 2 bath • 1272 ft²










































