Charming Victorian end-terrace, chain-free, close to Windsor shops and schools.
Chain free freehold Victorian end-terrace in central Windsor
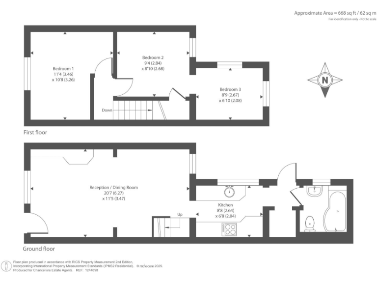
A compact Victorian end-of-terrace in the heart of Windsor, offered chain free and on freehold title. The house provides an open-plan living/dining room, compact kitchen and a small rear courtyard garden with side access — an easy-to-maintain urban plot close to shops, restaurants and stations (within a mile).
Internally the home totals approximately 668 sq ft and includes a principal bedroom and two further bedrooms/studies plus a ground-floor bathroom, although initial marketing text also refers to two bedrooms — buyers should note this discrepancy and confirm bedroom layout at viewing. The property has solid brick walls (likely uninsulated), double glazing of unknown install date and central heating via mains-gas boiler and radiators.
This suit-savvy buyers seeking a Windsor location: small families, couples or purchasers wanting a period pied-à-terre with scope for cosmetic updating. Practical positives include fast broadband, excellent mobile signal, chain-free sale and nearby good schools. Be aware of material limitations: modest overall size, a single bathroom, small gardens and an older construction that may need insulation or modernisation works.
In short: straightforward, characterful town-centre living with clear value in location and low-maintenance external space, balanced by limited floorspace and potential retrofit costs. Viewing is recommended to assess layout and renovation needs before proceeding.
2 bedroom terraced house for sale in St Leonards Road, Windsor, SL4 — £485,000 • 2 bed • 1 bath • 862 ft²
2 bedroom terraced house for sale in Prince Consort Cottages, Windsor, Berkshire, SL4 — £540,000 • 2 bed • 1 bath • 601 ft²
2 bedroom terraced house for sale in Oxford Road, Windsor, Berkshire, SL4 — £475,000 • 2 bed • 1 bath • 887 ft²
3 bedroom end of terrace house for sale in Oxford Road, Windsor, SL4 — £500,000 • 3 bed • 1 bath • 789 ft²
3 bedroom terraced house for sale in Oxford Road, Windsor, SL4 — £575,000 • 3 bed • 1 bath • 968 ft²
2 bedroom cottage for sale in Oxford Road, Windsor, Berkshire, SL4 — £450,000 • 2 bed • 1 bath • 685 ft²






































































