CV11 6QE - 5 bedroom detached house for sale in Weft Way, Nuneaton, CV…

View on Property Piper

5 bedroom detached house for sale in Weft Way, Nuneaton, CV11

Summary - 8, WEFT WAY CV11 6QE

5 bed 2 bath Detached

Modern family home with double garage, open-plan living and private driveway.
Double-fronted five-bedroom detached house on private drive
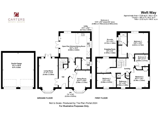
This double-fronted five-bedroom detached house sits on a small private drive facing The Long Shoot, offering spacious family living across two levels. The home is built to modern standards with an open-plan kitchen/dining/living area, integrated appliances, a utility room and a principal bedroom suite with dressing area and en-suite shower.

Externally there is a double-width driveway, double garage and rear garden with large paved patio — practical for parking and family entertaining. The property benefits from double glazing, gas central heating and an EPC rating of B, and is presented as a new build with contemporary finishes throughout.

Practical considerations: the house overlooks the main thoroughfare (The Long Shoot) and faces a well-trafficked road, which may affect tranquillity. Council tax is described as expensive. The overall plot and accommodation are generous but the property is an average overall size for its class, so buyers should check room dimensions against their needs.

Local amenities include well-rated primary and secondary schools within reach, bus services nearby, fast broadband and low local crime — factors that suit family living. The layout and size make this a strong option for growing families seeking modern, spacious accommodation with ample parking and a double garage.

Property Details

Image Descriptions

Floorplan Description

Rooms

Textual Property Features

Target Audience

AI Tags

Detected Visual Features

EPC Details

Nearby Schools

Nearest Bars And Restaurants

,,,,}

Nearest General Shops

,,}

Nearest Grocery shops

,,}

Nearest Supermarkets

,,}

Nearest Religious buildings

,,}

Nearest Medical buildings

,,,}

Nearest Airports

}

Nearest Leisure Facilities

,,,,}

Nearest Tourist attractions

,,}

Nearest Train stations

,,,,}

Nearest Bus stations and stops

,,,,}

Nearest Hotels

,,}

Tags

Local Market Stats

Similar Properties

Meta

High Res Images

Compatible Images

Low res Images

Thumbnails

Raw Images

High Res Floorplan Images

Compatible Floorplan Images

Low res Floorplan Images

FloorplanImages Thumbnail

Raw Floorplan Images