Light open-plan living near Surrey Quays transport and amenities.
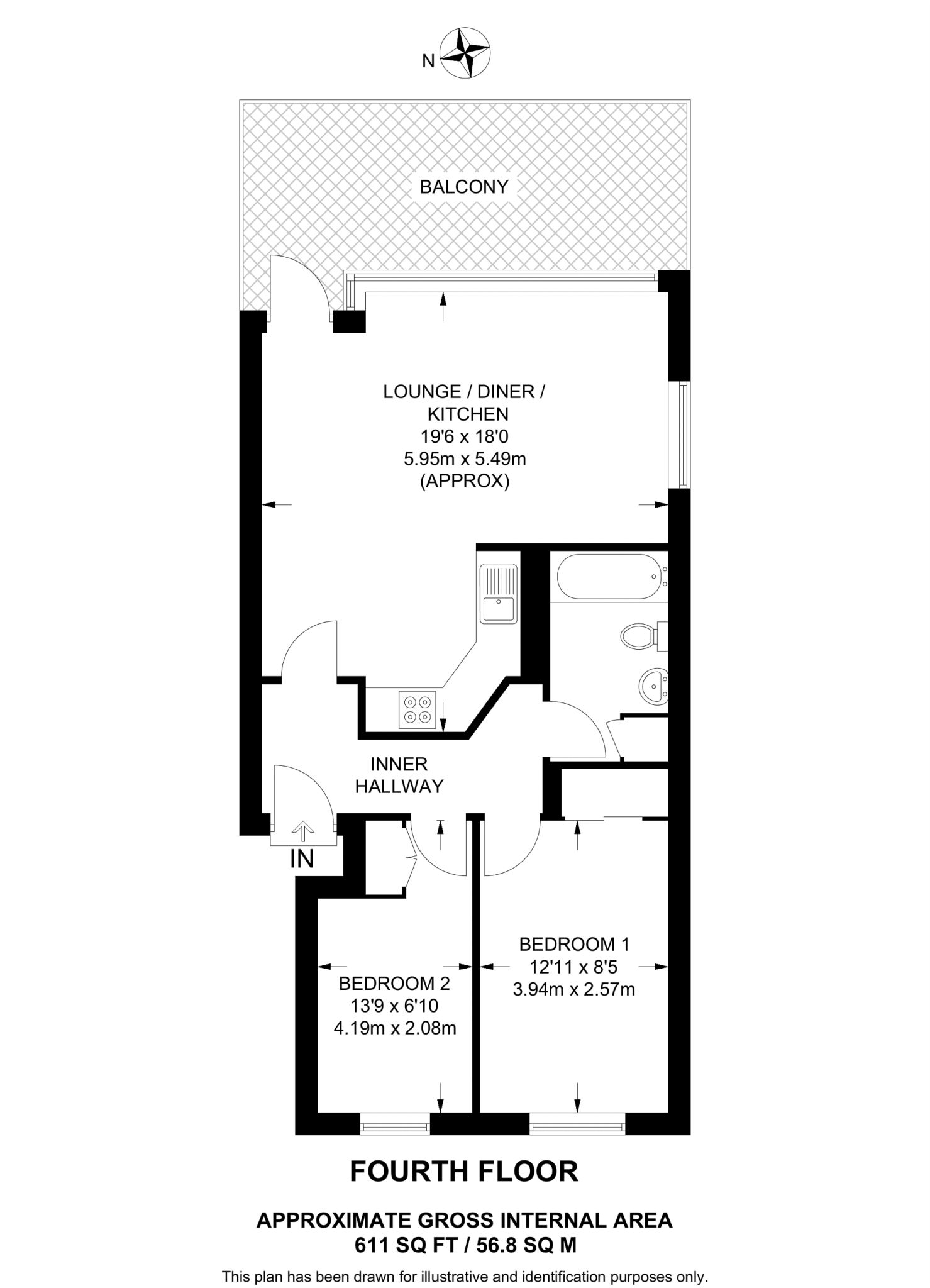
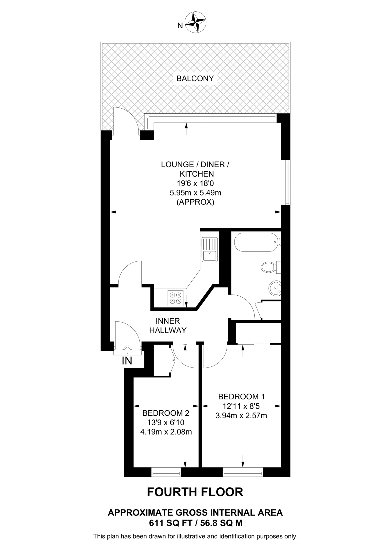
Fourth-floor flat with balcony and city views
Set on the fourth floor of Baltic Quay, this compact two-bedroom flat offers light-filled living with an open-plan layout and large windows. The reception room flows into a tidy kitchen and opens onto a balcony with city views — a pleasant spot for morning coffee.
Practical details suit a first-time buyer or investor: share of freehold tenure, fast broadband and very low flood risk. Two double bedrooms and a sleek bathroom complete the accommodation, arranged efficiently across approximately 611 sq ft.
Buyers should note the material considerations: heating is electric room heaters rather than central gas, and the service charge is relatively high at £4,980 per year. The wider area is an inner-city, multicultural neighbourhood with above-average crime rates and some local deprivation, balanced by excellent transport links and nearby amenities.
Overall this apartment offers modern, low-maintenance living in a well-connected riverside development, best for buyers prioritising location and convenience over a large footprint and low running costs.
1 bedroom flat for sale in Seafarer Way, Rotherhithe, London, SE16 — £375,000 • 1 bed • 1 bath • 469 ft²
2 bedroom flat for sale in Rotherhithe New Road, Bermondsey, London, SE16 — £450,000 • 2 bed • 2 bath • 795 ft²
2 bedroom flat for sale in Rotherhithe Street, Rotherhithe, London, SE16 — £450,000 • 2 bed • 2 bath • 890 ft²
2 bedroom flat for sale in Coopers Road, Bermondsey, London, SE1 — £440,000 • 2 bed • 1 bath • 647 ft²
2 bedroom flat for sale in Baltic Quay,
1 Sweden Gate, SE16 — £550,000 • 2 bed • 1 bath • 950 ft²
2 bedroom flat for sale in Cherry Garden Street, Bermondsey, London, SE16 — £425,000 • 2 bed • 1 bath • 680 ft²


























































































