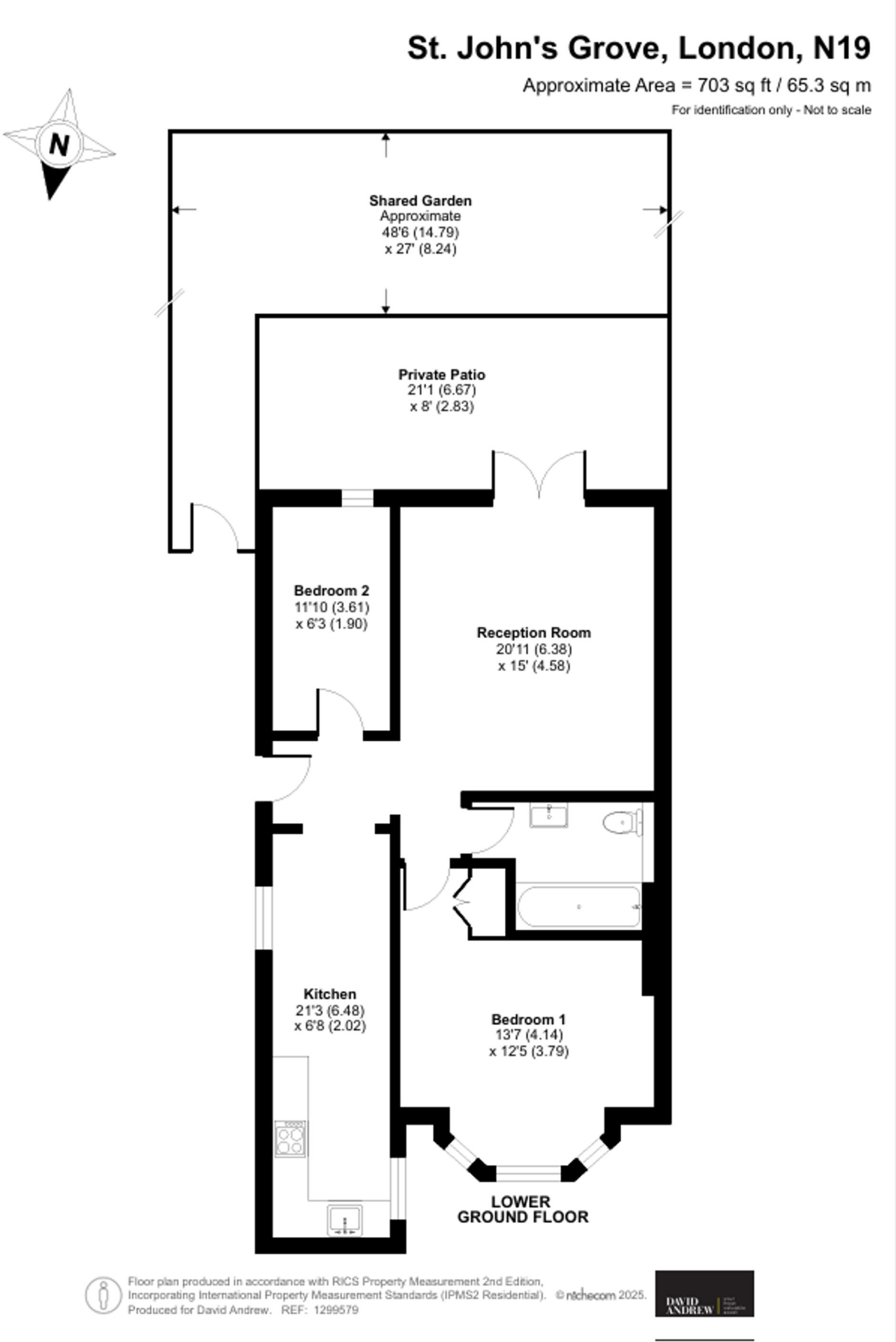
Victorian garden flat with private patio and shared garden access
Set within a conservation area, this well-presented Victorian ground-floor flat offers 703 sq ft of comfortable living with a private patio and access to a shared garden. The property benefits from a private street-level entrance, plentiful built-in storage and attractive period features, creating a welcoming urban home for a first purchase or buy-to-let.
Interior space is nicely proportioned across two bedrooms and a contemporary living room with hardwood floors and built-in shelving. The flat is finished to a good decorative standard throughout, making it largely ready to move into while still offering scope for personal updating. A long lease (share of freehold) provides ownership security.
Practical factors to note: the building is solid brick with no known wall insulation, the EPC rating is D, and heating is by mains-gas boiler and radiators. Service charge is around £600 and council tax is moderate. The flat has one bathroom and is best suited to buyers comfortable with an inner-city setting.
Location is a major selling point — positioned between Overground and Underground stations for fast links across London, and close to shops, cafés and schools (including several rated Good or Outstanding). Be aware the local area records very high crime rates and is classified as deprived; take local context into account when considering safety and long-term value.
2 bedroom flat for sale in St. John's Grove, London, N19 — £725,000 • 2 bed • 1 bath • 852 ft²
1 bedroom flat for sale in Southcote Road, Tufnell Park, N19 — £425,000 • 1 bed • 1 bath • 570 ft²
2 bedroom flat for sale in Bredgar Road, London, N19 — £475,000 • 2 bed • 1 bath • 512 ft²
2 bedroom flat for sale in 6 Finsbury Park Avenue, Harringay, N4 — £600,000 • 2 bed • 1 bath • 690 ft²
2 bedroom flat for sale in Shaftesbury Road, Stroud Green, London, N19 — £700,000 • 2 bed • 1 bath • 903 ft²
2 bedroom flat for sale in Hornsey Rise, London, N19 — £625,000 • 2 bed • 2 bath • 852 ft²


















































