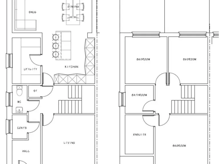
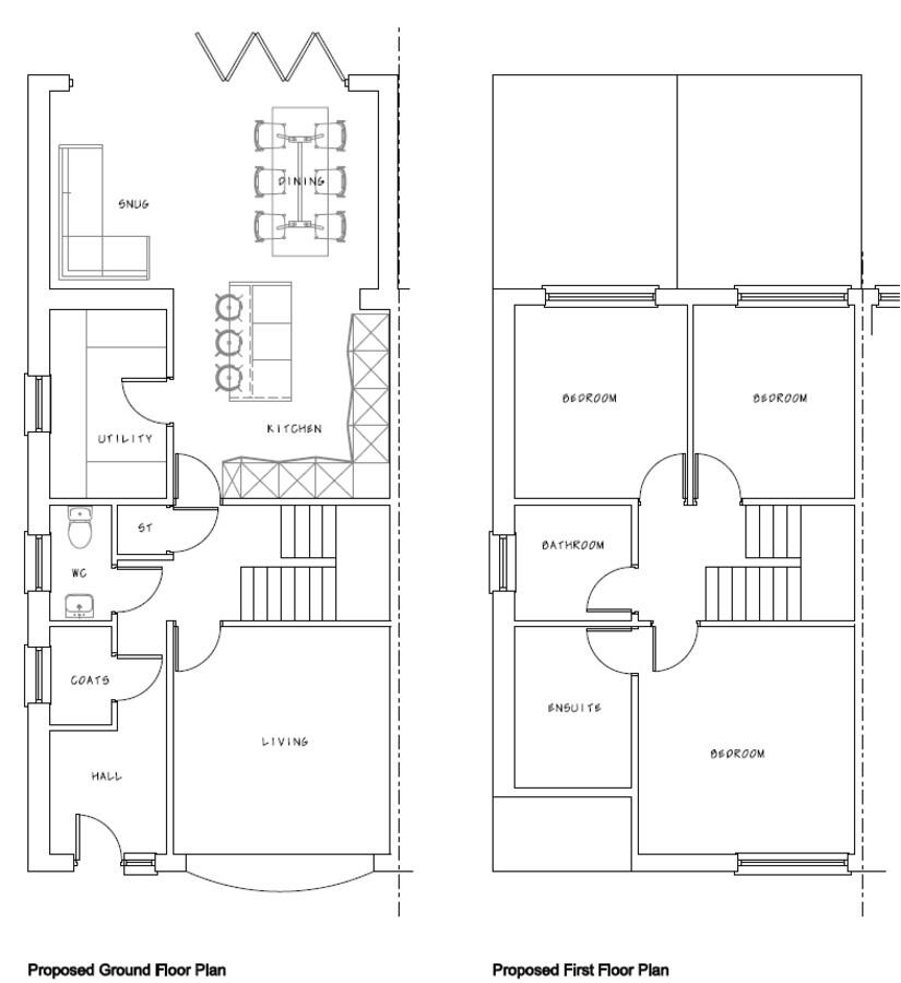
Planning permission in place to expand living space and create an extra bedroom.
Chain free with planning permission for side and roof extensions
This three-bedroom semi-detached house on Villa Road offers practical family living with clear scope to add value. The property is chain-free and comes with planning permission for side and roof extensions, making it a strong choice for buyers wanting to grow space without the uncertainty of obtaining consent.
The layout is bright and functional: two generously sized first-floor bedrooms and a ground-floor bedroom ideal for guests or flexible use, complemented by a comfortable living room and a practical kitchen. Outside, a private garden and off-street parking sit close to Villa Road Recreation Ground, local shops and Benfleet station, supporting both everyday convenience and commuting.
The house is solidly built (post‑war, c.1950–66) with double glazing and gas central heating. However, the cavity walls are assumed to be uninsulated and there is only one bathroom, so buyers should budget for energy improvements and possible bathroom reconfiguration if required. Overall this property suits families seeking a comfortable home with expansion potential or buyers wanting a value-add refurbishment.
3 bedroom semi-detached house for sale in * PLANS PASSED * Villa Road, Benfleet, SS7 — £350,000 • 3 bed • 1 bath • 969 ft²
3 bedroom semi-detached house for sale in Manor Road, Benfleet, Essex, SS7 — £500,000 • 3 bed • 3 bath • 1256 ft²
3 bedroom semi-detached house for sale in * ENORMOUS PLOT * Lodge Close, Thundersley, SS7 — £425,000 • 3 bed • 1 bath • 775 ft²
3 bedroom semi-detached house for sale in Dorothy Gardens, Thundersley, SS7 — £375,000 • 3 bed • 1 bath • 765 ft²
3 bedroom detached house for sale in Vicarage Hill, SS7 — £800,000 • 3 bed • 1 bath • 9294 ft²
3 bedroom semi-detached house for sale in Oakwood Close, Benfleet, SS7 — £365,000 • 3 bed • 1 bath • 1065 ft²






































































