M24 2HA - 2 bedroom terraced house for sale in Ash Street, Middleton,…

View on Property Piper

2 bedroom terraced house for sale in Ash Street, Middleton, Manchester, M24

Summary - 25 ASH STREET MIDDLETON MANCHESTER M24 2HA

2 bed 1 bath Terraced

**Standout Features:**
- Chain-free sale
- Council Tax Band A – very affordable
- 934 years remaining on lease for long-term security
- Spacious rear garden and a second garden area
- Excellent mobile signal and fast broadband speed
- Close to amenities and good transport links

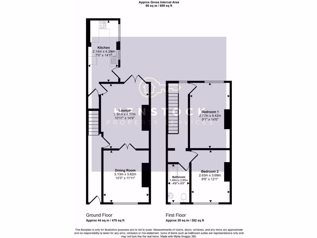
This well-presented mid-terrace house represents an excellent opportunity for first-time buyers or small families seeking a cozy home in a friendly residential community. The property features two inviting bedrooms, a modern fitted kitchen, and a light-filled lounge—ideal for comfortable living. With a compact yet practical layout extending over 859 sq. ft., you’ll find plenty of room to create your own personal touch.

Set in the up-and-coming area of Middleton, you’ll appreciate the convenience of nearby amenities like shops, schools, and transport links, including easy access to major motorways (M60/M62 & M66). The affordable council tax and nominal ground rent further enhance its appeal as a budget-friendly option.

While the double-glazing and gas central heating provide essential comforts, the property is a blank canvas for buyers looking to add their flair. Don't miss out on this charming home with a beautiful outdoor space, perfect for family gatherings or just relaxing in the sun. With its attractive price of £175,000, it’s poised to go quickly—schedule your viewing today!

Property Details

Brochure Descriptions

Image Descriptions

Floorplan Description

Rooms

Textual Property Features

Detected Visual Features

EPC Details

Nearby Schools

Nearest Bars And Restaurants

,,,,}

Nearest General Shops

,,}

Nearest Grocery shops

,,}

Nearest Supermarkets

,,}

Nearest Religious buildings

,,}

Nearest Medical buildings

,,,}

Nearest Airports

}

Nearest Leisure Facilities

,,,,}

Nearest Tourist attractions

,,}

Nearest Train stations

,,,,}

Nearest Bus stations and stops

,,,,}

Nearest Hotels

,,}

Tags

Local Market Stats

Similar Properties

Meta

High Res Images

Compatible Images

Low res Images

Thumbnails

Raw Images

High Res Floorplan Images

Compatible Floorplan Images

Low res Floorplan Images

FloorplanImages Thumbnail

Raw Floorplan Images