Modern open-plan living with long lease and seaside location.
Meteres from the beach with broad sea views
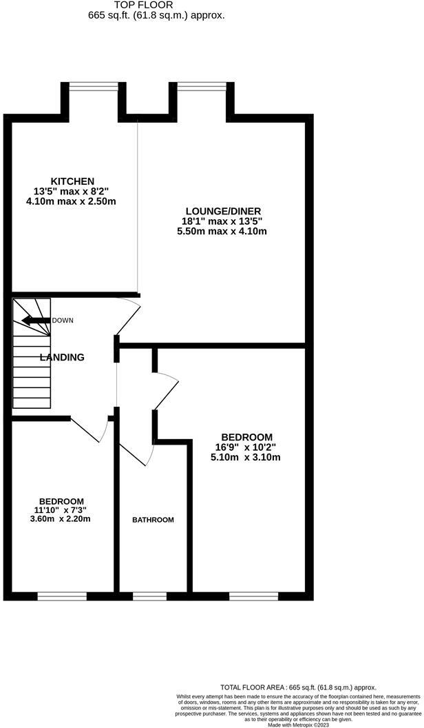
This top-floor, two-bedroom apartment sits metres from Warrior Square beach and delivers genuine coastal character and wide sea views from the open-plan living area. The modern fitted kitchen with island/breakfast bar opens onto a bright living space with a feature fireplace — ideal for socialising or a relaxed seaside lifestyle. With 963 years on the lease and a share of freehold, ownership is straightforward and long-term secure.
Practical running costs are mixed: council tax is very low, but the property uses electric room heaters and holds an Energy Performance rating of F, which will increase ongoing energy bills. The solid brick construction likely offers limited insulation without recent upgrades. The annual service charge is £1,491.24, and there is a single family bathroom for two bedrooms.
The apartment sits in a lively, central St Leonards location close to independent shops, cafes and the mainline station — excellent for commuters and first-time buyers seeking seaside living. Be aware the wider area records above-average crime and is classified as very deprived; buyers should consider this alongside the property's clear lifestyle and rental potential.
Overall this is a well-presented period flat with strong seaside appeal, long lease security and modern touches in the kitchen. It will suit a first-time buyer or buyer wanting a coastal retreat, but energy efficiency, heating and neighbourhood safety are material factors to budget for or address after purchase.
2 bedroom flat for sale in Warrior Square, St. Leonards-On-Sea, TN37 — £225,000 • 2 bed • 1 bath • 688 ft²
2 bedroom flat for sale in St. Margarets Road, St. Leonards-On-Sea, TN37 — £170,000 • 2 bed • 1 bath • 617 ft²
2 bedroom flat for sale in Marina, St. Leonards-On-Sea, TN38 — £255,000 • 2 bed • 1 bath • 545 ft²
2 bedroom flat for sale in Warrior Square, St. Leonards-On-Sea, TN37 — £260,000 • 2 bed • 1 bath • 832 ft²
2 bedroom flat for sale in Warrior Gardens, St Leonards-On-Sea, TN37 — £189,950 • 2 bed • 1 bath • 587 ft²
2 bedroom flat for sale in Warrior Square, St. Leonards-On-Sea, TN37 — £260,000 • 2 bed • 1 bath • 646 ft²






















































