Three-bedroom period house with courtyard garden and renovation potential, chain-free.
Victorian mid-terrace with high ceilings and original features
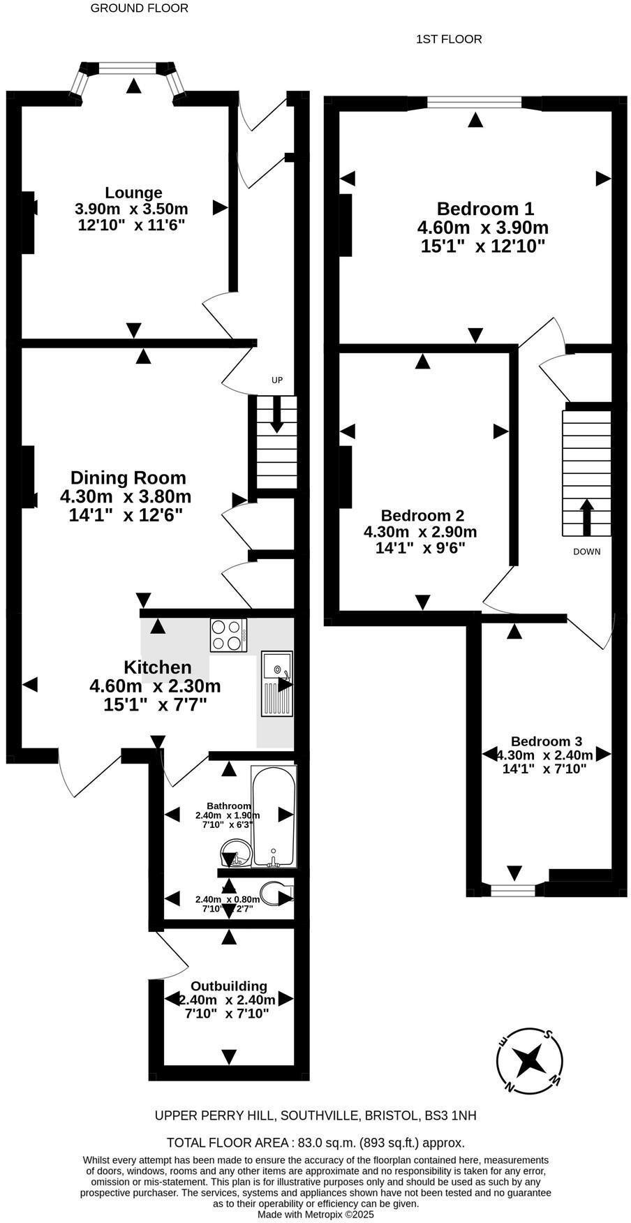
A classic Victorian mid-terrace with good natural light and high ceilings, set in popular Southville close to North Street amenities. The house offers three bedrooms, two reception rooms and an extended kitchen opening to a courtyard garden — a useful layout for family life or flexible working from home.
The property is sold freehold and chain-free, which supports a quicker move. Practical benefits include double glazing (pre-2002), mains gas central heating with a boiler and radiators, fast broadband and excellent mobile signal. Local schools score well and nearby parks, the Harbourside and independent shops add real lifestyle appeal.
This is a renovation project: the house needs updating throughout, the EPC is D and the solid brick walls are assumed uninsulated. The outbuilding requires repair before use. There is only one bathroom, and the plot is a small courtyard rather than a large garden — factors to consider for growing families.
For buyers comfortable with improvement work, this home offers strong upside: retain period details (bay windows, fireplaces, high ceilings) while upgrading insulation, services and décor to increase comfort and value. The council tax is currently low and the total living area is about 83 m2 (893 sq ft).
4 bedroom terraced house for sale in Coronation Road, Southville, BRISTOL, BS3 — £650,000 • 4 bed • 2 bath • 1393 ft²
3 bedroom terraced house for sale in Hill Street, Bristol, BS3 — £440,000 • 3 bed • 2 bath • 1100 ft²
3 bedroom terraced house for sale in Beauley Road, Southville, Bristol, BS3 — £560,000 • 3 bed • 1 bath • 1237 ft²
3 bedroom terraced house for sale in Herbert Crescent, Bristol, BS5 — £275,000 • 3 bed • 1 bath • 839 ft²
3 bedroom terraced house for sale in Wick Road, Bristol, BS4 — £425,000 • 3 bed • 1 bath • 1140 ft²
3 bedroom terraced house for sale in Coronation Road, Southville, BRISTOL, BS3 — £475,000 • 3 bed • 1 bath • 868 ft²


















































































































































