Large garden and extension potential near highly rated primary schools.
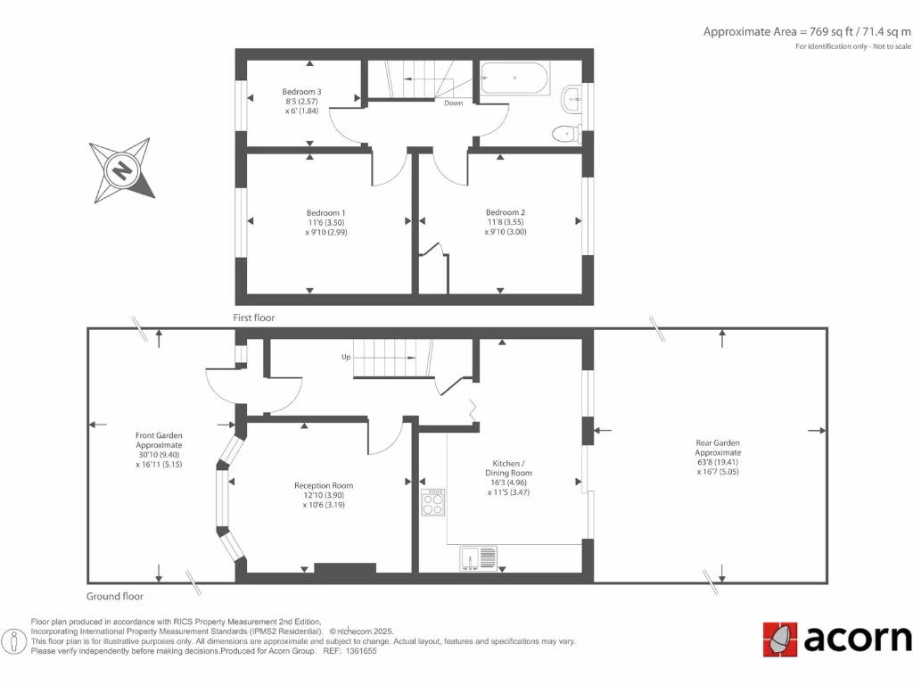
Freehold three-bedroom mid-terrace with large 60ft rear garden
Approx. 769 sq ft; small overall living size
Modern fitted kitchen with dining area, in good condition
Extension potential subject to planning permission (STPP)
Solid brick walls; likely no insulation — energy upgrades advised
Single family bathroom; three bedrooms only
Good mobile signal and fast broadband; easy commuter links to London
Area shows local deprivation and average crime rates
This three-bedroom freehold terraced house on Whitefoot Lane offers a straightforward entry to Bromley homeownership. The property includes a large private 60ft rear garden, a modern fitted kitchen with dining space, and scope to extend subject to planning permission — useful for buyers seeking to add value or extra space.
Internally the home provides practical living across multiple storeys with three well-proportioned bedrooms and one family bathroom. The kitchen and reception are in good condition, broadband and mobile signal are strong, and nearby stations provide easy commuting into Central London.
Buyers should note the property is modest in overall size (approximately 769 sq ft) and sits on a small plot. The building is post‑war solid brick with assumed no wall insulation; some external cosmetic work and potential insulation upgrades may be needed to improve energy efficiency. The area shows signs of local deprivation and average crime levels, though several ‘Outstanding’ and ‘Good’ primary schools are within reach.
This home suits first-time buyers or young families wanting a manageable house with garden and growth potential. It will appeal to buyers prepared to invest modestly in external and energy improvements and who value proximity to green space and commuter links.
3 bedroom house for sale in Whitefoot Lane, Bromley, BR1 — £475,000 • 3 bed • 2 bath • 1132 ft²
3 bedroom semi-detached house for sale in Whitefoot Lane, Bromley, BR1 — £500,000 • 3 bed • 1 bath • 1195 ft²
3 bedroom terraced house for sale in Cinderford Way, Bromley, BR1 — £450,000 • 3 bed • 2 bath • 864 ft²
4 bedroom terraced house for sale in Whitefoot Lane, Bromley, BR1 — £475,000 • 4 bed • 1 bath • 861 ft²
3 bedroom terraced house for sale in Brownhill Road, London, SE6 — £525,000 • 3 bed • 1 bath • 825 ft²
2 bedroom end of terrace house for sale in Rangefield Road, Bromley, BR1 — £400,000 • 2 bed • 2 bath • 740 ft²






















































