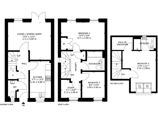
**Standout Features:**
- Spacious end-terrace home with 3 bedrooms plus a study.
- Principal bedroom with a walk-in wardrobe and en-suite shower room.
- Living/dining room with French doors leading to a garden.
- Energy-efficient design, including photovoltaic panels and EV charging capability.
- Off-street driveway parking.
- Convenient access to local schools and amenities.
**Summary:**
Discover comfort and contemporary living in this spacious end-terrace home at Hawkhead Mews, Paisley. Ideal for families or first-time buyers, the flexible layout includes three bedrooms, a study, and a light-filled living/dining room with French doors to your private garden—perfect for summer gatherings. The principal bedroom features a walk-in wardrobe and en-suite shower, enhancing the convenience and privacy.
Benefit from energy-efficient living with modern sustainable features, ensuring lower utility costs and a reduced carbon footprint. The property is conveniently located near reputable schools, shopping, and leisure activities, with excellent transport links to Glasgow City Centre, making it an attractive option for commuters. Priced at £302,500, this new build offers great potential in a desirable area, though it is important to note that some external maintenance may be required for the garden space. Don’t miss out on this opportunity to make this modern home your own!
3 bedroom end of terrace house for sale in Hawkhead Mews,
Arthur Henderson Avenue,
Paisley,
PA2 7EZ, PA2 — £300,000 • 3 bed • 2 bath • 1152 ft²
3 bedroom end of terrace house for sale in Hawkhead Mews,
Arthur Henderson Avenue,
Paisley,
PA2 7EZ, PA2 — £302,500 • 3 bed • 2 bath • 1152 ft²
3 bedroom terraced house for sale in Hawkhead Mews,
Arthur Henderson Avenue,
Paisley,
PA2 7EZ, PA2 — £293,000 • 3 bed • 2 bath • 1152 ft²
3 bedroom end of terrace house for sale in Hawkhead Mews,
Arthur Henderson Avenue,
Paisley,
PA2 7EZ, PA2 — £302,500 • 3 bed • 2 bath • 1152 ft²
3 bedroom end of terrace house for sale in Hawkhead Mews,
Arthur Henderson Avenue,
Paisley,
PA2 7EZ, PA2 — £299,000 • 3 bed • 2 bath • 1152 ft²
3 bedroom end of terrace house for sale in Hawkhead Mews,
Arthur Henderson Avenue,
Paisley,
PA2 7EZ, PA2 — £302,500 • 3 bed • 2 bath • 1152 ft²














