**Standout Features:**
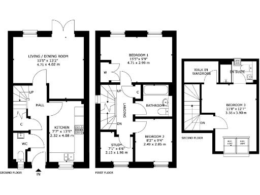
- 3 bedrooms plus a study
- Principal bedroom with walk-in wardrobe and en-suite shower room
- Flexible and spacious living/dining area with French doors to the garden
- Choice of modern kitchen units and stylish ceramic wall tiles
- Energy-efficient with high performance insulation and photovoltaic panels
- Off-street driveway parking
- Conveniently located near local amenities and transport links
**Summary:**
Discover comfort and contemporary living in this stylish end terrace home in Hawkhead Mews, Paisley. With three spacious bedrooms plus a dedicated study, the flexible layout is perfect for families or professionals seeking extra space. The principal bedroom boasts a walk-in wardrobe and en-suite shower room, while the open-plan living/dining area with French doors opens to a small private garden—ideal for relaxation or entertaining.
Enjoy the benefits of modern living with high energy efficiency, including photovoltaic panels and EV charging readiness, ensuring lower energy costs. This new build is set within a pleasant community, just moments away from local amenities such as parks, schools, and retail stores, with Paisley's vibrant town center less than two miles away. Excellent transport links make it a prime spot for commuters, just 9.5 miles from Glasgow City Centre.
While the property requires minimal maintenance, the average mobile signal may be a consideration for those dependent on constant connectivity. Overall, this home offers a unique opportunity for comfortable suburban living with future potential—act fast, as homes in this desirable development won't be available for long!
3 bedroom end of terrace house for sale in Hawkhead Mews,
Arthur Henderson Avenue,
Paisley,
PA2 7EZ, PA2 — £302,500 • 3 bed • 2 bath • 1152 ft²
3 bedroom terraced house for sale in Hawkhead Mews,
Arthur Henderson Avenue,
Paisley,
PA2 7EZ, PA2 — £293,000 • 3 bed • 2 bath • 1152 ft²
3 bedroom end of terrace house for sale in Hawkhead Mews,
Arthur Henderson Avenue,
Paisley,
PA2 7EZ, PA2 — £302,500 • 3 bed • 2 bath • 1152 ft²
3 bedroom end of terrace house for sale in Hawkhead Mews,
Arthur Henderson Avenue,
Paisley,
PA2 7EZ, PA2 — £302,500 • 3 bed • 2 bath • 1152 ft²
3 bedroom end of terrace house for sale in Hawkhead Mews,
Arthur Henderson Avenue,
Paisley,
PA2 7EZ, PA2 — £299,000 • 3 bed • 2 bath • 1152 ft²
3 bedroom end of terrace house for sale in Hawkhead Mews,
Arthur Henderson Avenue,
Paisley,
PA2 7EZ, PA2 — £302,500 • 3 bed • 2 bath • 1152 ft²














