Large garden, excellent schools and fast transport links for growing families.
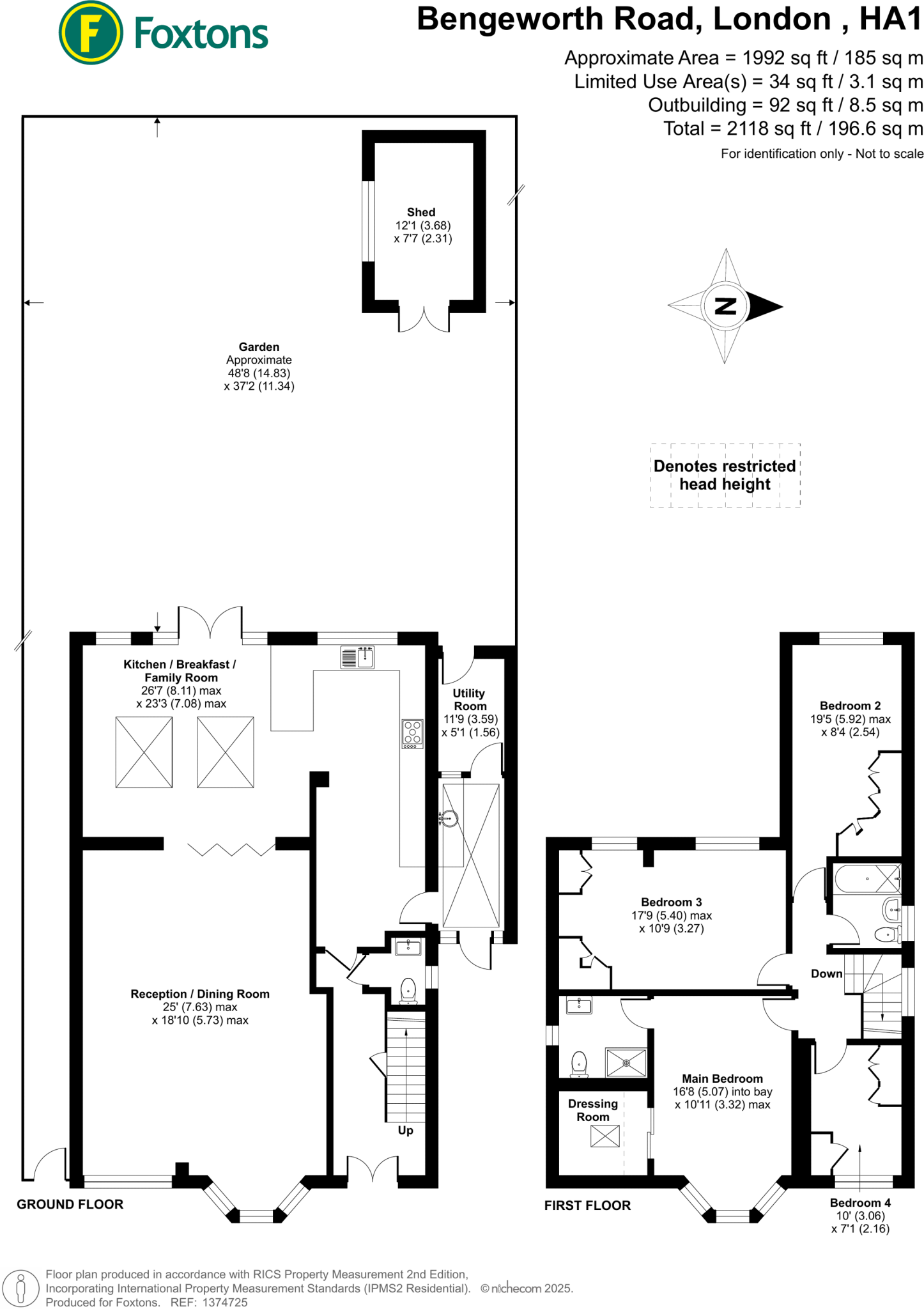
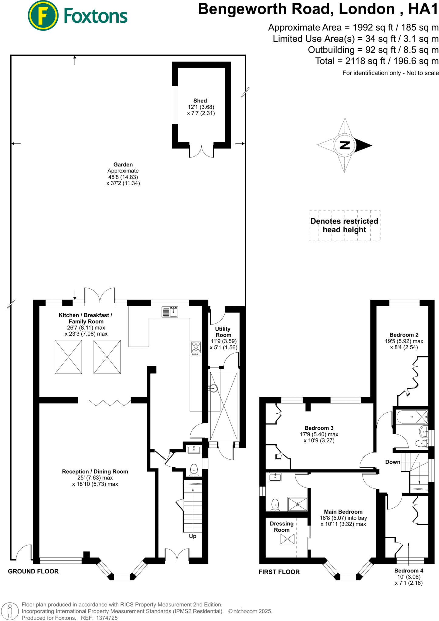
- Freehold detached house, approximately 2,118 sq ft
- Large open-plan reception and dining area with wood flooring
- Modern kitchen/breakfast room with integrated appliances
- Principal bedroom with dressing room and ensuite shower
- Decent rear garden suitable for entertaining and play
- Excellent mobile signal and fast broadband speeds
- Very affluent area with low crime and no flood risk
- Nearby schools include Outstanding, Good, and one Inadequate rating
Set over two floors, this generous 4-bedroom freehold home offers flexible family living in HA1. The large open-plan reception and dining space flows to a modern kitchen/breakfast room with integrated appliances, while a utility room and downstairs WC add everyday convenience.
The principal bedroom benefits from a dressing room and ensuite shower, joined by three further well-proportioned bedrooms and a family bathroom. At 2,118 sq ft overall with a decent rear garden, the property suits families who need space to relax and entertain.
Positioned close to Sudbury amenities and Sudbury Hill station, the house sits in a very affluent area with excellent mobile and broadband connectivity and low local crime. Nearby schools include Outstanding and Good-rated options, though one listed local school currently has an Inadequate Ofsted rating, so check catchment choices carefully.
Freehold tenure and no flood risk add practical reassurance. The home presents as contemporary and well-fitted throughout, offering immediate comfort with scope to personalise over time.
4 bedroom terraced house for sale in Fernbank Avenue, Wembley, HA0 — £625,000 • 4 bed • 2 bath • 1604 ft²
4 bedroom detached house for sale in Sudbury Court Drive, Harrow, HA1 — £940,000 • 4 bed • 2 bath • 1825 ft²
4 bedroom semi-detached house for sale in Priory Gardens, North Wembley, Wembley, HA0 — £1,000,000 • 4 bed • 3 bath • 1984 ft²
4 bedroom semi-detached house for sale in Cavendish Avenue, Harrow, HA1 — £725,000 • 4 bed • 2 bath • 1358 ft²
5 bedroom detached house for sale in Cavendish Avenue, Harrow, HA1 — £950,000 • 5 bed • 3 bath • 2416 ft²
3 bedroom end of terrace house for sale in Rosehill Gardens, Perivale, Greenford, UB6 — £650,000 • 3 bed • 2 bath • 1217 ft²






























































































































































