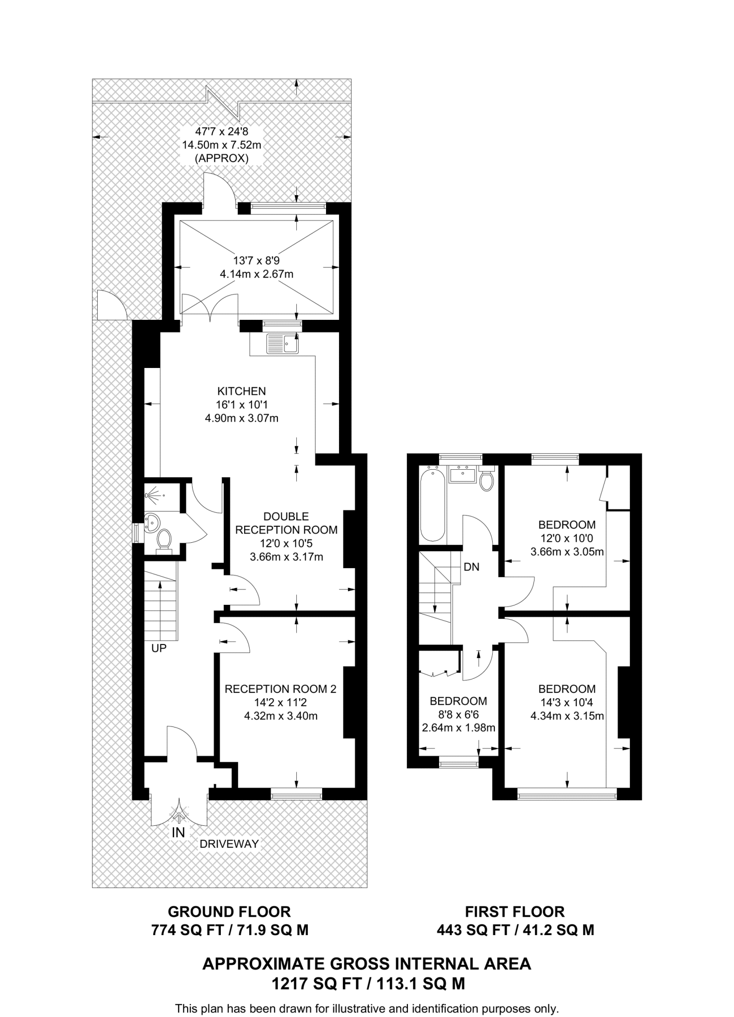
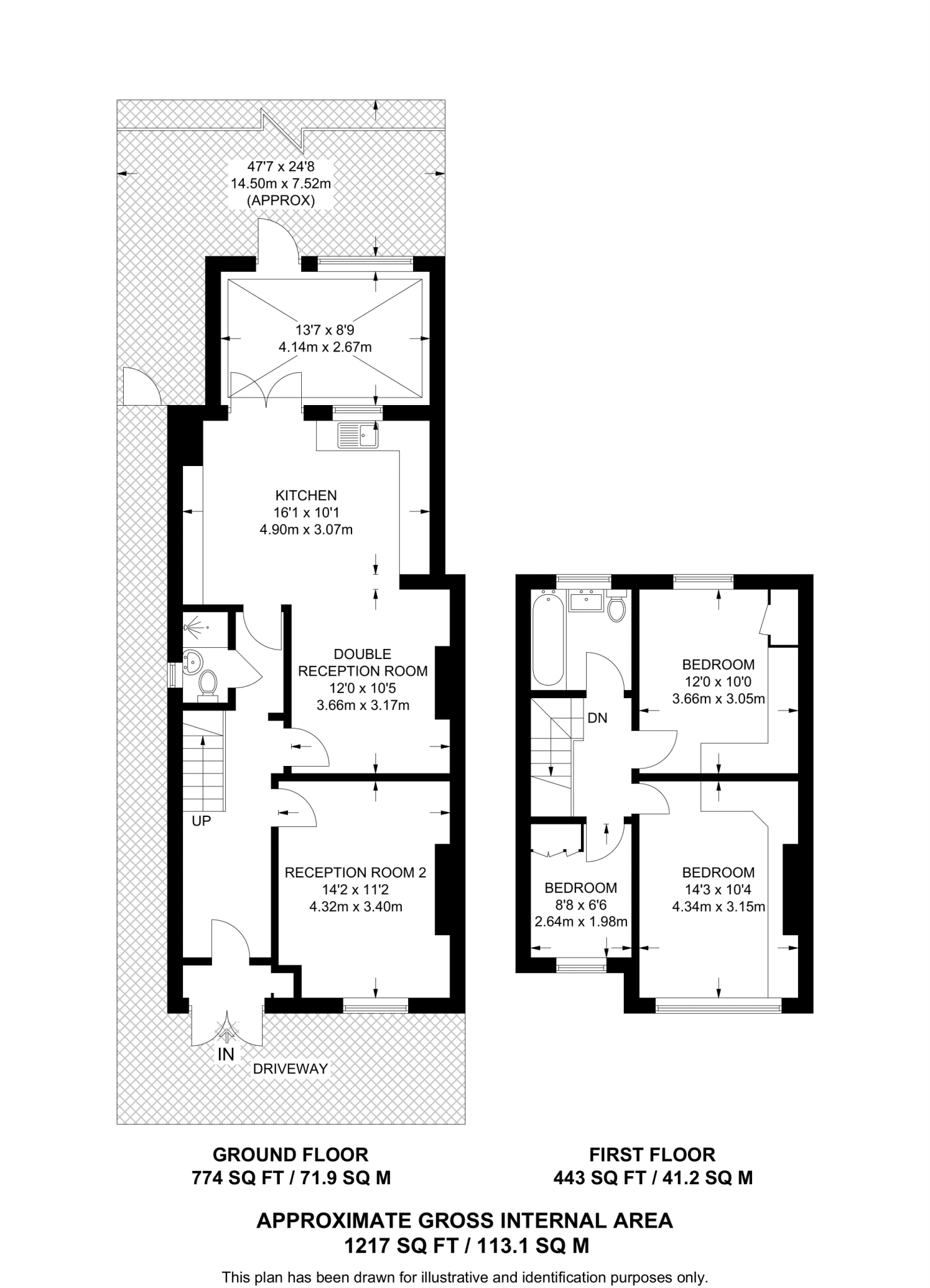
Three-bedroom extended property with large garden and off-street parking near Sudbury Hill.
Extended three-bedroom end-of-terrace with period exterior and contemporary interior
Eat-in modern kitchen with island and breakfast bar
Two reception rooms plus conservatory with garden access
Large private rear garden and off-street parking
Two sleek bathrooms; about 1,217 sq ft of living space
Freehold tenure; fast broadband and excellent mobile signal
Close to Sudbury Hill station, buses, shops and medical facilities
Area has average crime and deprivation; multicultural new-arrivals community
Bright, extended three-bedroom end-of-terrace presented in excellent condition with a contemporary interior and period exterior details. The eat-in kitchen features a breakfast bar and an island; two reception rooms and a conservatory give flexible family living that opens directly onto a large private garden.
Practical family features include two modern bathrooms, off-street parking, freehold tenure and about 1,217 sq ft of accommodation. Fast broadband and excellent mobile signal support home working and streaming.
Location is convenient for commuters, with Sudbury Hill Underground within easy reach and local amenities, buses and doctors close by. Several well-rated primary and secondary schools are in the area, including Outstanding and Good Ofsted ratings.
Notable considerations: the neighbourhood is a multicultural area with new arrivals and average crime and deprivation ratings. The property is average-sized on a decent plot; buyers seeking larger scale or rural quiet may want to view and compare nearby options.
3 bedroom terraced house for sale in Whitton Avenue East, Greenford, UB6 — £568,000 • 3 bed • 2 bath • 1014 ft²
3 bedroom terraced house for sale in Whitton Avenue East, Greenford, UB6 — £565,000 • 3 bed • 2 bath • 991 ft²
3 bedroom end of terrace house for sale in Whitton Avenue West, Greenford, Middlesex, UB6 — £550,000 • 3 bed • 1 bath • 767 ft²
3 bedroom end of terrace house for sale in Whitton Avenue East, Greenford, Middlesex, UB6 — £645,000 • 3 bed • 2 bath • 1042 ft²
3 bedroom end of terrace house for sale in Whitton Avenue East, Greenford, Middlesex, UB6 — £539,950 • 3 bed • 1 bath • 861 ft²
3 bedroom terraced house for sale in Whitton Avenue East, Greenford, UB6 — £565,000 • 3 bed • 2 bath • 882 ft²


































































































































