**Standout Features:**
- 3-bedroom end-terraced house in a quiet cul-de-sac
- Stunning Mediterranean-style rear garden with versatile building
- Off-road parking for multiple vehicles
- Fully boarded roof space for ample storage and workspace
- Located in the sought-after village of Wolsingham
- Low council tax and low crime area
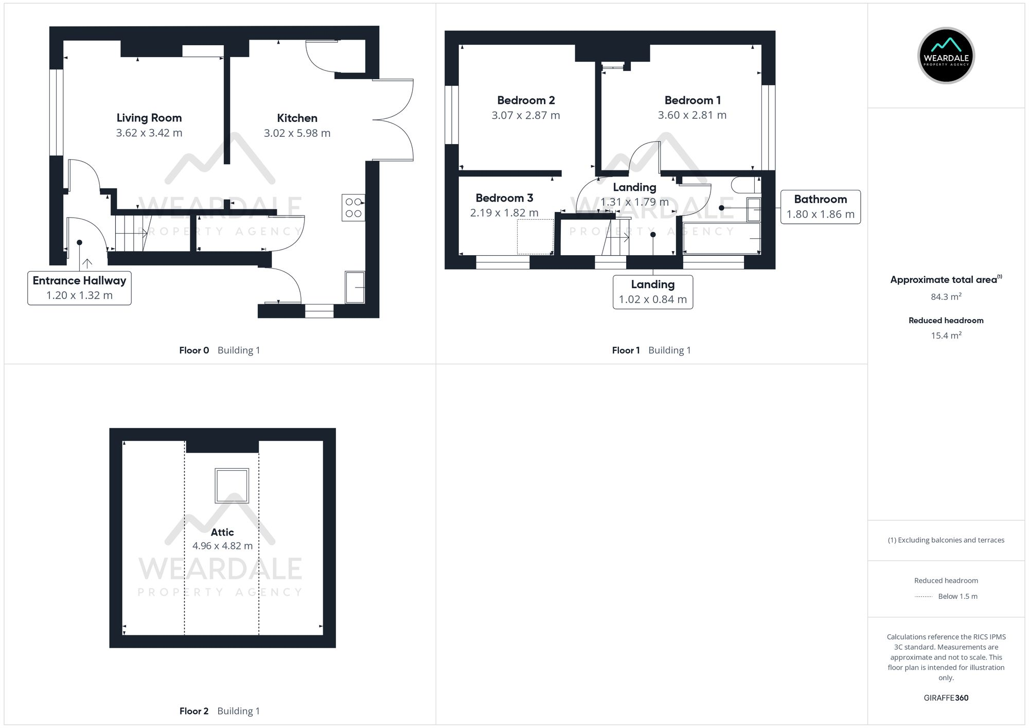
Nestled in the charming village of Wolsingham, this delightful 3-bedroom end-terraced house is ideal for first-time buyers or families seeking comfort and functionality. Enjoy the breathtaking Mediterranean-style courtyard garden, featuring an impressive garden building with endless possibilities—perfect for a home office or creative space. The property boasts off-road parking for several vehicles, enhancing its convenience and appeal.
Inside, the fully boarded roof space provides additional storage or workspace, while uPVC windows throughout allow natural light to flood the home. The layout includes a welcoming entrance hallway, a cozy living room, a well-proportioned kitchen, and three bedrooms—two of which are doubles—accompanied by a family bathroom.
The expansive West-facing outdoor space is designed for relaxation, featuring a beautifully landscaped garden with decking and a patio, all bordered by low-level fencing for added privacy. With excellent local amenities, reputable schools, and an affordable price, this property is a rare find. Don’t miss this opportunity for a serene lifestyle in Wolsingham! Contact us today to arrange a viewing.
4 bedroom end of terrace house for sale in St. Annes Drive, Wolsingham, Bishop Auckland, Durham, DL13 — £320,000 • 4 bed • 1 bath • 1247 ft²
3 bedroom detached house for sale in East End, Wolsingham, DL13 — £345,000 • 3 bed • 1 bath • 1547 ft²
4 bedroom terraced house for sale in St. Annes Drive, Wolsingham, Weardale, DL13 — £297,500 • 4 bed • 2 bath • 1138 ft²
4 bedroom semi-detached house for sale in Lydgate Lane, Wolsingham, DL13 — £365,000 • 4 bed • 2 bath • 1417 ft²
3 bedroom detached house for sale in Lea Green, Wolsingham, DL13 — £310,000 • 3 bed • 1 bath • 889 ft²
4 bedroom terraced house for sale in Angate Street, Wolsingham, Bishop Auckland, DL13 — £385,000 • 4 bed • 2 bath • 2460 ft²














































































































































































