Bright modern two-bed with balcony and concierge near transport links.
Spacious 1,200 sq ft two-floor duplex with abundant natural light
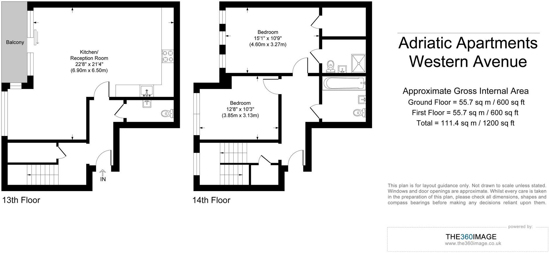
Bright two-floor living is the standout here: a 1,200 sq ft duplex with large open-plan reception and uninterrupted views across Royal Victoria Dock. Floor-to-ceiling glazing fills both levels with natural light and the private balcony provides a compact outdoor spot for city views. The modern kitchen has integrated appliances and the two double bedrooms are generously proportioned for the size.
The building offers concierge and a managed community heating scheme, which brings convenience but also means ongoing service charges and communal management. The apartment is leasehold; specific lease length and service charge figures should be checked before committing. The property has an EPC rating of C and double glazing, which is solid but not top-tier for energy efficiency.
Positioning is strong for city living: a short walk to the station, quick links to Canary Wharf, the ExCeL and local amenities including shops, cafés and leisure options. The neighbourhood is inner-city and cosmopolitan, suited to buyers who value connectivity and an active urban lifestyle. The balcony and high-rise outlook are great for views, but outdoor space is limited.
Overall this duplex suits professionals or first-time buyers seeking a bright, modern home near Canary Wharf with easy transport and local entertainment. Be mindful of leasehold tenure, communal heating arrangements and modest external space when considering long-term running costs and lifestyle fit.
2 bedroom flat for sale in Western Gateway, Royal Docks, London, E16 — £560,000 • 2 bed • 2 bath • 1190 ft²
2 bedroom penthouse for sale in Adriatic Apartments, Royal Victoria Dock, E16 — £800,000 • 2 bed • 2 bath • 1187 ft²
2 bedroom apartment for sale in Adriatic Apartments, Royal Victoria Dock, E16 — £530,000 • 2 bed • 2 bath • 1065 ft²
2 bedroom duplex for sale in Adriatic Apartments, Royal Victoria Dock, E16 — £550,000 • 2 bed • 2 bath • 1090 ft²
2 bedroom flat for sale in Adriatic Apartments, E16, Docklands, London, E16 — £530,000 • 2 bed • 2 bath • 962 ft²
2 bedroom flat for sale in Biscayne Avenue, London, E14 — £595,000 • 2 bed • 2 bath • 1000 ft²






















































