Light-filled three-bedroom family home with orangery and private driveway.
Three good-sized bedrooms with practical family layout
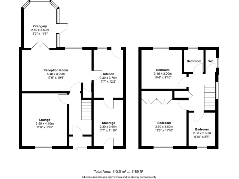
A well-presented three-bedroom semi-detached home arranged over two floors, offering about 1,189 sq ft of family-friendly living in a sought-after Ormskirk neighbourhood. The front lounge is bright with a large window; a second reception room opens into a light orangery that brings year-round garden views and creates a generous social space. The galley-style kitchen has shaker units and direct garden access; an adjacent large storage room could become a utility or home office.
Upstairs are three good-sized bedrooms, a stylish family bathroom and a separate WC — practical for family life but only one full bathroom. The property sits on a decent plot with a lawned rear garden and patio, plus a private driveway for off-street parking. The house is mid-20th century in style and generally well maintained, with fast broadband, low local crime and no flood risk.
Location is a key strength: close to several highly rated primary schools, local restaurants, bars and transport links into the North West. Note the garage requires replacement and the area includes a mix of ageing semi-detached homes, so buyers should allow for mid-term maintenance or updating where desired. Freehold tenure and council tax band C add practical appeal for families and first-time buyers.
3 bedroom semi-detached house for sale in Pendle Drive, Ormskirk, Lancashire, L39 — £230,000 • 3 bed • 1 bath • 713 ft²
3 bedroom semi-detached house for sale in Garnett Green, Ormskirk, Lancashire, L39 — £300,000 • 3 bed • 1 bath • 1422 ft²
3 bedroom semi-detached house for sale in Bath Springs, Ormskirk, L39 — £280,000 • 3 bed • 1 bath • 1112 ft²
3 bedroom semi-detached house for sale in Ludlow Drive, Ormskirk, Lancashire, L39 — £250,000 • 3 bed • 1 bath • 856 ft²
3 bedroom semi-detached house for sale in Gore Drive, Ormskirk, Lancashire, L39 — £260,000 • 3 bed • 1 bath • 1114 ft²
3 bedroom semi-detached bungalow for sale in Brighouse Close, Ormskirk, Lancashire, L39 — £265,000 • 3 bed • 1 bath • 969 ft²






































































