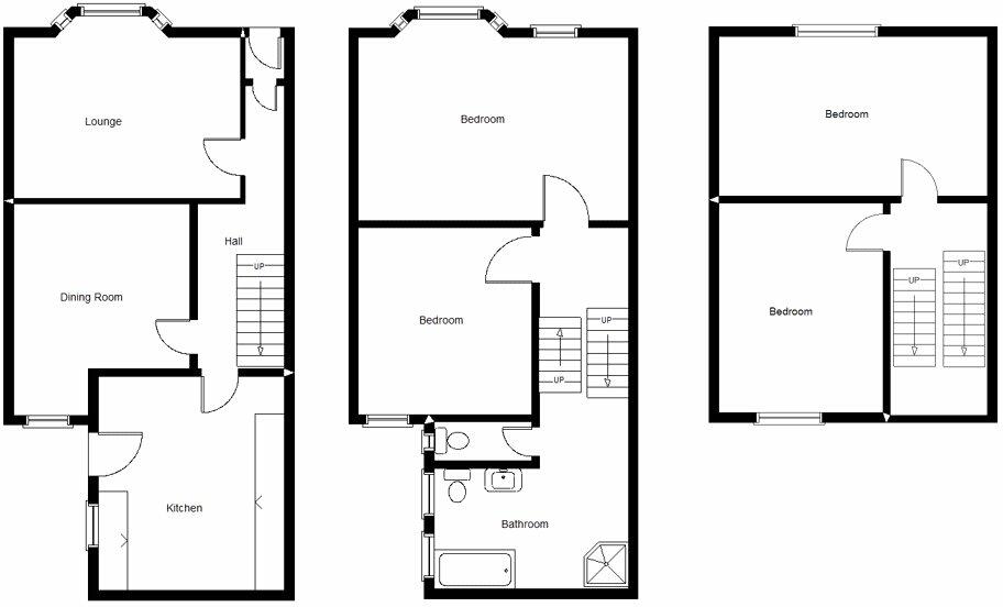
Characterful four-bedroom village home near schools and coastal amenities.
- Four bedrooms over three floors, flexible family layout
- Large kitchen with integrated appliances and external door
- Bay-fronted lounge with cast‑iron fireplace and high ceilings
- Enclosed, low‑maintenance rear garden with patio and lawn
- Partial uPVC double glazing and gas central heating to radiators
- Some bedrooms in eaves with restricted headroom
- Small plot and terraced setting; modest outdoor space
- Parking by council permit (£15/month) opposite the property
A spacious Victorian terraced home in Combe Martin, arranged over three floors and full of period character. The generous lounge with bay window and cast‑iron fireplace sits alongside a separate dining room and a large kitchen with integrated appliances, providing comfortable family living and easy entertaining space. Four bedrooms across the first and second floors offer flexibility for family life, home working or guests.
Practical features include gas central heating to radiators and partial uPVC double glazing, plus an easy‑maintenance, enclosed rear garden with patio and lawn. The property is set in a popular coastal village close to shops, pubs, health services and Good-rated primary schools, with very low local crime and excellent mobile signal.
Buyers should note some bedrooms are within eaves space and therefore have restricted headroom. Parking is by local council permit (currently £15/month) in the coach car park opposite. The plot is small and the property sits on a terraced row, so outdoor space is modest but low maintenance. Overall this freehold home will suit a family or anyone wanting characterful, village living near the coast.
4 bedroom terraced house for sale in Kingsley Terrace, Combe Martin, Ilfracombe, Devon, EX34 — £320,000 • 4 bed • 2 bath • 1229 ft²
5 bedroom terraced house for sale in High Street, Combe Martin, Ilfracombe, EX34 — £265,000 • 5 bed • 3 bath • 1200 ft²
4 bedroom terraced house for sale in Westbourne Terrace, Combe Martin, Ilfracombe, Devon, EX34 — £275,000 • 4 bed • 1 bath • 1575 ft²
4 bedroom end of terrace house for sale in Victoria Street, Combe Martin, EX34 — £325,000 • 4 bed • 2 bath • 1272 ft²
4 bedroom terraced house for sale in King Street, Combe Martin, Devon, EX34 — £240,000 • 4 bed • 2 bath • 795 ft²
4 bedroom semi-detached house for sale in Sunnyside, Combe Martin, Ilfracombe, EX34 — £375,000 • 4 bed • 2 bath • 1653 ft²














































































