E10 7BD - 3 bed victorian three bed terrace in Radlix Road, E10 7BD

View on Property Piper

3 bedroom terraced house for sale in Radlix Road, London, E10

Summary - 33 RADLIX ROAD LONDON E10 7BD

3 bed 1 bath Terraced

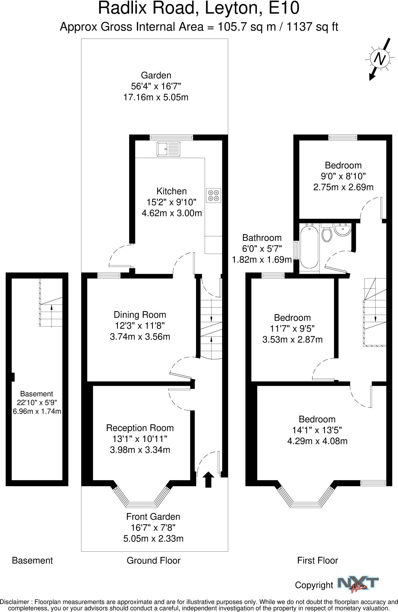
Newly renovated three-bedroom Victorian terrace with long garden and good schools nearby.
Three double bedrooms with high ceilings and bay window to front
Two reception rooms plus a large fitted kitchen with garden access
Long private rear garden (56'4" x 16'7") — good for children/entertaining
Basement 22'10" x 5'9" offers storage or conversion potential (subject to consent)
Newly renovated and move-in ready with fresh décor throughout
Freehold Victorian terrace — character features retained
Small front plot and overall plot size modest — typical terrace layout
Local area has higher crime and wider deprivation — factor into purchase decision
A newly renovated Victorian mid-terrace offering three double bedrooms, two reception rooms and a long private rear garden. Fresh décor and recent improvements mean the house is move-in ready while retaining period details such as bay windows and high ceilings. The generous kitchen and direct garden access suit family life and summer entertaining.

Set on a quiet Leyton turning, the freehold property sits close to outstanding primary schools and local amenities, with straightforward links into Central London. At 1,138 sq ft the layout suits growing families or first-time buyers seeking space to work and live in a suburban-urban setting.

Buyers should note the neighbourhood records higher crime and the wider area shows relative deprivation; practical buyers will weigh these factors alongside the house’s strengths. The small front plot and long, narrow garden are typical of Victorian terraces — the garden is a genuine asset but the plot size is modest. The long basement provides useful storage or conversion potential subject to planning.

Overall this is a practical, characterful family home with recent updating and clear scope to personalise further. It’s best suited to buyers prioritising living space, school access and transport links over a large plot or a very low-crime area.

Property Details

Image Descriptions

Floorplan Description

Rooms

Textual Property Features

Target Audience

AI Tags

Detected Visual Features

Nearby Schools

Nearest Bars And Restaurants

,,,,}

Nearest General Shops

,,}

Nearest Grocery shops

,,}

Nearest Supermarkets

,,}

Nearest Religious buildings

,,}

Nearest Medical buildings

,,,}

Nearest Airports

,}

Nearest Leisure Facilities

,,,,}

Nearest Tourist attractions

,,}

Nearest Train stations

,,,,}

Nearest Bus stations and stops

,,,,}

Nearest Hotels

,,}

Tags

Local Market Stats

AirBnB Data

Similar Properties

Meta

High Res Images

Compatible Images

Low res Images

Thumbnails

Raw Images

High Res Floorplan Images

Compatible Floorplan Images

Low res Floorplan Images

FloorplanImages Thumbnail

Raw Floorplan Images