Low‑maintenance two bedroom home near shops and schools.
Modern coach house in quiet cul‑de‑sac
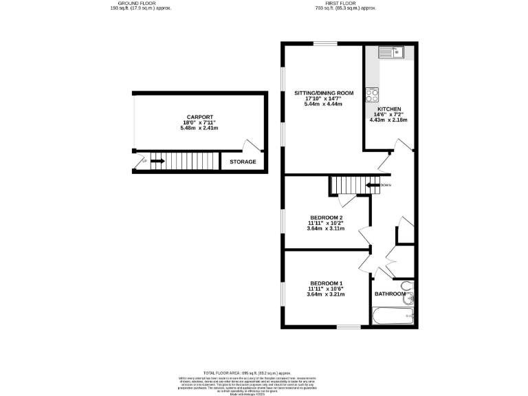
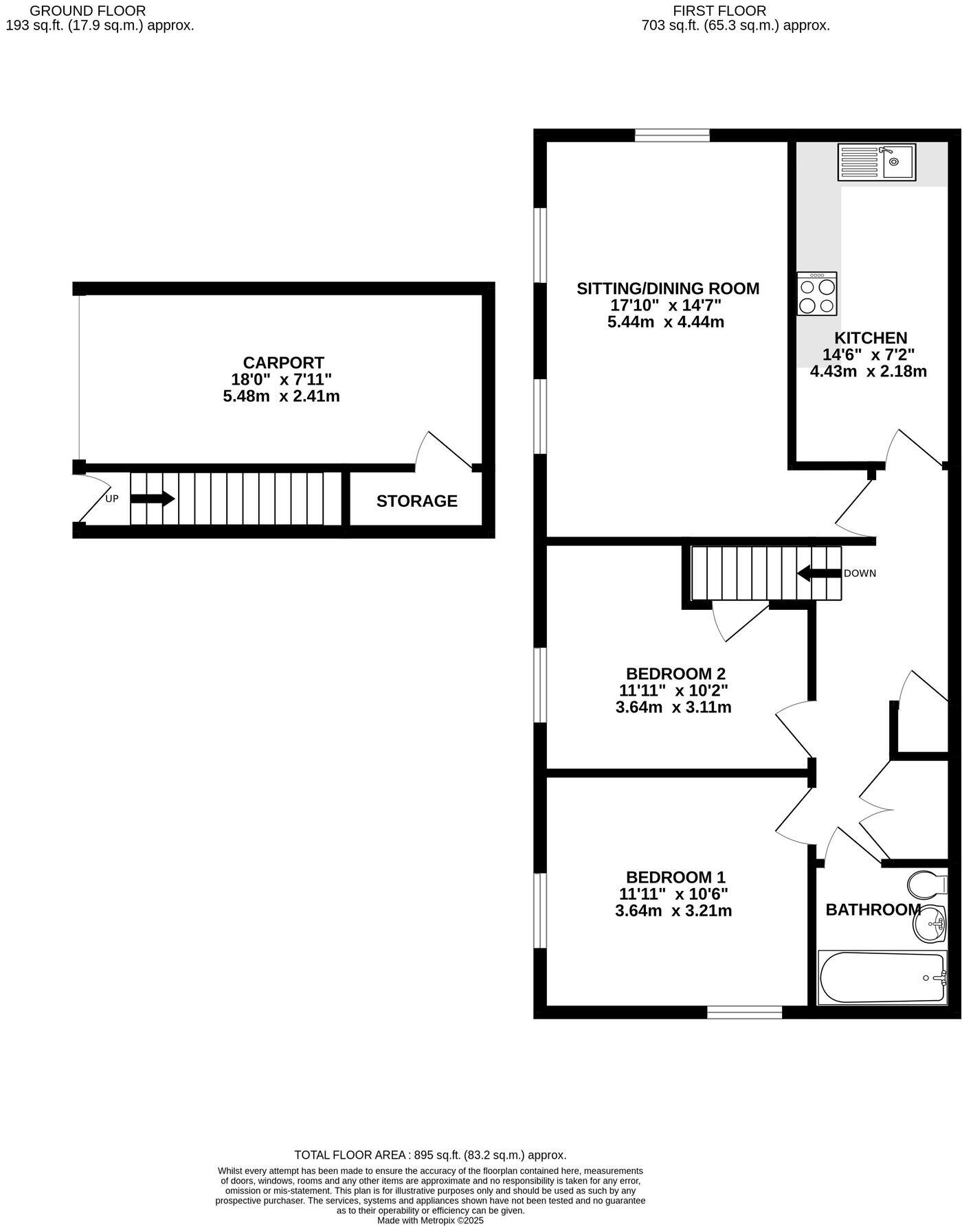
Set above covered carports in a quiet cul‑de‑sac, this modern two‑bed coach house offers low‑maintenance, well‑laid-out living within walking distance of Alresford town centre. The bright dual‑aspect sitting/dining room is the heart of the home, with an adjoining fitted kitchen and useful loft and under‑stair storage. Two double bedrooms and a contemporary bathroom complete the accommodation.
This is offered as either a 100% purchase at £350,000 or as a 50% shared ownership, with the remaining 50% rented at £290pcm and a service charge of around £90pcm. The lease has approximately 107 years remaining and two allocated parking spaces are included—one in the carports beneath the property plus an additional off‑street space.
Practical buyers will appreciate the low external upkeep and convenient location close to shops, schools and transport links, while those wanting a full freehold can staircase to 100% ownership. Note there is no private garden and the living space is typical of a coach‑house footprint, so buyers seeking large outdoor space or extensive square footage should be aware.
Overall, this home suits first‑time buyers or investors looking for a modern, easy‑care town property with straightforward parking and good local amenities. Shared ownership purchasers must meet Housing Association eligibility criteria before purchase.
2 bedroom coach house for sale in Thornton Close, Alresford, SO24 9FE, SO24 — £175,000 • 2 bed • 1 bath • 895 ft²
2 bedroom terraced house for sale in Huxley Drive, Alresford, Hampshire, SO24 — £435,000 • 2 bed • 1 bath • 936 ft²
2 bedroom coach house for sale in Sandyfields Lane, Colden Common, SO21 — £118,000 • 2 bed • 1 bath • 734 ft²
2 bedroom flat for sale in Huxley Drive, Alresford, Hampshire, SO24 — £38,500 • 2 bed • 1 bath • 797 ft²
4 bedroom end of terrace house for sale in Mayflower Road, Alton, Hampshire, GU34 — £253,000 • 4 bed • 2 bath • 1168 ft²
1 bedroom flat for sale in Robins Court, Alresford, Hampshire, SO24 — £220,000 • 1 bed • 1 bath • 458 ft²


























































