Spacious two-bedroom coach house — 50% shared ownership, walk to Alresford town centre.
Two double bedrooms, main bedroom dual-aspect
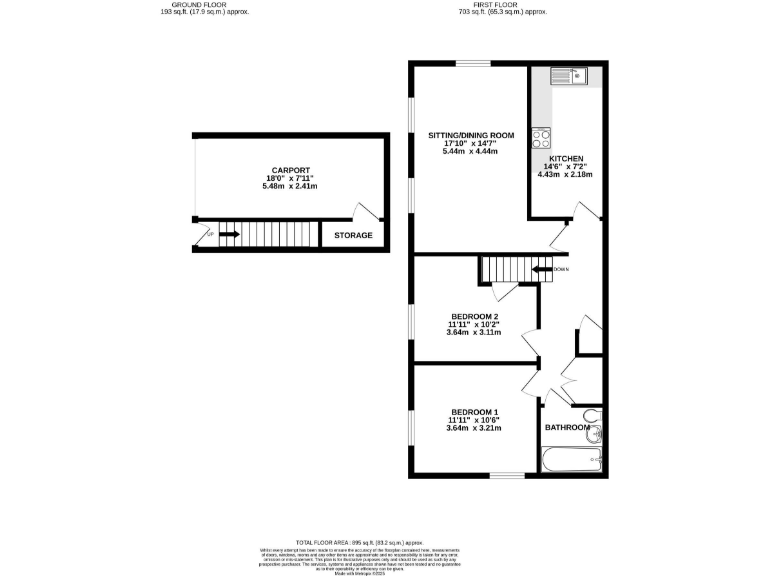
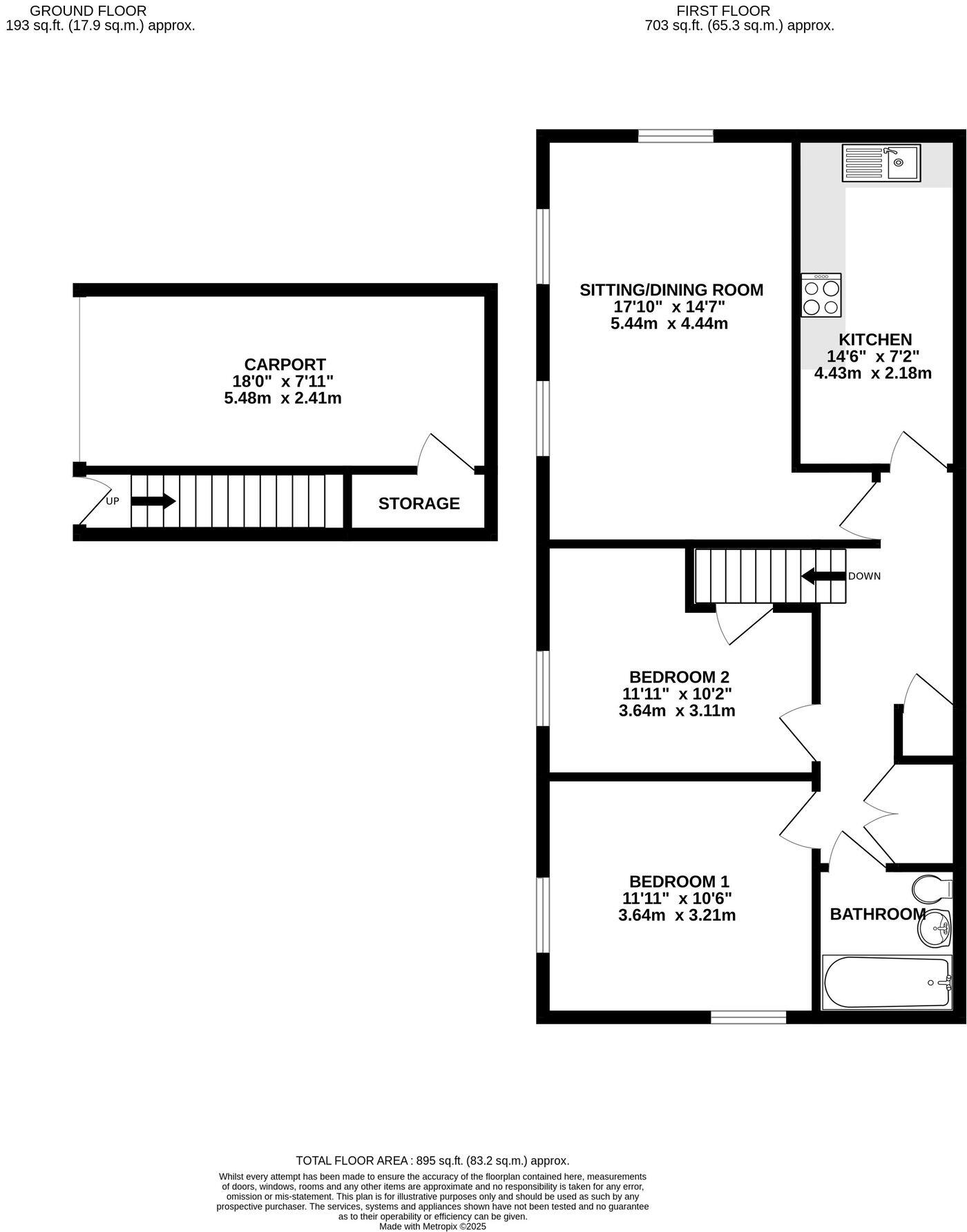
A bright, spacious two-bedroom coach house in a quiet cul-de-sac just a short walk from Alresford town centre. The first-floor dual-aspect sitting/dining room fills the home with light and sits alongside a fitted kitchen/breakfast room. Two double bedrooms — the main with dual aspect — plus loft and under-stairs storage provide practical room and flexibility.
Offered as a 50% shared ownership, this property suits a buyer seeking an affordable route into a desirable, very affluent area. The remaining 50% rent is £290 pcm with a service charge of £90 pcm; purchasers must be assessed by the housing association. Staircasing to 100% ownership is possible (full price £350,000).
Practical strengths include two allocated parking spaces (one in the carport with under-stair storage), good local schools, and easy access to Winchester and rail links. The modern bathroom has a shower over the bath and the layout is multi-storey, so consider mobility and accessibility needs.
Lease details and running costs are important: the property is leasehold with 107 years remaining, average service charge £1,080 pa, and council tax band C. Buyers should confirm eligibility for shared ownership and review lease terms and service charge arrangements before committing.
2 bedroom flat for sale in Huxley Drive, Alresford, Hampshire, SO24 — £38,500 • 2 bed • 1 bath • 797 ft²
2 bedroom coach house for sale in Sandyfields Lane, Colden Common, SO21 — £118,000 • 2 bed • 1 bath • 734 ft²
4 bedroom end of terrace house for sale in Mayflower Road, Alton, Hampshire, GU34 — £253,000 • 4 bed • 2 bath • 1168 ft²
2 bedroom flat for sale in Huxley Drive, Alresford, Hampshire, SO24 — £96,250 • 2 bed • 1 bath • 797 ft²
1 bedroom flat for sale in Robins Court, Alresford, Hampshire, SO24 — £220,000 • 1 bed • 1 bath • 458 ft²
1 bedroom flat for sale in Holland Drive, Medstead, Alton, Hampshire, GU34 — £145,000 • 1 bed • 1 bath • 564 ft²






























































