Secluded half-hectare parcel with immediate holiday-let potential and rural access.
- 1.24 acres (0.50 ha) of permanent grassland
- Planning approved for two timber holiday lodges (Winchester refs)
- Latest amendment permits two three-bedroom lodges on same footprints
- Condition limits use strictly to holiday accommodation only
- Freehold with mains water metered to site; electricity nearby believed available
- Rectangular, gently sloping site; well-screened by mature hedgerows
- Previously used for equestrian grazing; freely draining loamy soils
- Purchasers must verify services, consents, and any pre-commencement conditions
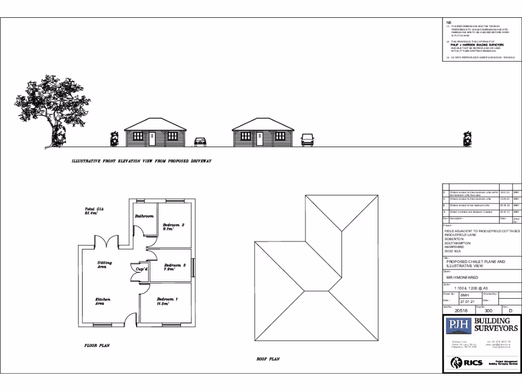
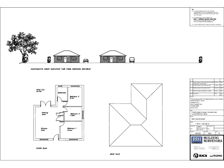
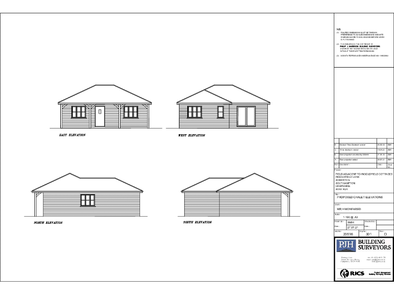
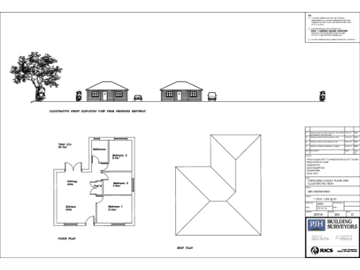
An attractive half-hectare parcel in gently sloping Hampshire countryside, this 1.24-acre site has planning consent for two timber-clad holiday lodges. The position is well screened by mature hedgerow and offers quiet, rural seclusion with good bridleway and lane access for guests. Mains water is connected and electricity is believed available nearby, making the site practical for holiday accommodation conversion.
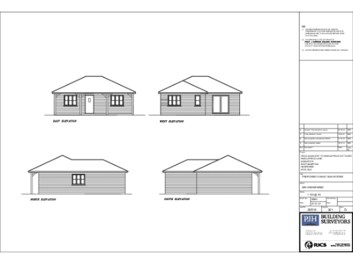
Planning approval (Winchester refs 22/01722/FUL and 24/00251/NMA) allows two lodges each c.661 sq ft; the most recent amendment permits three-bedroom layouts on the same footprints. The consent includes a condition limiting use to short-stay holiday accommodation only — a clear income-generating route but one that restricts long-term residential occupation. The land previously supported equestrian grazing and has freely draining loamy soils.
This freehold plot suits an operator or investor seeking a rural holiday-let opportunity close to well-regarded village schools and outdoor networks. The roadside gate is kept locked during marketing; viewing is possible during daylight with these particulars to hand. Purchasers should undertake their own enquiries into services, building regulations compliance and any further site works required before development.
Guide price: £350,000. Copies of planning documents are available to examine; buyers must satisfy themselves on utility provision and any pre-commencement requirements prior to purchase.
Land for sale in South Downs Trekking, Station Road, SO32 3QU, SO32 — £75,000 • 1 bed • 1 bath
Land for sale in South Downs Trekking, Station Road, SO32 3QU, SO32 — £85,000 • 1 bed • 1 bath
1 bedroom log cabin for sale in South Downs Lodge, Station Road, SO32 3QU, SO32 — £395,000 • 1 bed • 1 bath • 391 ft²
Land for sale in Maybush Lane, Soberton, Southampton, SO32 — £175,000 • 1 bed • 1 bath
1 bedroom detached house for sale in Lot 1 - Holiday Lodge, Station Road, SO32 — £235,000 • 1 bed • 1 bath
Land for sale in Hilldale Paddock, Biddenfield Lane, SO32 2HP, SO32 — £135,000 • 1 bed • 1 bath • 3229 ft²






























