Rare 152-acre Cheshire holding with planning consents and farming infrastructure.
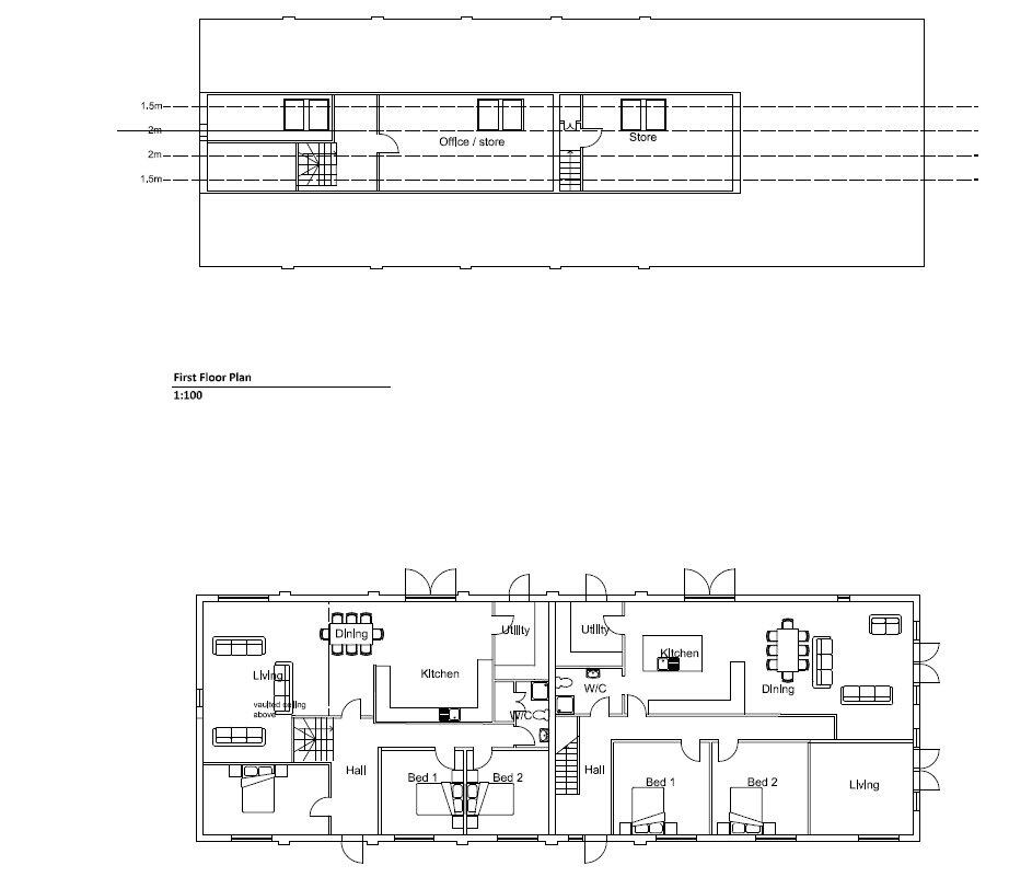
7 bedroom farmhouse plus Brydge Cottage and multiple barns on 152 acres
Full planning consents for three further residential conversions/dwellings
Productive Grade 3 farmland with irrigation abstraction licence included
Modern yard buildings partly let, offering immediate rental income potential
Good road/rail links; Alderley Edge and Wilmslow within short driving distance
EPC rating D; primary heating via LPG boiler and underfloor heating
High council tax bands; conversion works and permissions require implementation
No flood risk; mobile signal average despite fast broadband speeds
Corbishley Farm is a rare 152-acre Cheshire holding centred on a partially developed farmstead with substantial residential and agricultural value. The property includes two substantial dwellings, multiple barns and modern yard buildings, productive Grade 3 farmland with an abstraction licence for irrigation, and full planning consents for three additional homes — a strong proposition for developers, investors or a private buyer seeking scope to create a landmark estate.
The main farmhouse and Brydge Cottage provide immediate occupation and further extension potential (Brydge Cottage consented to a first-floor extension). Two barns have full permissions for conversion into three new dwellings, and an additional open barn and modern yard buildings offer rental or in-hand use. Productive loam and clay soils, good internal access, and an existing abstraction licence add operational farming value alongside development upside.
Practical considerations are clear: planning consents require implementation to realise value; some buildings need conversion works to become homes; LPG-fuelled heating and an EPC rating of D reflect existing energy performance; council tax bands are high. Broadband is fast and flood risk is low, but mobile signal is average. The sale offers scale and flexibility but will demand capital and planning management to complete the permitted schemes or pursue alternative redevelopment.
7 bedroom detached house for sale in Nursery Lane, Nether Alderley, Macclesfield, Cheshire, SK10 — £5,000,000 • 7 bed • 2 bath • 8120 ft²
7 bedroom detached house for sale in Nursery Lane, Nether Alderley, Macclesfield, Cheshire, SK10 — £3,000,000 • 7 bed • 4 bath • 5101 ft²
Land for sale in Nursery Lane, Nether Alderley, Macclesfield, Cheshire, SK10 — £1,000,000 • 1 bed • 1 bath • 1809 ft²
4 bedroom barn conversion for sale in Macclesfield, Cheshire, SK10 — £700,000 • 4 bed • 2 bath • 2161 ft²
6 bedroom farm house for sale in Welsh Row, Nether Alderley, SK10 — £2,350,000 • 6 bed • 5 bath • 4479 ft²
5 bedroom detached house for sale in Woore Road, Buerton, Cheshire, CW3 — £2,000,000 • 5 bed • 6 bath • 7279 ft²






































































































































