Planning consents for three extra homes within a private, scenic setting near Alderley Edge.
Substantial 2.59-acre plot with mature grounds and countryside views
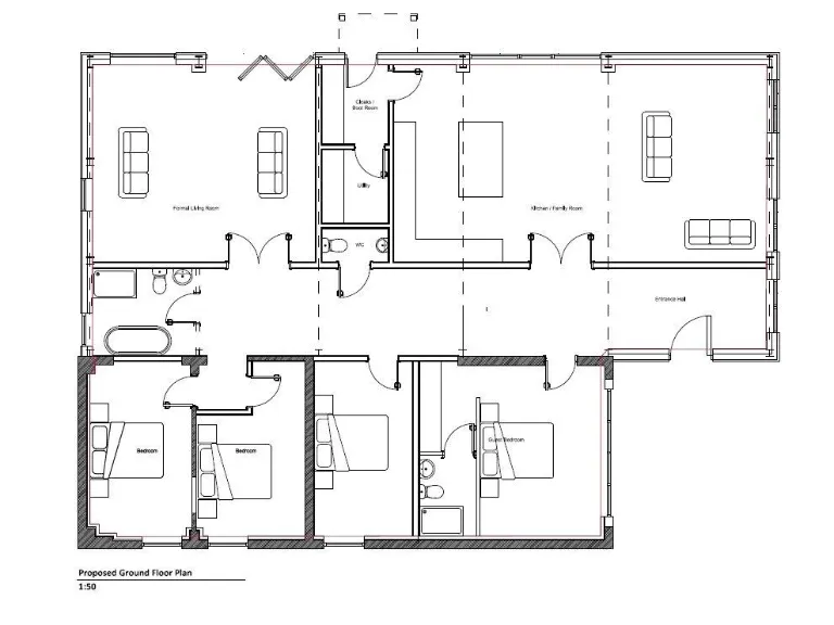
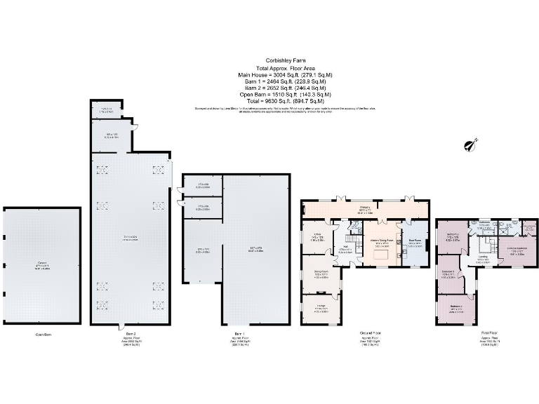
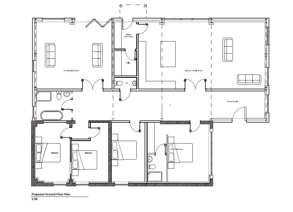
A rare semi-rural holding just outside Alderley Edge, centred on a traditional farmhouse and a modernised cottage within c.2.59 acres. The principal farmhouse (c.3,000 sq ft) and Brydge Cottage (c.2,000 sq ft) sit with far-reaching countryside views and mature grounds, offering immediate family accommodation alongside clear development upside.
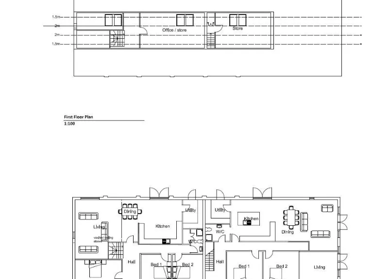
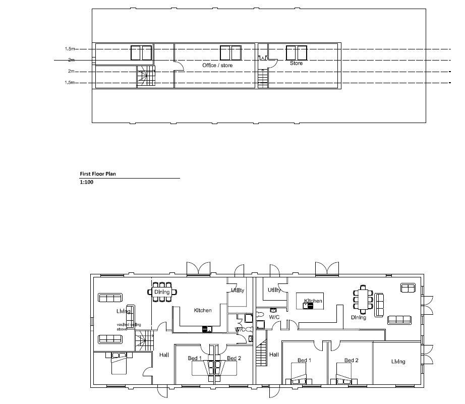
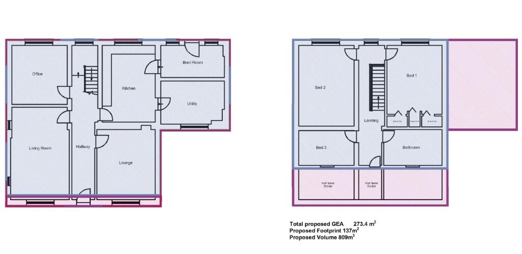
Full planning consents exist to extend Brydge Cottage and convert two barns into three additional dwellings (refs: 23/1142M, 23/3341M, 24/2206M), creating a versatile package for developers, investors or an extended family scheme. There is also an open barn for garaging, storage or future uses (subject to consents). Wider development is possible subject to planning (STPP).
Practical points for buyers: the properties are freehold, total c.5,101 sq ft, heated via LPG boiler with underfloor heating, and have double glazing. EPC rating for Brydge Cottage is D. Broadband speeds in the area are very slow and council tax bands are high, which will affect running costs. Overall this is a substantial, flexible site in an affluent, low-crime rural setting close to schools, rail and Manchester Airport.
6 bedroom farm house for sale in Welsh Row, Nether Alderley, SK10 — £2,350,000 • 6 bed • 5 bath • 4479 ft²
3 bedroom barn conversion for sale in Alderley Park, Congleton Road, Nether Alderley, SK10 — £599,950 • 3 bed • 2 bath • 1216 ft²
5 bedroom detached house for sale in Chester Road, Woodford, SK7 — £1,395,000 • 5 bed • 5 bath • 3325 ft²
5 bedroom detached house for sale in Chester Road, Woodford, Stockport, Greater Manchester, SK7 — £1,395,000 • 5 bed • 5 bath • 3323 ft²
4 bedroom barn conversion for sale in Macclesfield, Cheshire, SK10 — £700,000 • 4 bed • 2 bath • 2161 ft²
5 bedroom detached house for sale in Moss Road, Alderley Edge, SK9 — £2,000,000 • 5 bed • 4 bath • 3021 ft²






































































































