Rare Category A Georgian mansion with loch, woodland and major restoration potential..
- Category A listed Georgian mansion with major period features
- Huge estate: c.328 acres, mature woodland and White Loch frontage
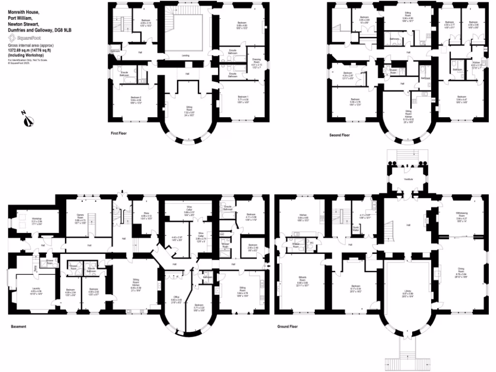
- 15 bedrooms across main house presented as six apartments
- Kennels Cottage recently renovated; three further cottages producing income
- Wiring disconnected on upper floors; parts require full restoration
- EPC rating F; listed status restricts alterations and increases costs
- Remote location; long drive, average mobile signal, fast broadband
- Access track partly unowned; servitudes and public access apply
An exceptional Category A listed Georgian mansion set within huge policy grounds around the White Loch of Myrton. The principal house offers grand period reception rooms, a bow-fronted library and multiple self-contained apartments across four floors, plus separate cottages and extensive mature woodland. The loch, boathouse and designed gardens are major amenity features and support wildlife, leisure and fishing.
This is a significant restoration and investment opportunity. Parts of the house are presented as six apartments with wiring disconnected in the upper floors; communal services and fabric will need comprehensive updating. EPC rating F and the listed status mean any works will require specialist consent and potentially high conservation costs.
The estate includes three let cottages and a recently renovated Kennels Cottage (sold as a separate lot if required), providing immediate rental income and flexible occupation options. The property is remote, with average mobile signal, fast broadband and long drives; practical running costs and access rights should be confirmed before purchase.
For buyers seeking an historic country estate with huge scope — conservation-led restoration, holiday/letting potential or a private family seat — this holding delivers scale, setting and provenance. Be prepared for lengthy permissions, substantial capital expenditure and ongoing maintenance associated with a Category A mansion and extensive grounds.
15 bedroom detached house for sale in LOT 1 - Monreith House and Estate, Port William, Newton Stewart, Dumfries and Galloway, DG8 — £1,550,000 • 15 bed • 1 bath • 14776 ft²
4 bedroom detached house for sale in LOT 2 - Kennels Cottage, Monreith Estate, Port William, Newton Stewart, Dumfries and Galloway, DG8 — £340,000 • 4 bed • 2 bath
5 bedroom detached house for sale in Borgue, Kirkcudbright, Dumfries and Galloway, DG6 — £790,000 • 5 bed • 5 bath • 3685 ft²
3 bedroom house for sale in Oxly House, Oxly House, Castle Douglas, DG7 — £375,000 • 3 bed • 1 bath
3 bedroom house for sale in Oxly House & Garage, Oxly House, Castle Douglas, DG7 — £525,000 • 3 bed • 1 bath
5 bedroom detached villa for sale in Glenalty Cottage, Barrhill, KA26 — £435,000 • 5 bed • 3 bath • 3000 ft²


































































































































