Spacious historic five-bed estate with annex, gardens and wild swimming pond.
Coastal views over Wigtown Bay from principal rooms and terraces
U-shaped early-18th-century former laird’s house with period features
Self-contained annex wing suitable for guests or potential short-term let
Generous grounds 5.93 acres: formal garden, paddock, woodland, wild pond
Newly landscaped wild swimming pond and mature woodland (3.6 acres)
Category B listed — will restrict alterations and complicate works
EPC Band E; two oil boilers and private septic tanks for services
Council tax described as quite expensive; rural services limited
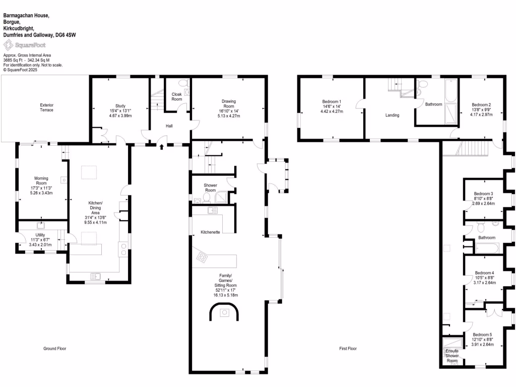
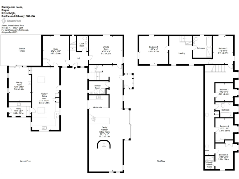
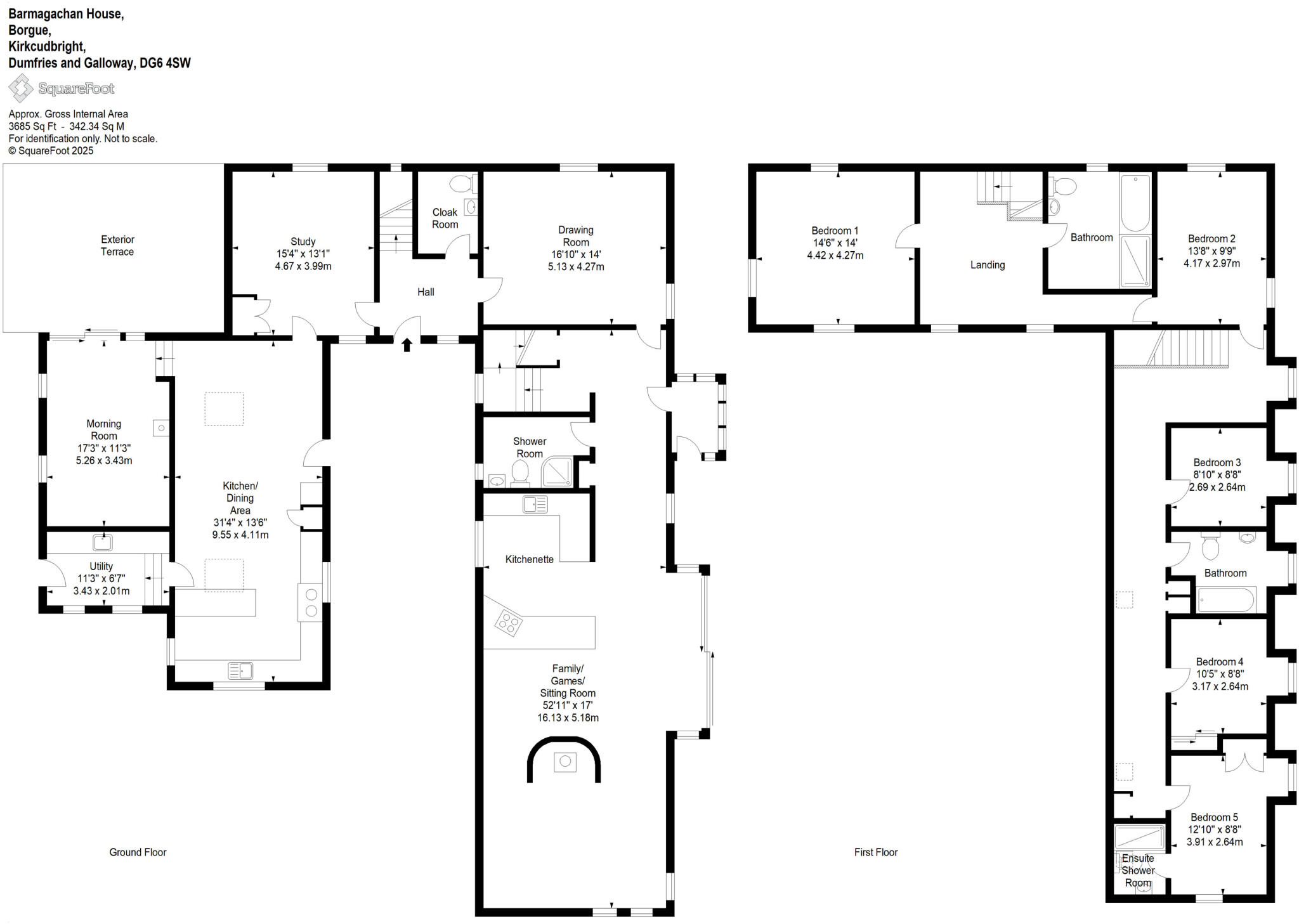
This substantial early-18th-century former laird’s house sits on a huge 5.93-acre plot with uninterrupted coastal views across Wigtown Bay. The U-shaped layout provides bright, spacious living areas designed for modern family life while retaining period character. A self-contained annex wing offers flexible use as guest accommodation, home office or a potential short-term let (subject to licensing).
Grounds are a standout: formal gardens with pergola, terraces for al fresco dining, woodland and a newly landscaped wild swimming pond. The estate includes a paddock with an ancient motte and bailey and mature planting that provides strong privacy and scope for outdoor pursuits.
Buyers should note material constraints: the property is Category B listed which will restrict alterations and could complicate maintenance. Heating is via two oil boilers, drainage is to private septic tanks, and the EPC is band E. Council tax is described as quite expensive and the wider area is an ageing rural neighbourhood with limited local services.
For the right buyer—families seeking spacious historic living, buyers wanting a coastal private estate, or those seeking an ancillary income stream—the house offers rare scale and character. Expect to budget and plan for listed-property upkeep and running costs, but benefit from a unique setting, extensive land and flexible accommodation.
9 bedroom detached house for sale in Barnbarroch House, Barnbarroch, DG5 — £1,000,000 • 9 bed • 6 bath • 5630 ft²
6 bedroom detached house for sale in 1 The Mews, Balcary, Auchencairn, DG7 — £895,000 • 6 bed • 5 bath • 5931 ft²
7 bedroom detached house for sale in Castlewigg Lodge, Whithorn, DG8 8DL, DG8 — £460,000 • 7 bed • 1 bath
Farm land for sale in Borgue House, Borgue, DG6 4SQ, DG6 — £4,400,000 • 5 bed • 1 bath • 826 ft²
5 bedroom detached house for sale in Hill Of Balmaclellan, Balmaclellan, Castle Douglas, Dumfries and Galloway, DG7 — £520,000 • 5 bed • 1 bath
7 bedroom barn conversion for sale in Whithorn, Newton Stewart, DG8 — £634,995 • 7 bed • 7 bath • 3778 ft²






























































































