NG11 8NH - 6 bed north wing clifton hall in Holgate, NG11 8NH

View on Property Piper

6 bedroom country house for sale in Holgate, Clifton Village, NG11

Summary - NORTH WING, CLIFTON HALL, HOLGATE NG11 8NH

6 bed 5 bath Country House

Grand restored country house with leisure wing and riverside gardens.
Grade I listed Georgian wing with original period features preserved
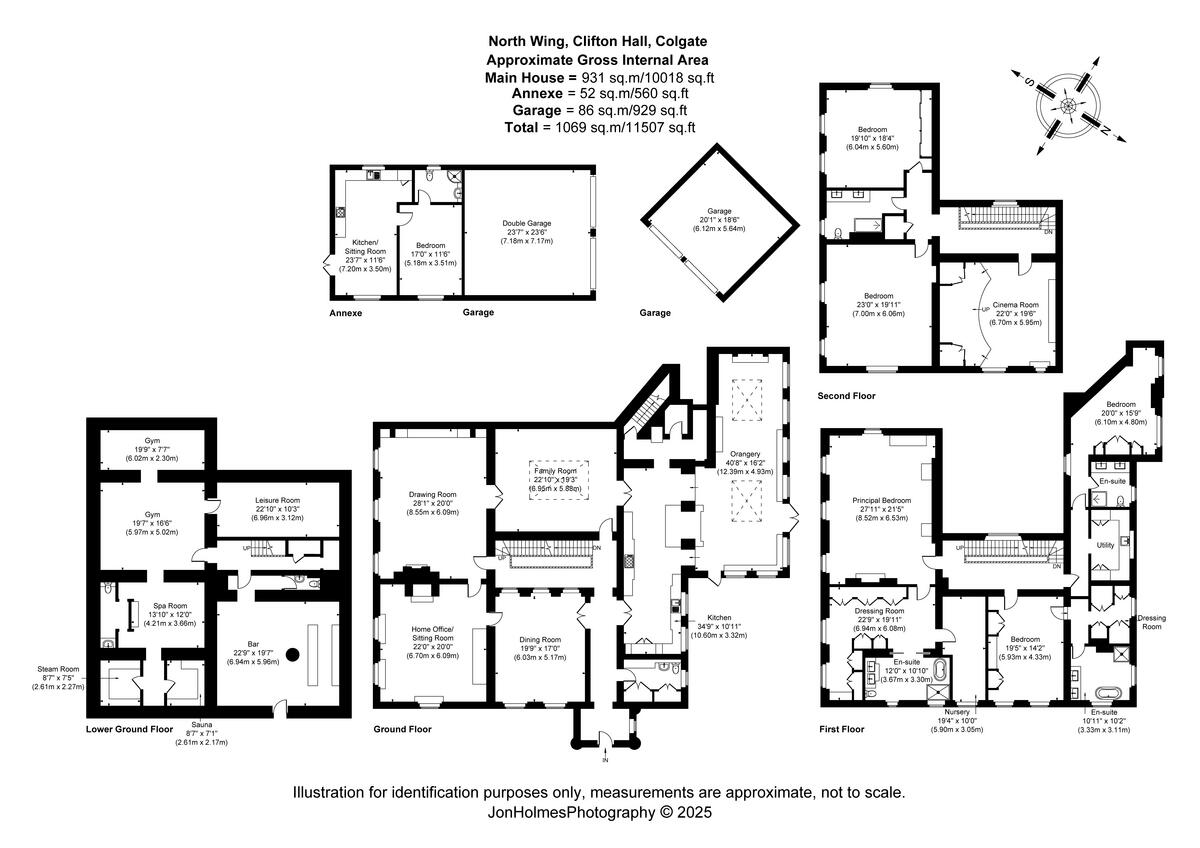
The North Wing of Clifton Hall is a rare Grade I listed Georgian home, restored throughout to an exceptionally high standard. Original features — high ceilings, sash windows and ornate fireplaces — sit alongside bespoke fittings such as a Clive Christian kitchen and Harper Charles furniture, giving grand, liveable interiors across five reception rooms and generous bedroom suites.

Leisure and entertaining are well catered for: converted vaulted cellars house a gym, spa with steam room and sauna, a home cinema with tiered seating, and a party bar. Outside, formal landscaped gardens and a very large plot border the River Trent, with discreet coach-house style garaging and a self-contained annexe providing flexible accommodation or rental potential.

This house suits families or buyers seeking a stately main residence with high-spec leisure and entertaining spaces. Practicalities are present — utility and storage rooms, extensive fitted wardrobes and laundry facilities — alongside modern comforts installed during the recent renovation.

Buyers should note material constraints: Grade I listing will restrict changes and may complicate maintenance or extension work. The property lies in a high flood‑risk area, council tax is very expensive, broadband speeds are slow and local crime rates are above average. Tenure stated as Freehold; EPC is exempt due to listed status.

Property Details

Image Descriptions

Floorplan Description

Rooms

Textual Property Features

Target Audience

AI Tags

Detected Visual Features

Nearby Schools

Nearest Bars And Restaurants

,,,,}

Nearest General Shops

,,}

Nearest Grocery shops

,,}

Nearest Supermarkets

,,}

Nearest Religious buildings

,,}

Nearest Medical buildings

,,,}

Nearest Airports

}

Nearest Leisure Facilities

,,,,}

Nearest Tourist attractions

,,}

Nearest Train stations

,,,,}

Nearest Bus stations and stops

,,,,}

Nearest Hotels

,,}

Tags

Local Market Stats

Similar Properties

Meta

High Res Images

Compatible Images

Low res Images

Thumbnails

Raw Images

High Res Floorplan Images

Compatible Floorplan Images

Low res Floorplan Images

FloorplanImages Thumbnail

Raw Floorplan Images