Spacious family home on a large plot with move-in incentives for quick buyers.
Stamp duty paid incentive worth £16,250 for quicker completion
Underfloor heating to ground floor; Amtico and carpet throughout
Shaker-style kitchen with integrated appliances; laminate worktop
Principal bedroom with en-suite; fitted wardrobes to bedrooms 1 and 2
Large private plot; landscaped front garden and turfed rear
Garage, driveway parking and EV charging point included
New-build: 2-year developer warranty; 10-year structural warranty
Service charge £357.31/year; council tax band to be confirmed
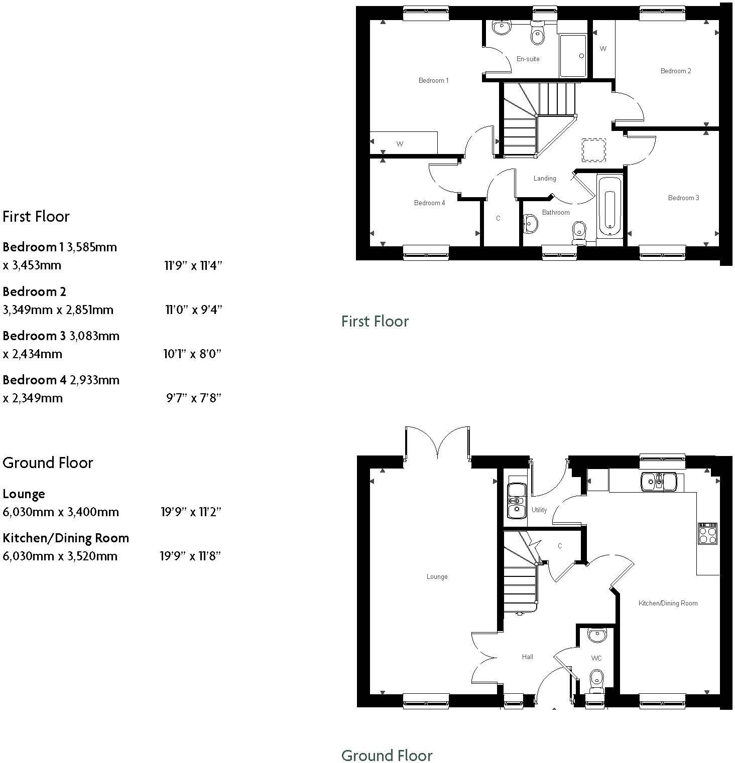
Step into The Galloway — a spacious four-bedroom detached home arranged for modern family life. Ground-floor open-plan kitchen/dining and a dual-aspect living room both open via French doors to the turfed rear garden, creating bright, flexible entertaining spaces. Underfloor heating to the ground floor and Amtico flooring provide low-maintenance comfort where it matters most.
The fitted shaker-style kitchen includes integrated appliances and laminate worktops; bedrooms 1 and 2 have built-in wardrobes and the principal bedroom benefits from an en-suite. A garage, driveway parking and an EV charging point add practical convenience for family cars and visitors. The plot is very large for the development, with landscaped front and rear gardens.
This is a new-build home sold freehold with a 2-year developer warranty plus the standard 10-year structural cover. Annual service charge is modest at £357.31. Council tax band is yet to be determined. Note the laminate worktop specification and the short initial builder warranty period for non-structural finishes — both factors to consider if you plan immediate bespoke upgrades.
4 bedroom end of terrace house for sale in Daggons Road,
Alderholt,
Fordingbridge,
Dorset,
SP6 3AA, SP6 — £460,000 • 4 bed • 2 bath • 1317 ft²
3 bedroom detached house for sale in Daggons Road,
Alderholt,
Fordingbridge,
Dorset,
SP6 3AA, SP6 — £460,000 • 3 bed • 2 bath • 1212 ft²
2 bedroom terraced house for sale in Daggons Road,
Alderholt,
Fordingbridge,
Dorset,
SP6 3AA, SP6 — £325,000 • 2 bed • 2 bath • 774 ft²
2 bedroom end of terrace house for sale in Daggons Road,
Alderholt,
Fordingbridge,
Dorset,
SP6 3AA, SP6 — £335,000 • 2 bed • 2 bath • 774 ft²
2 bedroom coach house for sale in Daggons Road,
Alderholt,
Fordingbridge,
Dorset,
SP6 3AA, SP6 — £325,000 • 2 bed • 2 bath • 802 ft²
1 bedroom apartment for sale in Daggons Road,
Alderholt,
Fordingbridge,
Dorset,
SP6 3AA, SP6 — £210,000 • 1 bed • 1 bath • 524 ft²


















































