Single-level living in Richmond school catchment with versatile outbuilding.
- Single-storey layout ideal for level-access living
- Fully renovated kitchen with garden views
- Bright conservatory extending living space
- Large detached outbuilding with power and lighting
- Gated driveway with off-street parking for multiple cars
- Chain free and freehold ownership
- Single family bathroom only
- Modest rear garden; extension potential subject to planning
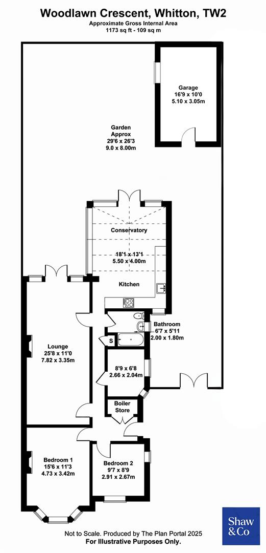
A well-presented, single-storey home set back behind wrought-iron gates on a generous paved driveway. The bungalow offers easy, level living with three comfortable bedrooms and an open living/dining space that flows into a bright conservatory.
The kitchen has been fully renovated and benefits from good natural light and pleasant garden views. At the end of the garden is a large detached outbuilding with power and lighting — useful as a workshop, home office, studio or storage.
Practical features include off-street parking for multiple vehicles, gated side access, double-glazed leaded windows and an alarm. The property is freehold, chain free and located within the Richmond school catchment, making it attractive to families and downsizers.
Buyers should note there is a single family bathroom and the rear garden is modest in size. While the interior is in good order, there is potential for further modernisation or side/rear extension (subject to planning) to increase living space and value.
3 bedroom bungalow for sale in Woodlawn Crescent, Whitton, TW2 — £724,950 • 3 bed • 1 bath • 902 ft²
3 bedroom bungalow for sale in Lyndhurst Avenue, Whitton, TW2 — £550,000 • 3 bed • 1 bath • 675 ft²
3 bedroom detached bungalow for sale in Ellerman Avenue, Twickenham, TW2 — £699,950 • 3 bed • 1 bath • 1740 ft²
3 bedroom bungalow for sale in Glasbrook Avenue, Twickenham, TW2 — £549,950 • 3 bed • 1 bath • 871 ft²
3 bedroom semi-detached bungalow for sale in Glasbrook Avenue, London, TW2 — £549,950 • 3 bed • 1 bath • 874 ft²
3 bedroom bungalow for sale in Glasbrook Avenue, Twickenham, TW2 — £600,000 • 3 bed • 1 bath • 829 ft²






























































