CF34 9RG - 4 bedroom detached house for sale in Plot 1 ParcTynyWaun, L…

View on Property Piper

4 bedroom detached house for sale in Plot 1 Parc-Tyn-y-Waun, Llangynwyd, Maesteg, Bridgend. CF34 9RG, CF34

Summary - 1 PARC TYN Y WAUN LLANGYNWYD MAESTEG CF34 9RG

4 bed 2 bath Detached

Contemporary family home with balcony, garage and countryside views.
Brand-new four-bedroom semi-detached house with contemporary finishes
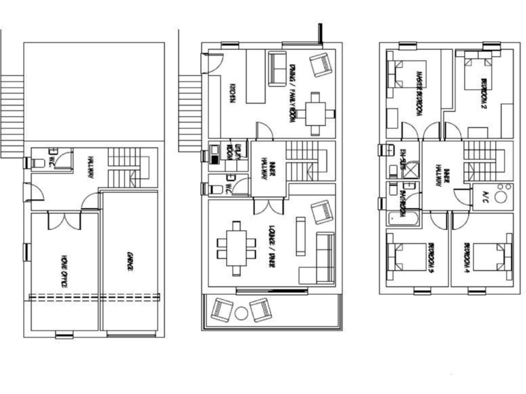
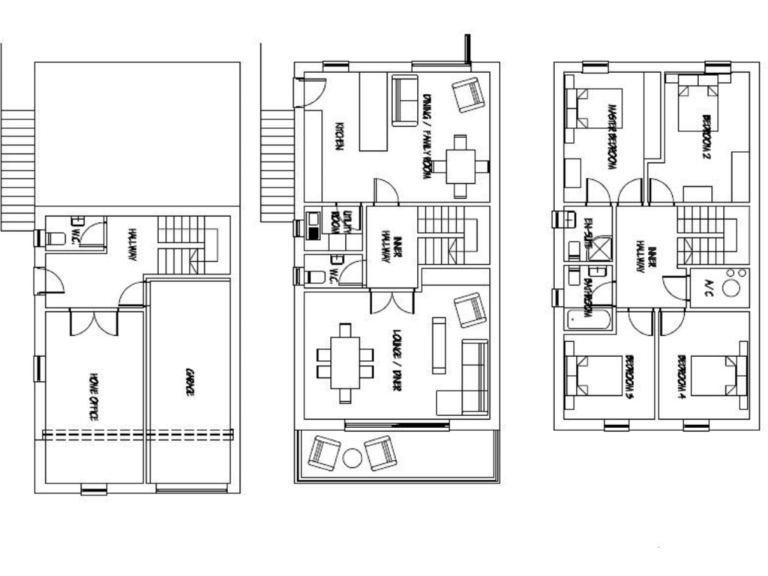
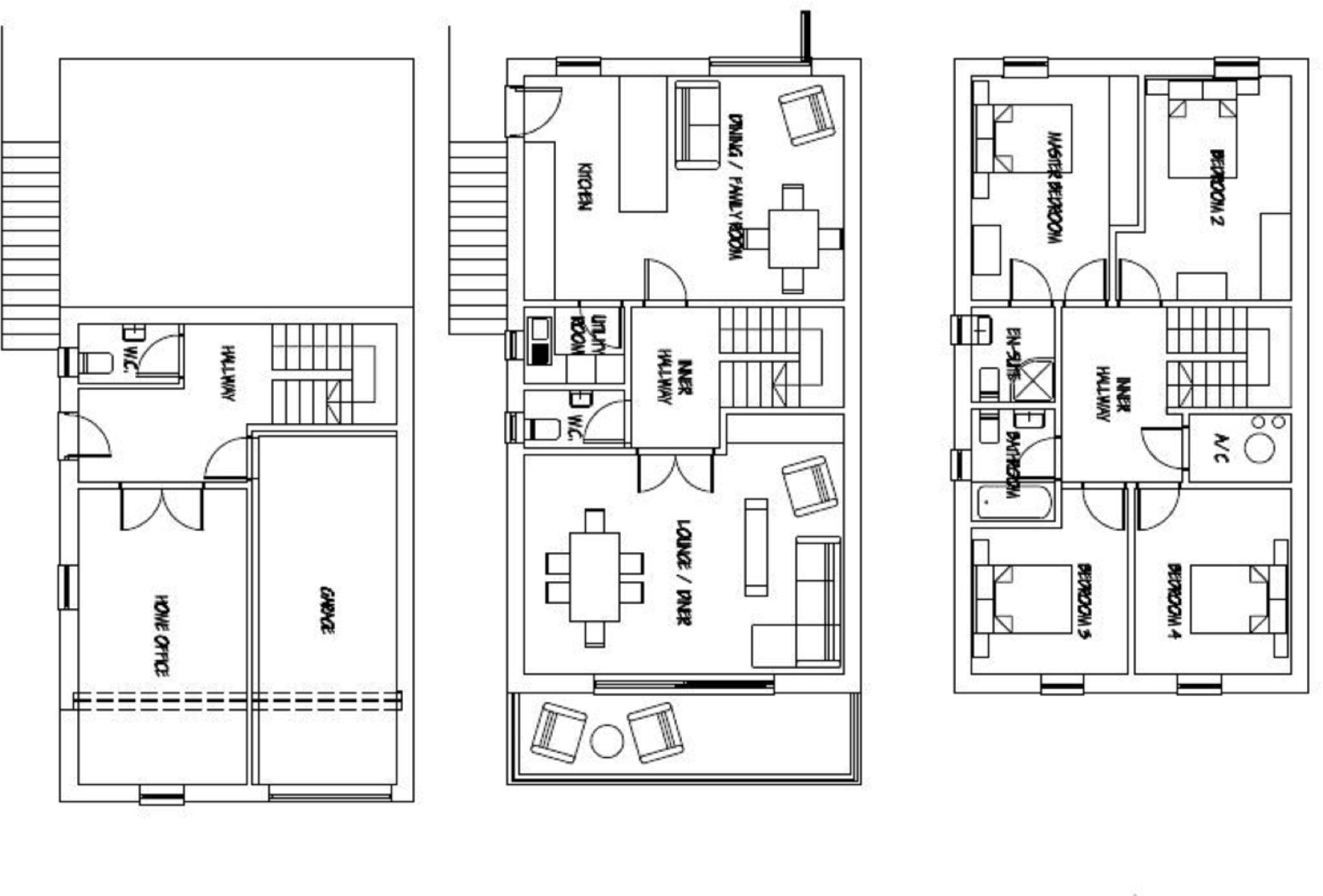
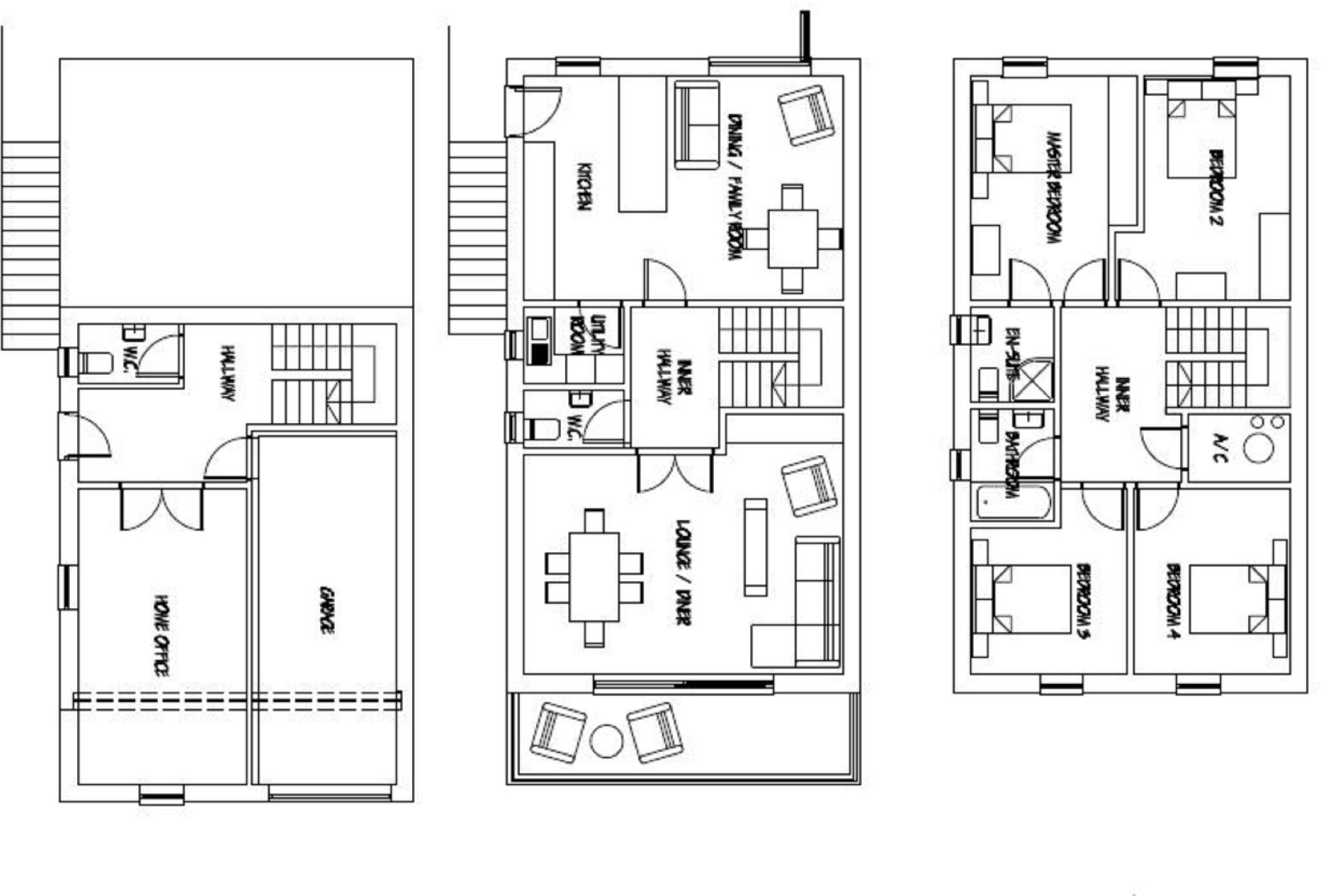
A brand-new, four-bedroom semi-detached house in the popular village of Llangynwyd, finished to a high standard and arranged across multiple levels for flexible family living. The open-plan kitchen/dining area and separate lounge with a balcony create bright, sociable spaces that overlook pleasant countryside. A single garage and large driveway provide secure parking and storage, while fast broadband and excellent mobile signal suit modern working-from-home needs.

The layout offers practical potential: the ground floor could be adapted into a self-contained flat for extended family or rental income, subject to planning. Built with cavity walls and gas central heating, the home is ready to occupy with contemporary finishes throughout. Local amenities, village pubs and two nearby schools are within walking distance, making daily routines straightforward for families.

Buyers should note a few material considerations: the development sits in an area recorded as very deprived with a high local crime rate, and tenure details are currently unspecified. Images are for illustration; purchasers should satisfy themselves on final specification and any planning requirements for conversion. Overall, this is a modern family home offering countryside access, flexible accommodation and strong connectivity in a sought-after village location.

Property Details

Brochure Descriptions

Image Descriptions

Floorplan Description

Rooms

Textual Property Features

Target Audience

AI Tags

Detected Visual Features

EPC Details

Nearest Bars And Restaurants

,,,,}

Nearest General Shops

,,}

Nearest Grocery shops

,,}

Nearest Supermarkets

,,}

Nearest Religious buildings

,,}

Nearest Medical buildings

,,,}

Nearest Airports

}

Nearest Leisure Facilities

,,,,}

Nearest Tourist attractions

,,}

Nearest Train stations

,,,,}

Nearest Bus stations and stops

,,,,}

Nearest Hotels

,,}

Tags

Local Market Stats

Similar Properties

Meta

High Res Images

Compatible Images

Low res Images

Thumbnails

Raw Images

High Res Floorplan Images

Compatible Floorplan Images

Low res Floorplan Images

FloorplanImages Thumbnail

Raw Floorplan Images