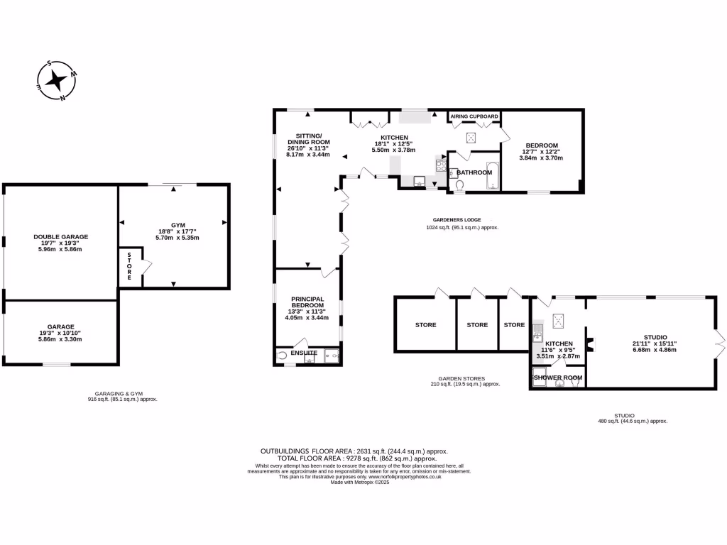
**Standout Features:**
- Expansive 6,647 sq. ft. period property with seven bedrooms, seven bathrooms
- Separate lodge and annexe offering multi-generational living or rental potential
- Grand kitchen/dining room with vaulted ceiling and bi-fold doors to garden
- Extensive landscaped gardens and grounds totaling 5.4 acres
- Triple garage with adjoining gym and sauna
**Property Summary:**
Welcome to a remarkable Victorian country estate in Saxlingham Nethergate, boasting historical charm and a wealth of space for family living and entertaining. This stunning residence features a large entrance hall, drawing room, lounge, and a garden room, complemented by a spacious kitchen/dining area adorned with a vaulted ceiling and bi-fold doors inviting you to the lush gardens outside. The principal bedroom stands out with its luxurious dressing room and en-suite, which includes a roll-top bath and walk-in shower.
Nestled within 5.4 acres of beautifully landscaped grounds, this property provides ample privacy amid verdant surroundings—ideal for serene country living. The separate lodge and annexe offer versatile options for income generation or guest accommodations. While the solid brick construction reflects its rich history, potential buyers should note the property's need for potential renovations and typical country maintenance. This affordable opportunity combines a peaceful village lifestyle with proximity to Norwich, ensuring you enjoy both comfort and convenience. Don't miss your chance to claim this exclusive rural retreat—properties of this caliber are rare and won’t last long!
7 bedroom detached house for sale in Brandiston, NR10 — £1,150,000 • 7 bed • 4 bath • 3439 ft²
3 bedroom detached house for sale in Flixton, Bungay, Suffolk, NR35 1NN, NR35 — £1,250,000 • 3 bed • 3 bath • 3119 ft²
4 bedroom detached house for sale in Cargate Lane, Saxlingham Nethergate, NR15 — £800,000 • 4 bed • 2 bath • 4783 ft²
7 bedroom detached house for sale in Norwich Road, Wroxham, Norfolk, NR12 — £950,000 • 7 bed • 4 bath • 4918 ft²
5 bedroom detached house for sale in Claxton Mill, Claxton, Norwich, NR14 — £700,000 • 5 bed • 3 bath • 2500 ft²
7 bedroom detached house for sale in Wacton Road, Forncett St. Peter, Norwich, Norfolk, NR16 — £1,250,000 • 7 bed • 3 bath • 6000 ft²














































































































































































































