Private garden and easy Streatham commute — ready to move in.
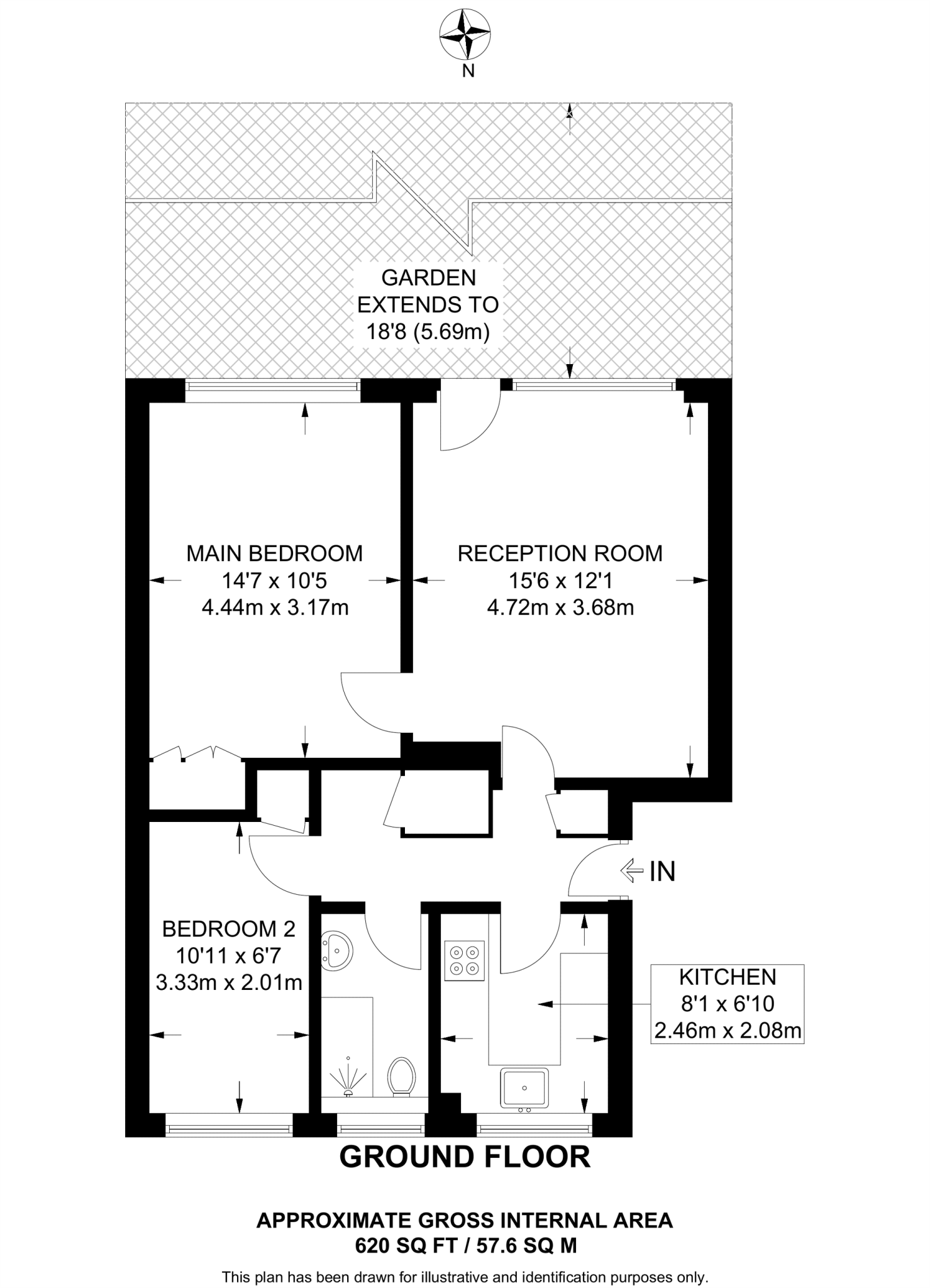
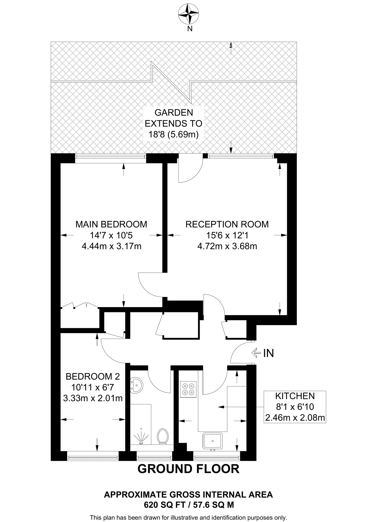
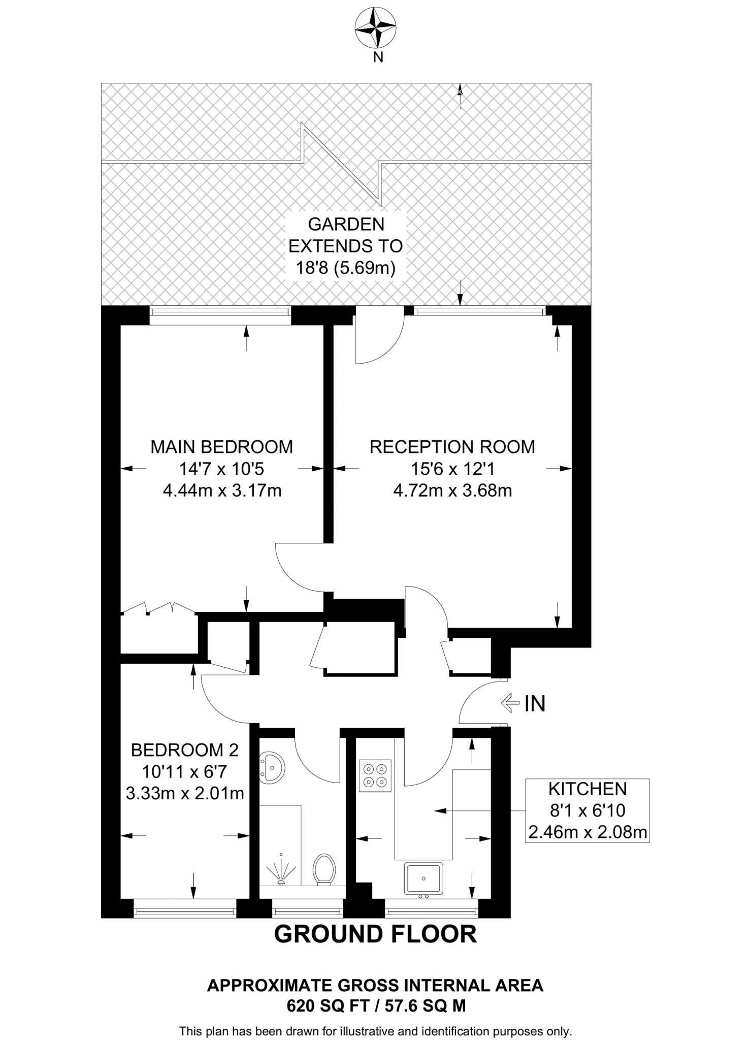
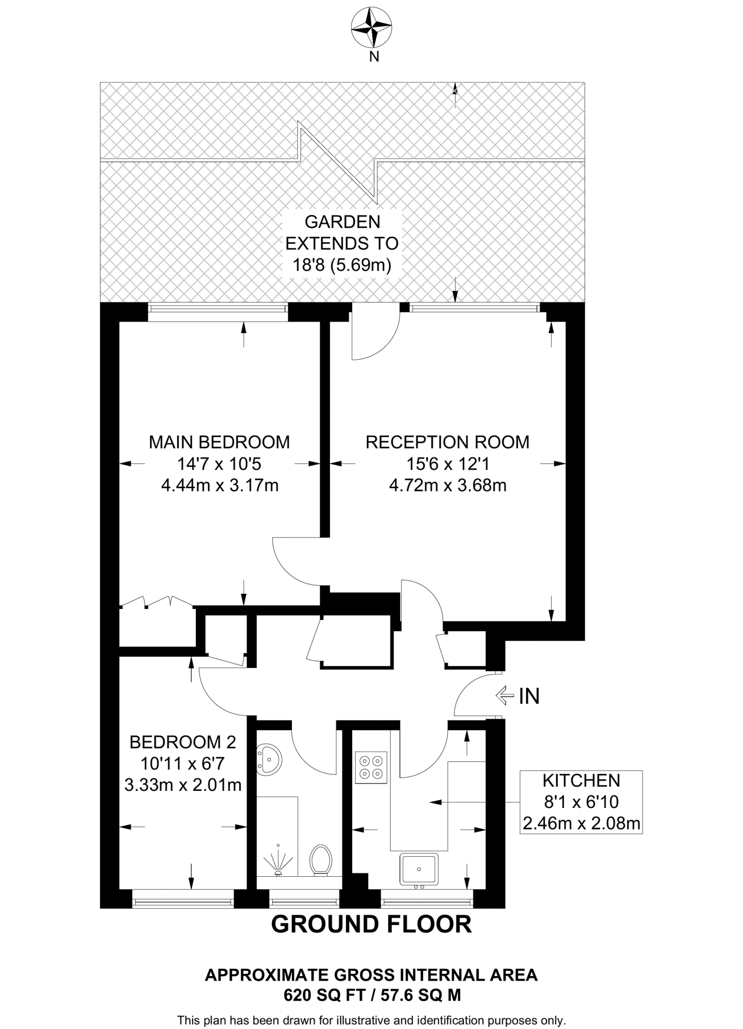
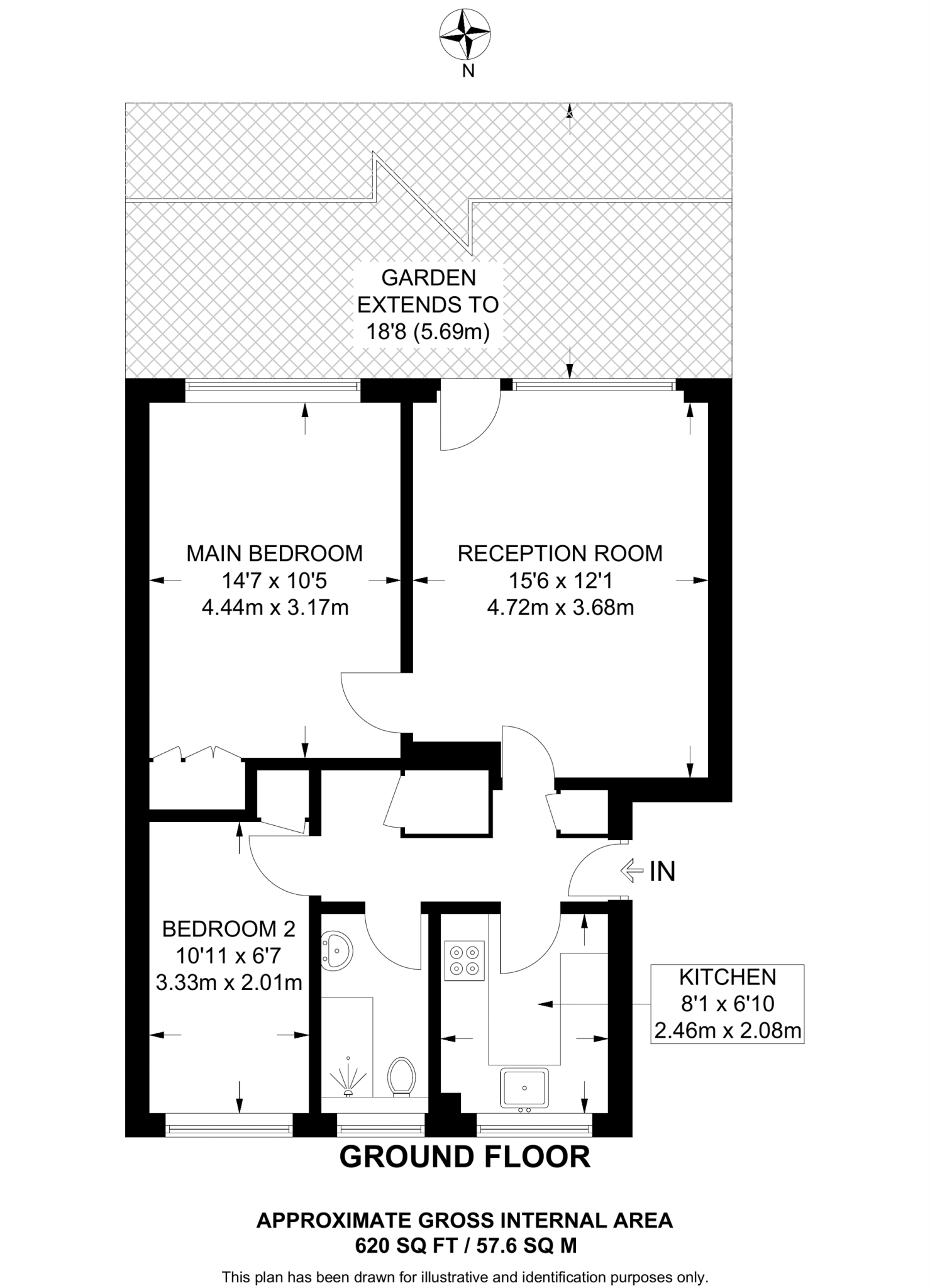
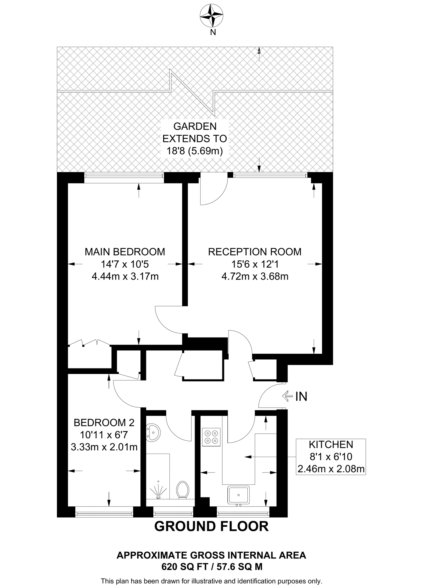
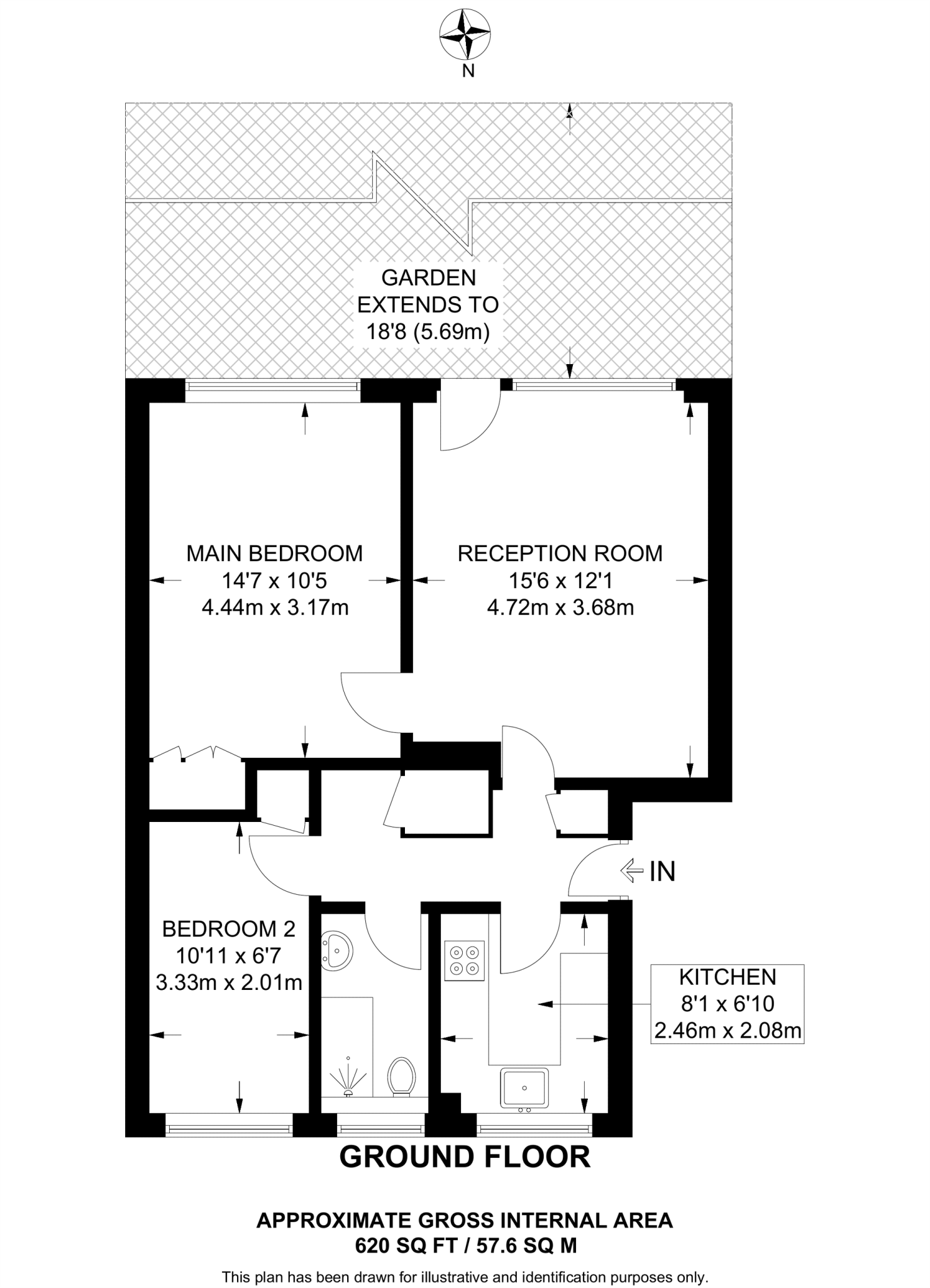
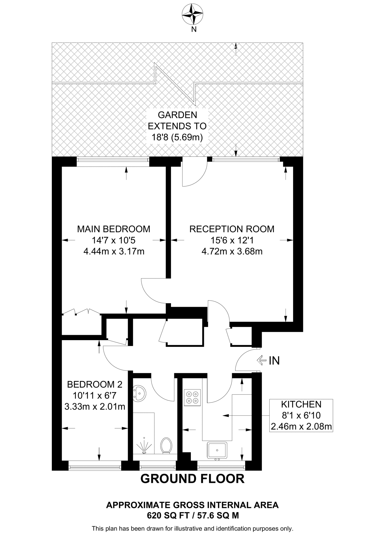
- Ground-floor 2-bedroom flat with private garden
- Bright reception room and separate modern kitchen
- Approximately 620 sq ft; comfortable room proportions
- Long lease (102 years) and low ground rent (£100/year)
- Built c.1967–75; cavity walls likely uninsulated
- Area shows above-average crime and higher deprivation
- Fast broadband and excellent mobile signal
- Short walk to Streatham Station and local amenities
Ground-floor comfort with a private garden makes this two-bedroom flat an accessible London entry point. The reception is bright and well-proportioned, and the separate kitchen and modern bathroom keep living and entertaining straightforward. At about 620 sq ft, rooms feel comfortable rather than cramped.
Location is a strong practical advantage: Streatham High Road’s shops, bars and restaurants are close by, Streatham Station is a short walk for rail links into central London, and several highly rated primary and secondary schools are within easy reach. Broadband is fast and mobile signal excellent — helpful for homeworking or streaming.
The property is leasehold with a long 102-year term remaining and a modest ground rent of £100 a year. The building dates from the late 1960s/early 1970s and has cavity walls that are assumed uninsulated, so further insulation or energy improvements may be worthwhile. The local area experiences above-average crime and has higher deprivation scores, which buyers should factor into their decision.
Overall this flat suits first-time buyers or buyers seeking a rental investment who want ready-to-live-in accommodation with private outdoor space and easy transport links. It offers good bones and modern fittings, but consider potential retrofit costs and local area dynamics before committing.
2 bedroom flat for sale in Ambleside Avenue, Streatham, London, SW16 — £625,000 • 2 bed • 1 bath • 831 ft²
2 bedroom apartment for sale in Beechcroft Close, Valley Road, London, SW16 — £325,000 • 2 bed • 1 bath • 577 ft²
2 bedroom apartment for sale in Leigham Court Road, London, SW16 — £475,000 • 2 bed • 1 bath • 754 ft²
2 bedroom apartment for sale in Sunnyhill Road, London, SW16 — £500,000 • 2 bed • 1 bath • 646 ft²
2 bedroom flat for sale in Lewin Road, Streatham, London, SW16 — £575,000 • 2 bed • 2 bath • 931 ft²
2 bedroom apartment for sale in Aldrington Road, Streatham, SW16 — £350,000 • 2 bed • 1 bath • 645 ft²


































































































































































































































