Family-friendly home with large garden and conversion potential.
Four bedrooms with flexible layout and Jack & Jill en-suite
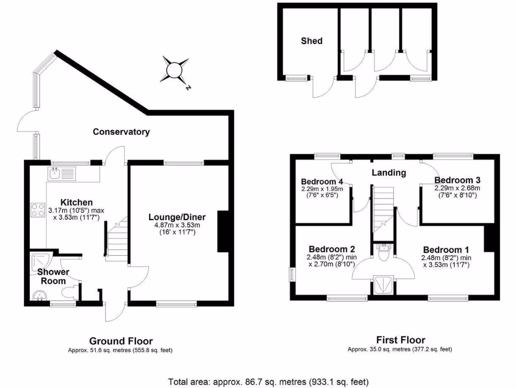
This four-bedroom semi-detached house in Letchworth Garden City offers practical family space and easy commuter access. The ground floor provides a bright dual-aspect lounge, a modern fitted kitchen and a practical shower room, while the conservatory opens directly onto a large, private rear garden. Upstairs, bedrooms one and two share a Jack & Jill en-suite, and two further rooms offer flexible use as bedrooms, nursery or home office.
A significant outbuilding at the rear—previously used as kennels—creates scope for conversion to a home office, gym or workshop, subject to planning and upgrade. The property benefits from gas central heating and double glazing, and sits close to schools, the train station and local amenities, making day-to-day life straightforward for families and commuters.
Buyers should note material facts: the home is leasehold with 98 years remaining, and the house dates from the interwar period with solid brick walls likely without cavity insulation. Double glazing is older (installed before 2002) and the driveway and some external areas will need updating. The local area records above-average crime and higher deprivation metrics, which may influence longer-term investment considerations.
Overall this is a practical, characterful family home with genuine scope to personalise and improve. It will suit buyers seeking value and space near transport links who are willing to carry out sensible updates and investigate conversion potential for the outbuilding.
3 bedroom semi-detached house for sale in Wilbury Close, Letchworth Garden City, Hertfordshire, SG6 — £400,000 • 3 bed • 1 bath • 1039 ft²
4 bedroom semi-detached house for sale in Baldock Road, Letchworth Garden City, SG6 — £650,000 • 4 bed • 3 bath • 1800 ft²
4 bedroom semi-detached house for sale in Icknield Way, Letchworth Garden City, SG6 — £630,000 • 4 bed • 2 bath • 1195 ft²
3 bedroom semi-detached house for sale in North Avenue, Letchworth Garden City, SG6 — £525,000 • 3 bed • 1 bath • 1022 ft²
3 bedroom semi-detached house for sale in Romany Close, Letchworth Garden City, SG6 — £400,000 • 3 bed • 1 bath • 868 ft²
5 bedroom semi-detached house for sale in Norton Way South, Letchworth Garden City, SG6 — £825,000 • 5 bed • 2 bath • 1464 ft²






















































