Large three-bed semi with conservatory in desirable Church Hill village location..
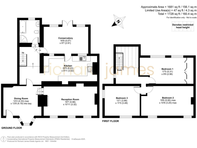
Spacious 1,728 sq ft family home with Victorian character
This spacious Victorian semi in Church Hill offers 1,728 sq ft of flexible family living across three double bedrooms. Period character, exposed beams and a large conservatory create bright, comfortable living spaces for family life.
Ground floor layout includes a dining area leading to the main reception, a well-appointed kitchen and a ground-floor bathroom. The large conservatory opens onto a private rear garden ideal for entertaining and children, though the plot is described as small.
Practical strengths include freehold tenure, fast broadband, no flood risk and excellent commuter links to the M4, A419, A4 and Swindon station with direct London services. Local village amenities — shops, cafes, five pubs and good-rated primary and secondary schools — suit family routines.
Notable considerations: there is only one bathroom in the house and the small garden/plot limits exterior expansion. As a Victorian property, character features may require ongoing maintenance; council tax details are not provided.
3 bedroom semi-detached house for sale in Church Hill, Wroughton, Swindon, SN4 — £221,000 • 3 bed • 1 bath • 1728 ft²
4 bedroom semi-detached house for sale in Markham Road, Wroughton, SN4 — £435,000 • 4 bed • 2 bath • 1202 ft²
3 bedroom semi-detached house for sale in Station Road, Purton, Purton, SN5 — £290,000 • 3 bed • 2 bath • 1173 ft²
2 bedroom semi-detached house for sale in Priors Hill, Wroughton, Swindon, SN4 — £259,500 • 2 bed • 2 bath • 1128 ft²
3 bedroom terraced house for sale in Pembroke Street, Old Town, Swindon, SN1 — £260,000 • 3 bed • 1 bath • 1033 ft²
4 bedroom terraced house for sale in High Street, Shrivenham, SN6 — £550,000 • 4 bed • 1 bath • 1472 ft²










































