Spacious period residence with extensive garden and leisure outbuildings.
Six bedrooms with five bathrooms including three en‑suites
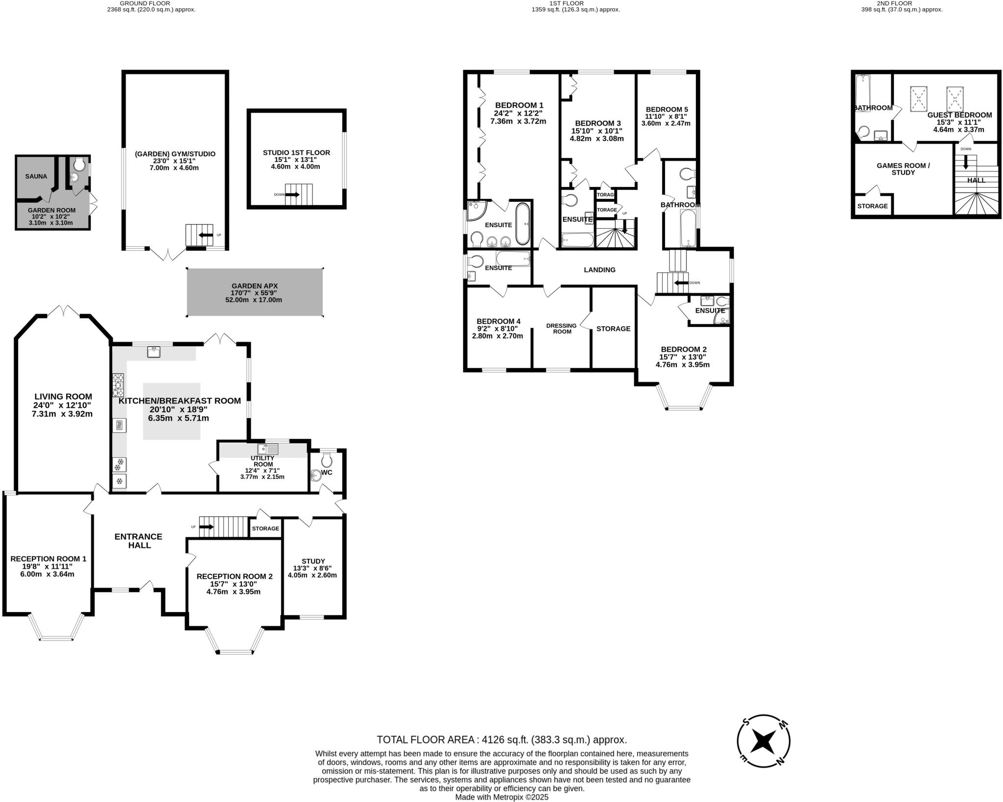
Approximately 4,100 sq ft over three floors; large reception rooms
Detached gym/studio and separate garden room with sauna
Large, landscaped rear garden with terrace for outdoor entertaining
Double glazing installed post‑2002; mains gas central heating
Solid brick walls (1930s–40s) — likely no cavity insulation
Located on Watford Road — potential traffic/noise; view in person
Council tax level described as quite expensive
This substantial Tudor‑revival detached house on Watford Road offers about 4,100 sq ft of flexible family living across three floors. The property combines generous reception rooms, a large open‑plan kitchen/breakfast room and six bedrooms — three with en‑suites — plus an additional second‑floor bedroom and games room, ideal for families and multi‑generational living.
Externally the plot is notable: a large, well‑landscaped garden with a terrace, detached gym/studio with upper‑level space and a separate garden room with sauna provide significant leisure and home‑working potential. Double glazing was installed post‑2002 and mains gas central heating serves the home; there is no flood risk and broadband and mobile signals are strong.
Buyers should note this is a period house (c.1930–1949) with solid brick walls and assumed lack of cavity insulation, so energy and insulation upgrades may be required to modernise efficiency. The property sits on a main thoroughfare so traffic and associated noise should be assessed in person. Council tax is described as quite expensive.
Positioned in affluent Radlett with excellent schools, strong commuter links to central London and a low‑crime environment, this house suits established families seeking space, period character and leisure outbuildings. A full inspection, EPC and floorplans are recommended to confirm condition, layout and specific improvement potential.
5 bedroom detached house for sale in Aldenham Avenue, Radlett, WD7 — £1,495,000 • 5 bed • 2 bath • 2705 ft²
4 bedroom detached house for sale in Mornington Road, Radlett, WD7 — £1,475,000 • 4 bed • 4 bath • 2484 ft²
6 bedroom detached house for sale in Newlands Avenue, Radlett, Hertfordshire, WD7 — £4,000,000 • 6 bed • 2 bath • 4000 ft²
5 bedroom detached house for sale in The Avenue, Radlett, WD7 — £2,500,000 • 5 bed • 3 bath • 3469 ft²
4 bedroom detached house for sale in Watling Knoll, Radlett, WD7 7HW, WD7 — £1,000,000 • 4 bed • 2 bath • 1475 ft²
3 bedroom link detached house for sale in Park Road, Radlett, Hertfordshire, WD7 — £1,000,000 • 3 bed • 1 bath • 1741 ft²






















































































































































