Newly built three-storey home with modern fixtures and private parking.
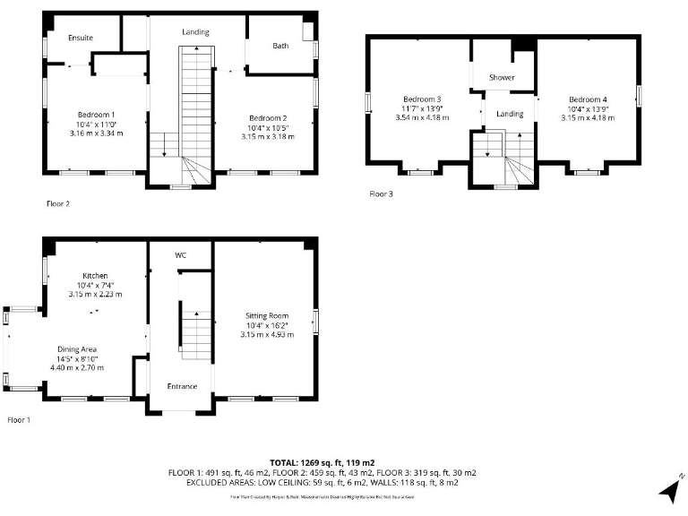
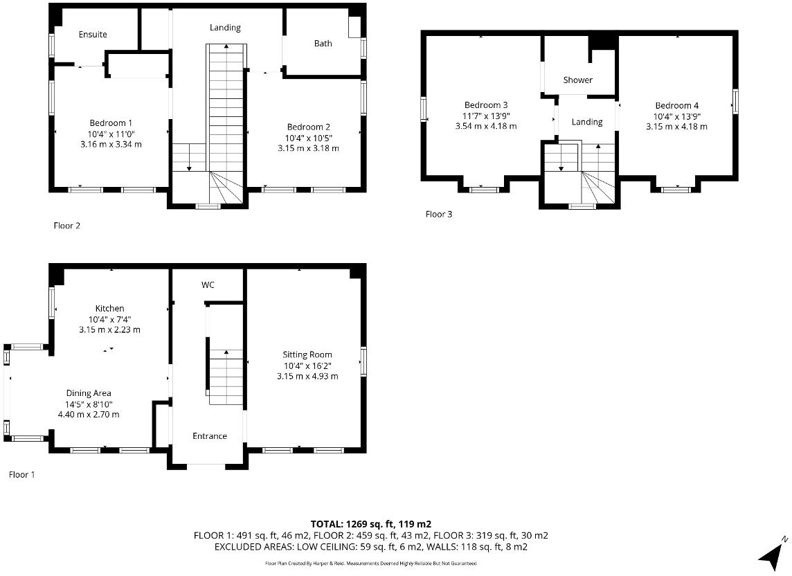
Four double bedrooms across three floors
This newly built four-bedroom semi-detached home is arranged over three floors and tailored to modern family life. The dual-aspect kitchen and dining room is bright and generous, with integrated appliances and room for family meals and homework. The living room provides a comfortable second reception space for relaxing or entertaining.
Bedrooms are all doubles, including a principal suite with fitted wardrobes and an en suite, plus a further en suite serving the second-floor bedrooms, making mornings easier for busy households. The rear garden is landscaped for low maintenance with artificial turf and a paved patio; a rear gate leads to off-street driveway parking.
Practical benefits include an EPC rating of B and freehold tenure. Note the plot is small and the property sits in a development with above-average council tax; buyers wanting larger outdoor space should be aware. Overall, this is a well-presented, contemporary home suited to growing families seeking modern fixtures, nearby schools, and good transport links.
4 bedroom end of terrace house for sale in Fen Street, Brooklands, Milton Keynes, MK10 — £405,000 • 4 bed • 2 bath • 1173 ft²
4 bedroom detached house for sale in Hermes Row, Brooklands, MK10 — £500,000 • 4 bed • 3 bath • 1389 ft²
4 bedroom end of terrace house for sale in Countess Way, Brooklands, Milton Keynes, Buckinghamshire, MK10 — £375,000 • 4 bed • 2 bath • 1107 ft²
4 bedroom detached house for sale in Hermes Row, Brooklands, Milton Keynes, MK10 — £500,000 • 4 bed • 2 bath
4 bedroom detached house for sale in Ripley Road, Broughton, MK10 — £500,000 • 4 bed • 2 bath • 1259 ft²
4 bedroom semi-detached house for sale in Picton Street, Kingsmead, MK4 — £410,000 • 4 bed • 2 bath • 1199 ft²


























































































































