Modern three-bedroom home with private garden and work-ready connectivity.
Three double bedrooms, two en suites
Open-plan kitchen/diner with island and integrated appliances
South-facing garden backing onto open fields, very private
Detached garage and large driveway for multiple cars
Solar panels installed for reduced energy use
Heating via bulk LPG boiler—potentially higher running costs
Rural hamlet location; limited shops and public transport
Fast BT broadband; suitable for home working
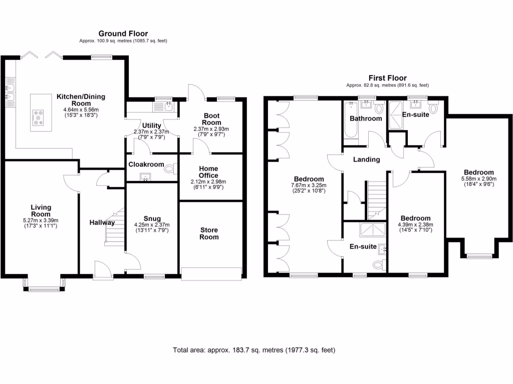
This attractive detached home, built in 2019, sits in peaceful Kirkwhelpington and offers spacious, well-planned accommodation across multiple floors. The open-plan kitchen/diner with island and integrated appliances forms the heart of the house, while a separate lounge, snug and dedicated office provide flexible living and a potential fourth bedroom. Three double bedrooms include two en‑suite bathrooms and a family bathroom, suited to family life or professionals needing home workspace.
Outside, the south-facing garden and patio back onto open fields, delivering excellent privacy and plenty of sunshine. A large driveway and detached garage provide secure parking and storage, and rooftop solar panels help reduce energy bills. Broadband is provided directly from BT with fast speeds, supporting home working and streaming.
Practical points to note: the property’s heating runs from a bulk LPG supply with a boiler and radiators, which can be more expensive than mains gas in some areas. The home is in a small rural hamlet with limited local shops and public transport, so a car is recommended for daily needs. Crime and area deprivation are average, and council tax information is not provided.
Overall, this is a modern, energy-conscious detached house offering roomy family living, strong privacy and rural character—well suited to families, professionals and buyers seeking a peaceful village base with good digital connectivity.
4 bedroom detached house for sale in Gilbert Grove, Kirkwhelpington, NE19 — £385,000 • 4 bed • 2 bath • 1473 ft²
4 bedroom detached house for sale in Kirkwhelpington, Northumberland, NE19 — £495,000 • 4 bed • 2 bath • 2200 ft²
4 bedroom detached house for sale in Burgham Park Gardens, Morpeth, NE65 — £699,950 • 4 bed • 3 bath • 2281 ft²
5 bedroom detached house for sale in The Wisteria, Sycamore Place, Barrasford, Hexham, NE48 — £569,950 • 5 bed • 3 bath • 2421 ft²
5 bedroom detached house for sale in The Rosewood, Sycamore Place, Barrasford, Hexham, NE48 — £724,950 • 5 bed • 3 bath • 2700 ft²
2 bedroom end of terrace house for sale in Whorlton Hall Farm Cottages, Whorlton, NE5 — £300,000 • 2 bed • 2 bath • 1163 ft²










































































































