ME9 9BY - 4 bedroom terraced house for sale in Frognal Farm Barns, Te…

View on Property Piper

4 bedroom terraced house for sale in Frognal Farm Barns, Teynham, ME9

Summary - FROGNAL FARM HOUSE, LOWER ROAD ME9 9BY

4 bed 3 bath Terraced

**Standout Features:**
- Magnificent Grade II Listed 16th Century Barn conversion
- 4 spacious double bedrooms and 3 modern bathrooms (2 en-suites)
- Expansive open-plan living space with a handmade kitchen
- Private garden with landscaped natural stone terraces
- Off-street parking with an EV charging point and a car barn
- Newly renovated with attention to preserving historic charm

**Summary Description:**
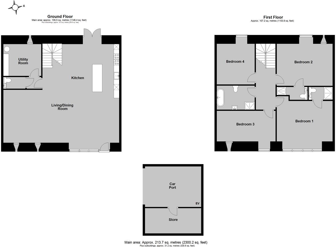
Discover the perfect blend of historic charm and modern luxury in this stunning Grade II listed barn conversion, nestled in the serene countryside of Teynham. Spanning 2,301 sq ft, this meticulously designed family home boasts four generous double bedrooms, including two en-suite bathrooms, a modern open-plan living area, and a bespoke handmade kitchen crafted to perfection. Large windows flood the spacious interiors with natural light, enhancing the sense of openness and tranquility.

Outside, enjoy your private garden, thoughtfully designed with natural stone terraces overlooking tranquil farmland, perfect for outdoor entertaining or peaceful retreats. The property also includes ample off-street parking and a dedicated EV charging point, making it not just a home, but a sustainable living choice.

With excellent transport links to major towns and access to quality schools nearby, this exclusive opportunity won't last long—envision life here in this peaceful rural setting, where history meets contemporary comfort.

Property Details

Brochure Descriptions

Image Descriptions

Floorplan Description

Rooms

Textual Property Features

Detected Visual Features

EPC Details

Nearby Schools

Nearest Bars And Restaurants

,,,,}

Nearest General Shops

,,}

Nearest Grocery shops

,,}

Nearest Supermarkets

,,}

Nearest Religious buildings

,,}

Nearest Medical buildings

,,,}

Nearest Airports

}

Nearest Leisure Facilities

,,,,}

Nearest Tourist attractions

,,}

Nearest Train stations

,,,,}

Nearest Bus stations and stops

,,,,}

Nearest Hotels

,,}

Tags

Local Market Stats

Similar Properties

Meta

High Res Images

Compatible Images

Low res Images

Thumbnails

Raw Images

High Res Floorplan Images

Compatible Floorplan Images

Low res Floorplan Images

FloorplanImages Thumbnail

Raw Floorplan Images