Affordable auction opportunity for a single-house development near transport and amenities.
Freehold plot approximately 310 sq m (3,337 sq ft)
A compact freehold development plot of approximately 310 sq m (3,337 sq ft) offered for sale at auction with a guide price of £10,000. The site sits in a suburban, low-crime area of Swindon close to local shops, schools and transport links, with fast broadband and excellent mobile signal — practical advantages for a new-build home or small investment project.
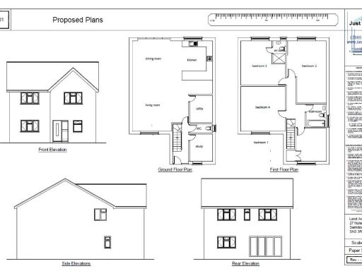
Concept drawings have been prepared for a four-bedroom house but no planning application has been submitted. The plans indicate clear development potential; however buyers must carry out their own due diligence on planning, access, precise boundaries and any Tree Preservation Orders or adopted highway affecting the site. The auction sale is freehold and will be subject to the legal pack and auction conditions.
This lot will appeal to developers, builders or investors seeking a low-entry opportunity in an affluent suburb. The very small plot size limits scope to a single dwelling and may require detailed design work to meet local planning requirements. Absence of planning permission and the auction timetable mean purchasers should be prepared for a fast, enquiry-driven purchase process.
Land for sale in Marlborough Road, Old Town, Swindon, Wiltshire, SN3 — £500,000 • 1 bed • 1 bath
Plot for sale in Marlborough Road, Old Town, Swindon, Wiltshire, SN3 — £500,000 • 1 bed • 1 bath
Heavy industrial facility for sale in Witham Way, Swindon, Wiltshire, SN2 7NN, SN2 — £9,000 • 1 bed • 1 bath
Land for sale in Cricklade Road, Swindon, Wiltshire, SN2 — £750,000 • 1 bed • 1 bath
Commercial development for sale in Land fronting A346, Chiseldon, Swindon, SN4 0LU, SN4 — £450,000 • 1 bed • 1 bath
Land for sale in A420, Great Coxwell, Faringdon, SN7 — £300,000 • 1 bed • 1 bath


















