Three-bedroom terraced home with large garden — full refurbishment project for families.
Freehold three-bedroom mid-terrace with period bay windows
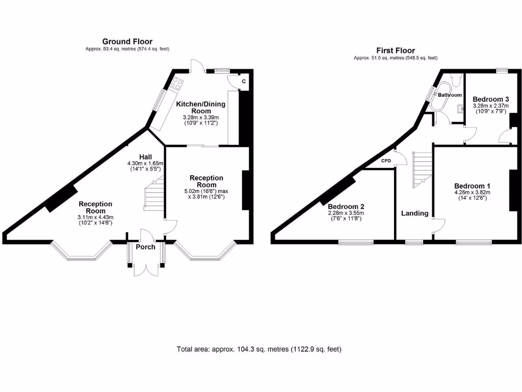
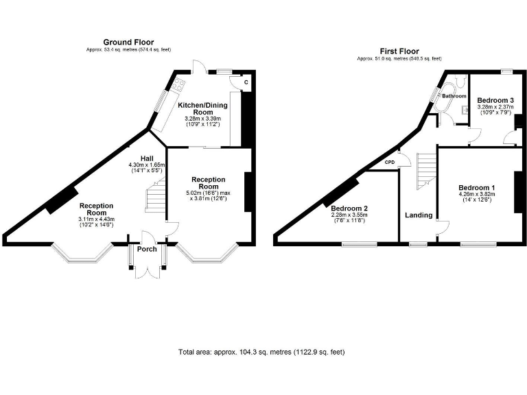
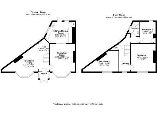
A three-bedroom mid-terrace on Grosvenor Place that will suit a family or buyer seeking renovation potential. The house offers classic bay-windowed street appeal, high ceilings and well-proportioned rooms across two floors, plus a large plot with a town garden and rear yard. Services are typical for the area: mains gas central heating to radiators, double glazing (install date unknown) and fast broadband; the location benefits from low crime, good mobile signal and accessible local amenities and schools.
The property requires a full refurbishment throughout — cosmetic and likely system upgrades are needed — so it is offered for buyers prepared to invest in a project. There is a single family bathroom and three bedrooms, making it practical for family living after renovation. Tenure is freehold and there is no flood risk, which reduces immediate external constraints.
Practical positives include a sizable plot, a traditional façade with period character, and proximity to schools, transport and community facilities. Notable negatives are the renovation requirement, dated internal fittings, and uncertainty over some construction details: the home presents project costs and timing to factor into purchase plans. This is a clear opportunity for a buyer looking to create a comfortable, character family home in North Shields.
3 bedroom terraced house for sale in Wallsend Road, North Shields, NE29 — £164,950 • 3 bed • 1 bath • 937 ft²
5 bedroom house for sale in Grosvenor Place, North Shields, NE29 — £425,000 • 5 bed • 1 bath • 3378 ft²
3 bedroom terraced house for sale in Redesdale Grove, North Shields, NE29 — £164,950 • 3 bed • 1 bath • 928 ft²
4 bedroom house for sale in Walton Avenue, North Shields, North Tyneside, NE29 — £265,000 • 4 bed • 1 bath • 1522 ft²
3 bedroom semi-detached house for sale in Lansdowne Terrace West, North Shields, North Shields, NE29 — £395,000 • 3 bed • 2 bath • 2815 ft²
3 bedroom terraced house for sale in Grey Street, North Shields, NE30 — £250,000 • 3 bed • 1 bath • 980 ft²










































































