Large contemporary house with parking, garden and ready-to-move-in condition.
Fully renovated throughout; move-in ready with high-quality finishes
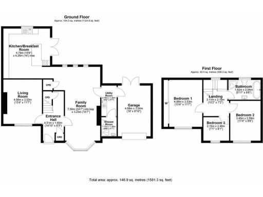
Extended breakfast kitchen with breakfast bar and modern appliances
Two generous reception rooms for family living and entertaining
Three well-proportioned bedrooms with good natural light
Landscaped rear garden with decking; decent plot size
Off-street parking plus garage included
EPC rating C; Council Tax Band C (affordable)
Wider area shows transitionary challenges; some nearby schools require improvement
This fully renovated three-bedroom semi delivers contemporary family living in a popular North Shields street. The extended breakfast kitchen with modern appliances and a breakfast bar forms the home’s social hub, while two generous reception rooms give flexible space for day-to-day family life and entertaining. High-quality finishes and clean contemporary styling are consistent throughout, so the property is genuinely ready to move into with no immediate work required.
Practical extras include a separate utility, a ground-floor shower room, off-street parking, and a garage. The landscaped rear garden with decking provides a private outdoor retreat and suits relaxed family use. At about 1,581 sq ft the house is large for its type and benefits from good natural light and double glazing.
Buyers should note the wider area classification records some transitionary challenges and a small number of local schools are rated as requiring improvement; however, several nearby primary and secondary schools have Good Ofsted ratings. The home has an EPC rating of C and sits in Council Tax Band C, with freehold tenure and no onward chain.
Overall, this property suits families seeking a spacious, contemporary house in move-in condition, with parking and garden space in a well-connected North Shields neighbourhood.
3 bedroom semi-detached house for sale in Trevor Terrace, North Shields, NE30 — £325,000 • 3 bed • 1 bath • 761 ft²
3 bedroom semi-detached house for sale in Mast Lane, North Shields, Tyne and Wear, NE30 — £550,000 • 3 bed • 1 bath • 1291 ft²
3 bedroom semi-detached house for sale in Campville, North Shields, NE29 — £325,000 • 3 bed • 1 bath • 992 ft²
3 bedroom semi-detached house for sale in Barnstaple Road, North Shields, Tyne and Wear, NE29 8QD, NE29 — £210,000 • 3 bed • 1 bath
3 bedroom semi-detached house for sale in Beach Croft Avenue, North Shields, NE30 — £389,950 • 3 bed • 1 bath • 1100 ft²
3 bedroom semi-detached house for sale in Billy Mill Lane, North Shields, NE29 — £269,950 • 3 bed • 1 bath • 991 ft²














































































































