**Standout Features:**
- Authentic warehouse conversion with exposed brickwork
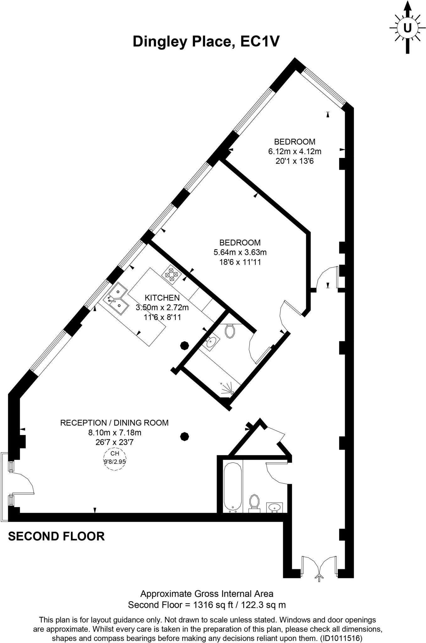
- Spacious dual-aspect layout spanning over 1,270 sq ft
- Two large double bedrooms with ample storage
- Secure underground parking included
- Chain-free sale
- Prime location near Old Street, Islington, and Shoreditch
This stunning two-bedroom loft apartment is a unique gem situated in an iconic warehouse conversion, blending historical charm with contemporary living. Offering an expansive open-plan reception room measuring 37 feet, complete with high ceilings and large crittal-style windows, the space invites ample natural light. The modern kitchen features polished concrete work surfaces and an industrial aesthetic that perfectly complements the characterful exposed brick walls.
The property includes two generously proportioned bedrooms, each equipped with built-in storage, with the principal suite featuring an en-suite shower room. A separate guest shower room adds convenience for family or visitors.
Located in the cosmopolitan area of EC1V, this home benefits from outstanding transport links, with the nearest Underground station just a 0.4-mile walk away. While the service charge and council tax are considered on the higher side, the property is chain-free and ready for immediate occupancy. Perfectly suited for professionals or families looking for space in an urban environment, this exceptional apartment is not one to miss—act quickly to secure your slice of stylish, city living!
2 bedroom apartment for sale in Dingley Place, EC1V — £1,175,000 • 2 bed • 1 bath • 1264 ft²
2 bedroom penthouse for sale in Dingley Place, EC1V — £1,000,000 • 2 bed • 2 bath • 1107 ft²
2 bedroom apartment for sale in Dingley Place, London, EC1V — £995,000 • 2 bed • 2 bath • 1060 ft²
2 bedroom apartment for sale in Ironmonger Row, London, EC1V — £1,495,000 • 2 bed • 2 bath • 1403 ft²
2 bedroom flat for sale in Old Street,
Clerkenwell, EC1V — £800,000 • 2 bed • 2 bath • 1058 ft²
2 bedroom duplex for sale in City Lofts, Shoreditch, EC2A — £1,700,000 • 2 bed • 2 bath • 1528 ft²


















































































