**Standout Features:**
- Freehold mixed-use investment opportunity
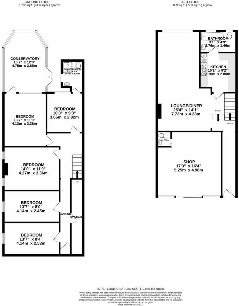
- 5-bedroom accommodation over ground and lower ground
- Projected rental income of £30,000 per annum
- Tenanted retail unit on a lease until 2029 at £8,004 per annum
- Total footprint of approximately 1,860 square feet
- Close proximity to good-rated local schools
- Excellent mobile signal and fast broadband speeds
**Concise Property Summary:**
Seize the chance to invest in this mixed-use freehold property at 239 & 239a Wickham Lane, London, SE2. The expansive layout, which encompasses both a tenanted retail unit and well-appointed residential accommodation, boasts significant rental potential of £30,000 per year. The retail space guarantees a steady income through its lease until 2029, while the generous five-bedroom home offers flexibility for personalization or potential for further rental opportunities.
The property exists within a vibrant urban locale, providing convenient access to local amenities and several reputable schools, making it suitable for families and commuters alike. While the neighborhood has a higher-than-average crime rate and certain areas may require cosmetic updates, the overall size and strategic location promise substantial value. Viewing is highly recommended—properties like this, with solid income potential and room for customization, don't stay on the market for long!
Commercial property for sale in Deptford High Street, SE8 — £700,000 • 3 bed • 1 bath • 2423 ft²
High street retail property for sale in High Street, Walthamstow, E17 — £2,400,000 • 1 bed • 1 bath • 5220 ft²
Shop for sale in 5 Wastdale Road, Forest Hill, Lewisham, London, SE23 — £695,000 • 1 bed • 1 bath • 2593 ft²
Studio flat for sale in Bromley Road, London, SE6 — £600,000 • 1 bed • 1 bath • 1042 ft²
Commercial property for sale in Bromley, Kent, BR2 — £625,000 • 1 bed • 1 bath • 473 ft²
Mixed use property for sale in 128 High Road, Leyton, London, E15 2BX, E15 — £600,000 • 1 bed • 1 bath • 1499 ft²


































