Stylish one-bedroom town-centre flat with warranty and private entrance.
Newly refurbished throughout with quality fixtures and fittings
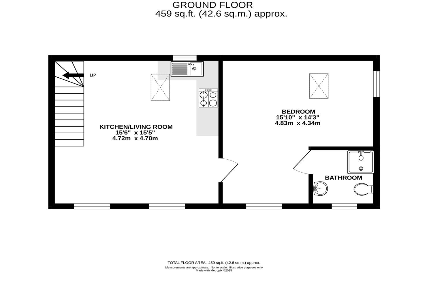
This newly refurbished first-floor flat on Eccles Road offers a compact, well-presented one-bedroom home ideal for downsizers seeking a low-maintenance central base. The flat combines period character — exposed beams and sash-style windows — with contemporary fittings, an open-plan kitchen/living area and an ensuite shower room. Bright skylights add light despite the modest footprint.
Practical benefits include mains gas central heating, double glazing, a private entrance and a ten-year build warranty included with the refurbishment. The flat sits on a long lease (124 years remaining) in Chapel-en-le-Frith’s town centre, within easy walking distance of shops, restaurants and local amenities.
Be clear that the accommodation is compact: total floor area is about 459 sq ft and some rooms have low ceilings. Broadband speeds in the area are reported slow, which may affect heavy home-working. The property is leasehold, so buyers should verify service charges or ground rent with solicitors. Overall this is a straightforward, move-in ready choice for someone wanting a stylish, central one-bed with character and warranty-backed works.
1 bedroom terraced house for sale in Eccles Road, Chapel En Le Frith, SK23 — £140,000 • 1 bed • 1 bath • 474 ft²
1 bedroom flat for sale in Thornbrook Road, Chapel-En-Le-Frith, SK23 — £110,000 • 1 bed • 1 bath • 495 ft²
1 bedroom apartment for sale in Miry Meadow, Chapel-En-Le-Frith, High Peak, SK23 — £112,500 • 1 bed • 1 bath • 475 ft²
1 bedroom apartment for sale in Miry Meadow, Station Road, Chapel-En-Le-Frith, SK23 — £112,500 • 1 bed • 1 bath • 475 ft²
3 bedroom terraced house for sale in Market Street, Chapel-En-Le-Frith, High Peak, SK23 — £219,999 • 3 bed • 1 bath • 776 ft²
3 bedroom terraced house for sale in Terrace Road, Chapel-En-Le-Frith, High Peak, SK23 — £199,950 • 3 bed • 1 bath • 895 ft²










































