Contemporary three-bedroom house on a large waterside plot, ideal for growing families.
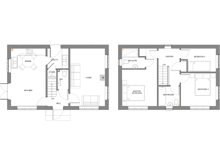
Brand new three-bedroom semi-detached home with en suite to principal bedroom|High energy insulation and gas central heating for efficiency|Open-plan living/dining/kitchen plus separate lounge and utility|Large plot with enclosed rear garden and off-street parking|Canal-side location with pleasant water and countryside views|Show-home images — actual finishes and colours may differ|Council tax band not yet set for this new build|Average internal footprint for a modern family home
A bright, newly built three-bedroom semi-detached home set on a large plot alongside the Shropshire Union canal. The property offers contemporary open-plan living with a utility room, principal bedroom with en suite, and gas central heating plus high energy insulation for lower running costs. Off-street parking and an enclosed rear garden complete the practical family layout.
This double-fronted house suits young families or first-time buyers seeking modern, low-maintenance accommodation in a peaceful rural setting with water and countryside views. The layout includes a through living/dining/kitchen with French doors to the garden and a separate lounge for flexible living space.
Buyers should note the home is a new build and some fittings and finishes may differ from the show home images; specification choices depend on build stage. Council tax banding has not yet been set for the property. Overall the house offers sensible family space, energy-efficient construction and early reservation is advised to secure preferred choices.
3 bedroom detached house for sale in Plot 30, The Stowe, Stones Wharf, Weston Rhyn, Oswestry, SY10 — £345,000 • 3 bed • 2 bath • 925 ft²
3 bedroom terraced house for sale in Plot 26, Stones Wharf, Weston Rhyn, Oswestry, SY10 — £239,950 • 3 bed • 1 bath • 760 ft²
3 bedroom detached house for sale in Plot 31, The Wellbeck, Stones Wharf, Weston Rhyn, Oswestry, SY10 — £365,000 • 3 bed • 2 bath • 979 ft²
3 bedroom detached house for sale in 7 Stones Wharf, Weston Rhyn, Oswestry, SY10 — £269,995 • 3 bed • 1 bath • 760 ft²
3 bedroom detached house for sale in Plot 41, The Wellbeck, Stones Wharf, Weston Rhyn, Oswestry, SY10 — £385,000 • 3 bed • 2 bath • 979 ft²
4 bedroom detached house for sale in 58, Stones Wharf, Weston Rhyn, Oswestry, SY10 — £425,000 • 4 bed • 2 bath


























































