Single‑level living on a large plot near Cheam Village, ideal for downsizers.
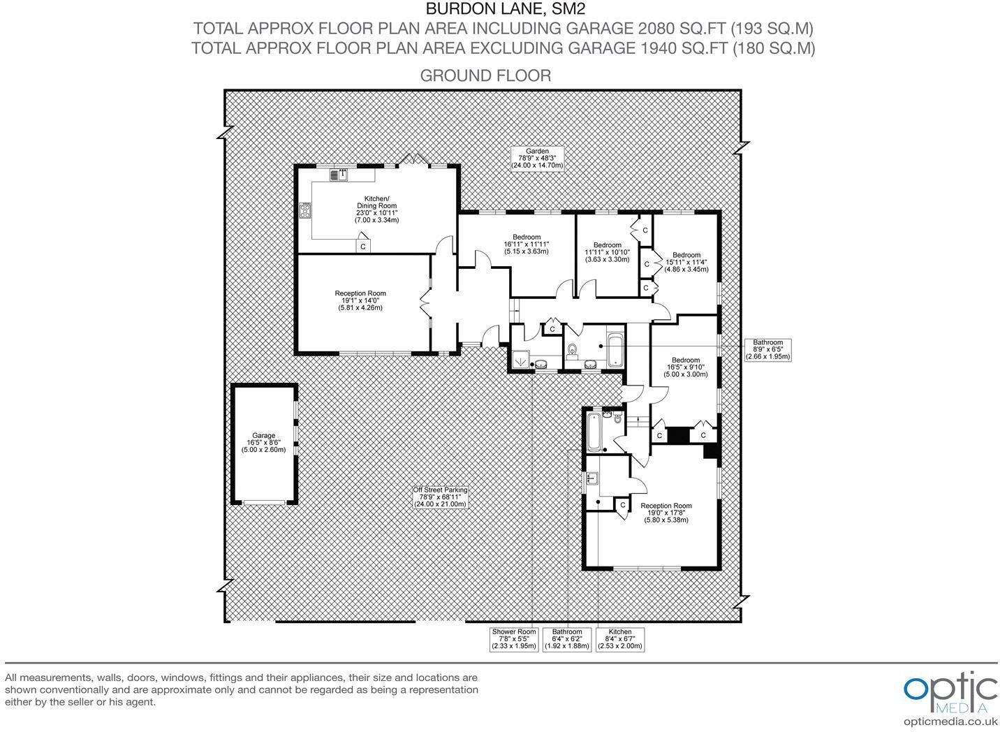
Detached single‑storey home with four bedrooms and three bathrooms
Generous kitchen‑diner and two reception rooms for flexible living
Very large rear garden and wide frontage; strong extension potential
Attached garage and long paved driveway providing ample parking
EPC D; likely no wall insulation — energy improvements advised
Built 1930–1949, solid brick construction; refurbishment may uncover works
Council Tax Band G — higher ongoing running costs to consider
Quiet, affluent area with excellent broadband and very low crime
Set on a wide, rectangular plot moments from Cheam Village, this detached four-bedroom bungalow offers spacious single-level living and genuine scope to personalise. Two reception rooms and a generous kitchen-diner provide comfortable day-to-day living, while three bathrooms add flexibility for families or guests. Large windows and French doors bring abundant light and garden views. The attached garage and long paved driveway deliver useful off-street parking.
The plot is a major selling point: a substantial rear garden and generous frontage create clear potential for extension or reconfiguration (subject to planning). The property’s mid‑20th century construction and solid brick walls provide a robust starting point; there is scope to improve energy efficiency and modernise finishes to add significant value.
Important practical points: the EPC is rated D and the property likely lacks cavity wall insulation, so energy upgrades will be needed to reduce bills. Council Tax sits in Band G, reflecting higher running costs. Decorative condition varies: some areas are well presented, while others show traditional fittings and would benefit from updating.
This bungalow will suit downsizers wanting generous single‑storey accommodation close to village amenities, or families and buyers seeking a project with extension and modernisation potential. Its quiet, affluent neighbourhood, excellent broadband and very low crime rate support comfortable living, while proximity to highly rated schools and shops keeps everyday life convenient.
4 bedroom detached bungalow for sale in Cheyham Gardens, Cheam, SM2 — £950,000 • 4 bed • 2 bath • 1314 ft²
3 bedroom detached bungalow for sale in Cuddington Way, South Cheam, SM2 — £750,000 • 3 bed • 1 bath • 1209 ft²
3 bedroom detached bungalow for sale in Northey Avenue, South Cheam, SM2 — £1,000,000 • 3 bed • 2 bath • 1288 ft²
3 bedroom bungalow for sale in Netley Close, Sutton, SM3 — £795,000 • 3 bed • 1 bath • 833 ft²
4 bedroom detached bungalow for sale in Cheviot Close, South Sutton, SM2 — £1,200,000 • 4 bed • 3 bath • 1542 ft²
4 bedroom detached house for sale in Hays Walk, South Cheam, SM2 — £1,150,000 • 4 bed • 4 bath • 1622 ft²


























































































