Large plot, detached garage and loft bedroom — perfect for a refurbishment project.
Large frontage and long driveway, off-street parking for several vehicles
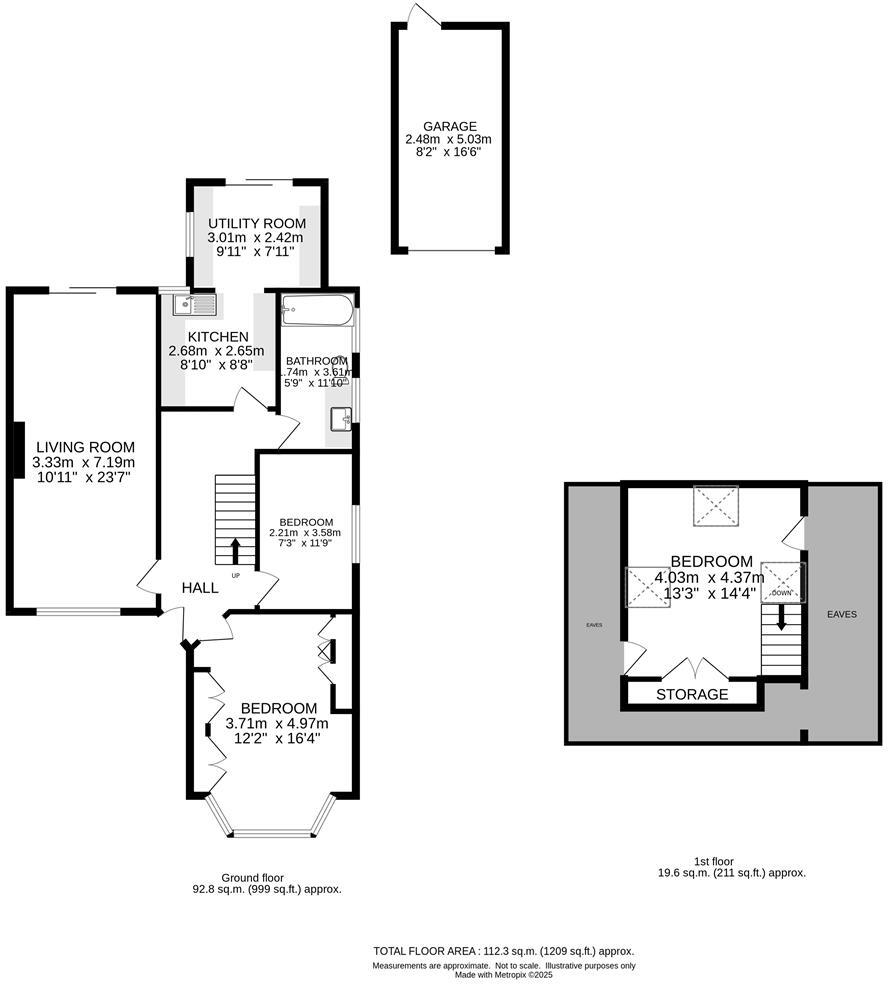
Detached garage with up-and-over door provides storage/workshop space
Approx. 200ft westerly rear garden — significant landscaping potential
Three bedrooms including loft-converted third with Velux windows
23ft lounge/diner, original features include fireplace and wood-block floors
Requires full modernisation throughout; dated fittings and decor
Single bathroom only for three bedrooms; may need additional facilities
Solid brick walls (likely no cavity insulation); secondary glazing fitted
Set well back from the road on a large mature plot, this three-bedroom detached bungalow offers substantial outdoor space and flexible accommodation — including a loft-converted third bedroom. The long driveway, detached garage and generous 200ft (approx.) westerly rear garden create a rare blank canvas for family outdoor living, landscaping or extension (subject to consent).
Internally the home retains mid-20th century character: a 23ft lounge/diner with fireplace, bay-windowed principal bedroom and parquet-style/wood-block floors. The layout works well for families or downsizers who value ground-floor living with the bonus of an upstairs room. Local schools rated Good and excellent independent options are nearby; transport links to the A217 and M25 are straightforward.
The house requires updating and modernisation throughout — windows include secondary glazing, walls are likely solid brick without insulation, and some fittings are dated. There is one bathroom for three bedrooms and the property will suit buyers prepared to refurbish to their own taste. Council tax is described as expensive; broadband is fast and the area is very affluent with very low crime.
Offered with no onward chain, the bungalow is freehold and presents strong potential for refurbishment, extension or reconfiguration (subject to planning). It’s best suited to buyers seeking substantial outside space and the opportunity to add value rather than a move-in-ready home.
3 bedroom bungalow for sale in London Road, Cheam, Sutton, SM3 — £725,000 • 3 bed • 1 bath • 1260 ft²
3 bedroom detached bungalow for sale in Tandridge Gardens, South Croydon, CR2 — £615,000 • 3 bed • 2 bath • 1436 ft²
4 bedroom detached bungalow for sale in Woodmansterne Street, Banstead, SM7 — £650,000 • 4 bed • 2 bath • 1109 ft²
3 bedroom detached bungalow for sale in Dovercourt Lane, Sutton, SM1 — £600,000 • 3 bed • 1 bath • 777 ft²
2 bedroom bungalow for sale in Riverview Road, Epsom, Surrey, KT19 — £540,000 • 2 bed • 2 bath • 1123 ft²
2 bedroom bungalow for sale in Guy Road, Wallington, SM6 — £500,000 • 2 bed • 1 bath • 1024 ft²


















































































