Chain-free family home with garden and parking, ready to modernise.
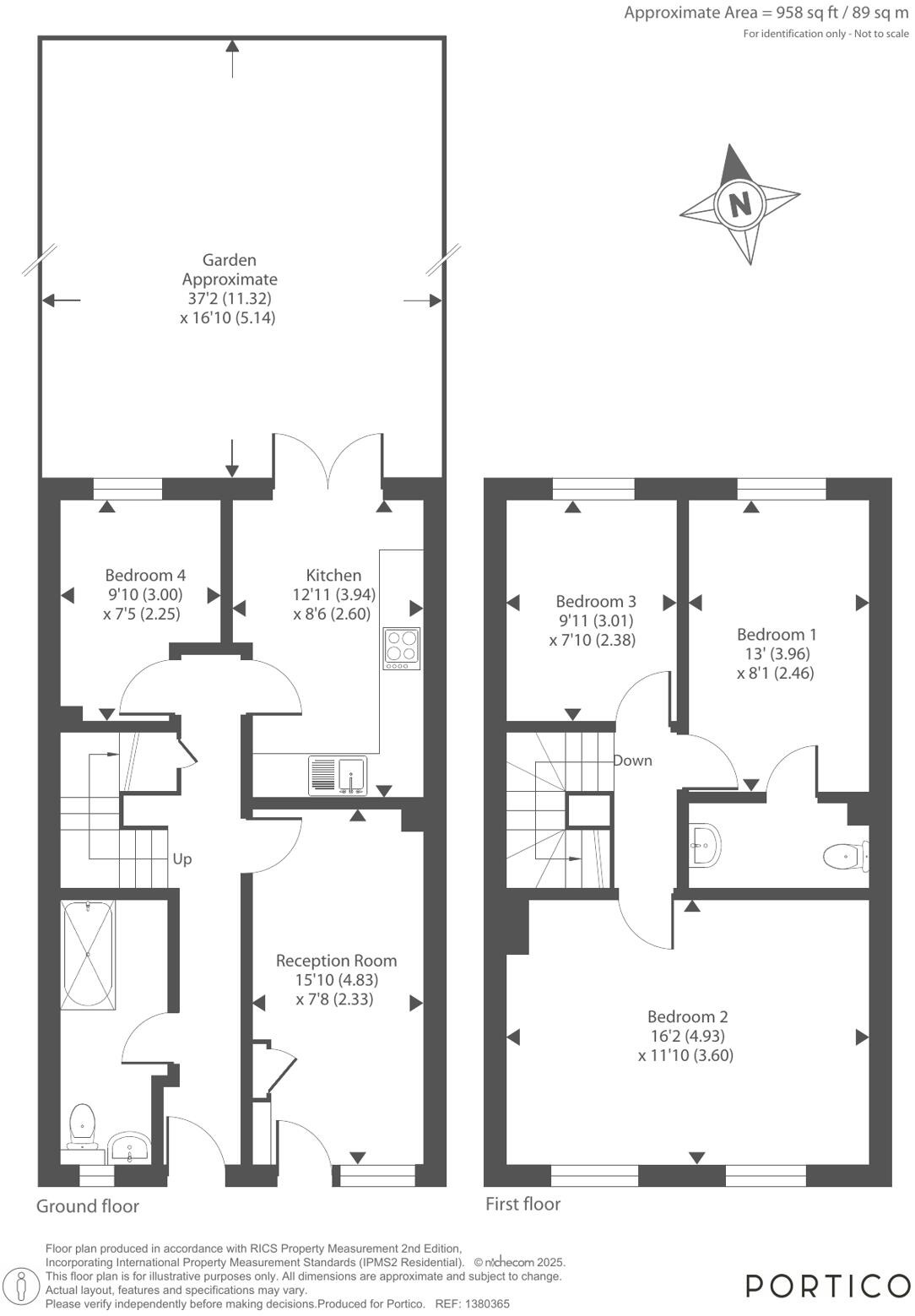
Four bedrooms arranged over two floors
Set on a quiet Beckton street, this four-bedroom terraced house offers practical family living with an allocated parking space and private rear garden. The ground floor has a through-lounge and a separate kitchen; upstairs provides four bedrooms, a family bathroom and an additional WC for daily convenience.
The property is freehold and sold chain free, ready for a buyer who wants to add value through modernisation. It’s in generally good condition but does need updating in places, offering scope to refresh finishes, kitchen fittings and bathrooms to suit modern family needs.
This small-plot home sits in a calm residential pocket with very low local crime and fast broadband — useful for homeworking and family life. Local green spaces, shops and several well-rated schools are within easy reach, and nearby DLR and road links provide straightforward access to Canary Wharf and Stratford.
Practical points to note: the overall footprint and plot are small, there’s a single main bathroom (plus WC), and some renovation work will be required to modernise. Buyers seeking generous gardens or large rooms should check sizes in person.
4 bedroom end of terrace house for sale in Beckton, London E6 — £525,000 • 4 bed • 2 bath • 972 ft²
4 bedroom house for sale in Beacons Close, Beckton, London, E6 — £650,000 • 4 bed • 1 bath • 1240 ft²
3 bedroom terraced house for sale in Hide, Windsor Park, London, E6 — £450,000 • 3 bed • 1 bath • 765 ft²
4 bedroom semi-detached house for sale in Allhallows Road, Beckton, E6 — £575,000 • 4 bed • 2 bath • 997 ft²
2 bedroom terraced house for sale in Batten Close, London, E6 — £425,000 • 2 bed • 1 bath
4 bedroom end of terrace house for sale in Long Mark Road, London, E16 — £500,000 • 4 bed • 2 bath • 863 ft²


























































